We're now part of BTG Eddisons - Visit our new website BTGEddisonsPropertyAuctions.com
Lot
004
Auction: August 2024 Online Auction 14/08/2024 - Bidding opens Tuesday 13th August 10:00 AM

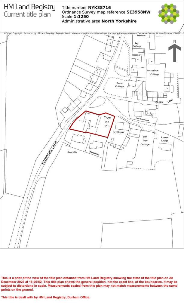
Tiger Inn, Coneythorpe, Knaresborough, North Yorkshire, HG5 0RY

Property Details
Location
Auction Details
Description
A detached public house, part two storey and part single storey, with residential accommodation to the first floor. The property has previously operated as a successful village inn and has since been vacated. Situated on a site of approximately 0.29 acres, the property may be suitable for alternative use or redevelopment, subject to the necessary consents.
Location
The Tiger Inn sits in the centre of the attractive village of Coneythorpe, fronting onto the Village Green. Coneythorpe is an affluent commuter village situated 3 miles north east of the Market Town of Knaresborough and 6 miles north east of the Spa Town of Harrogate. Being close to the A59 and A1M it is within easy reach of Leeds, York and Thirsk.
Accommodation

Ground Floor

The front Bar is in 3 sections around a central lightwood servery. Seating is a mix of fixed bench seating and loose tables and chairs. The 3 sections that can accommodate 10, 16 and 18 covers for dining. The right side extends into the Restaurant area providing 68 Covers, again on fixed bench and loose seating. Ancillary accommodation includes:- Ladies, Gents and Disabled toilets, an office and an upland beer store. The Catering Kitchen is huge and purchasers may choose to reduce its size prior to refitting.

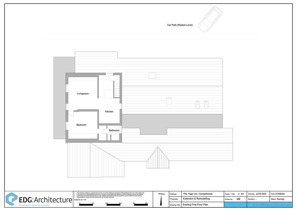
First Floor

A modern recently refurbished studio flat with 1 double
bedroom with en-suite facilities, sitting room and partly open
plan modern kitchen.

Tenure
The property is sold freehold.
Costs
Details of the Buyer's Premium and any additional fees payable are contained within the legal documents.
General
1. All the information provided on our website is for indicative purposes only and interested parties should refer to the contents of the legal pack and rely upon their own due diligence as a prudent bidder.

2. PLEASE NOTE BIDDING COMMENCES ON TUESDAY 13TH AUGUST AND CLOSES ON WEDNESDAY 14TH AUGUST.

3. The 2023 Rateable Value has been assessed at £45,000.

4. The domestic accommodation is within Band C for council tax purposes

5. The property has an EPC rating of C.

6. We are informed that the premises benefit from mains electricity, water, and drainage. Gas is by Tanked LPG. There is also a burglar alarm system, CCTV and gas central heating. No services have been tested.

7. We are also informed the kitchen was damaged by a fire in August 2023. Works have been undertaken to make good the damage caused and the kitchen is ready to be fitted out. The remainder of the property remains unaffected by the fire.

Our Nearest Office

Leeds 600x300

Leeds

Joint Agent

Fleurets
Contact: Simon Hall
Search Available
Online Auctions
Search online auction icon
Guide to
Buying at Auction
Buying guide icon
Guide to Selling
Your Property
Selling guide icon
Sign Up For
Auction Alerts
Alert icon