Lot
067
Auction Ends: 17/07/2024 13:15 - Bidding opens Tuesday 16th July 10:00 AM

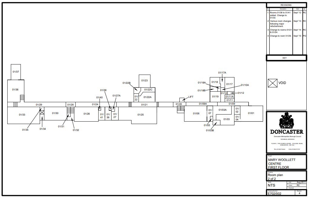
Mary Woollett Centre, Danum Road, Doncaster, South Yorkshire, DN4 5HE

Property Details
Location
Description
A Freehold site of approx 1.65Ha comprising an attractive and substantial former 1930's school building of approx. 53,380 Sq Ft (4,961 Sq M) which has latterly been used as office space. The original building has been extended over time and we understand it has been assessed as being of Local Heritage Significance and as such the building has a Local Heritage listing which provides the opportunity for conversion and development of the existing building. It is therefore recommended that any interested parties speak to the Local Planning Authority before bidding, a Planning Brief has been provided also and is availabe to view and download from our website on the legal pack portal. The site provides ample parking for around 250 vehicles largely to the South of the site and this could provide further scope for development subject to obtaining the necessary planning permission. We would also advise there is a substation on site subject to a lease term of 40 years from 4th March 1997 at a ground rent of £175 per annum.
Location
The property is located on Danum Road just off Carr House Road. Doncaster City Centre is just over a mile away and Doncaster Racecourse / Doncaster Dome is less then 0.5 miles away. Lakeside shopping centre is close by and Junction 3 of the M18 is 1.5 miles away.
Accommodation

Ground FloorCurrently providing numerous office rooms / suites of varying sizes, several male / female W.C's, Halls, canteen/kitchen & dining hall 
First Floor Further office suites of varying sizes as well as several male/female W.C's
Outside
The site currently provides extensive parking for circa 250 vehicles. Due to the development nature of the site this does provide further opportunity to be developed subject to planning permission.
Approx Site Area
(1.65 Ha)
Costs
Details of the Buyer's Premium and any additional fees payable are contained within the legal documents.
General
1. All the information provided on our website is for indicative purposes only and interested parties should refer to the contents of the legal pack and rely upon their own due diligence as a prudent bidder.

2. PLEASE NOTE BIDDING COMMENCES ON TUESDAY 16TH JULY AND CLOSES ON WEDNESDAY 17TH JULY.

3. Energy Performance Certificate = D.

Our Nearest Office

Sheffield 600x300

Sheffield

You may also like

001

Former Kinsley Craft Workshop, Wakefield Road, Kinsley, Pontefract, West Yorkshire, WF9 5EH

Auction Ends: 28/01/2026

Guide Price: £70,000 plus

002

Land At Coutances Way, Burley In Wharfedale, Ilkley, West Yorkshire, LS29 7HQ

Auction Ends: 28/01/2026

Guide Price: £10,000 plus

003

Templeton Lodge, Templeton Road, Platt Bridge, Wigan, Lancashire, WN2 5PB

Auction Ends: 28/01/2026

Guide Price: £180,000 plus

004

Land Adjacent To 137 Ruabon Road, Wrexham, Wrexham, LL13 7RB

Guide Price: £20,000

005

52 Church Street, Connah's Quay, Deeside, Flintshire, CH5 4AQ

Auction Ends: 28/01/2026

Guide Price: £125,000 plus

006

Flats 1-4, 47 Olivet Road, Woodseats, Sheffield, South Yorkshire, S8 8QR

Auction Ends: 28/01/2026

Guide Price: £200,000 plus

007

17 A,B & C Whitehall Court, Retford, Nottinghamshire, DN22 6JQ

Auction Ends: 28/01/2026

Guide Price: £195,000 plus

008

Unit 1 - 4, New York Cottages, Bangor Road, Penmaenmawr, Conwy, LL34 6NP

Auction Ends: 28/01/2026

Guide Price: £125,000 plus

Search Available
Online Auctions
Search online auction icon
Guide to
Buying at Auction
Buying guide icon
Guide to Selling
Your Property
Selling guide icon
Sign Up For
Auction Alerts
Alert icon