We're now part of BTG Eddisons - Visit our new website BTGEddisonsPropertyAuctions.com
Lot
022
Auction: July 2024 Online Auction 17/07/2024 - Bidding opens Tuesday 16th July 10:00 AM

Trimcar House, 29 Blackfriars Road, Salford, Greater Manchester, M3 7AQ

Property Details
Location
Auction Details
Description
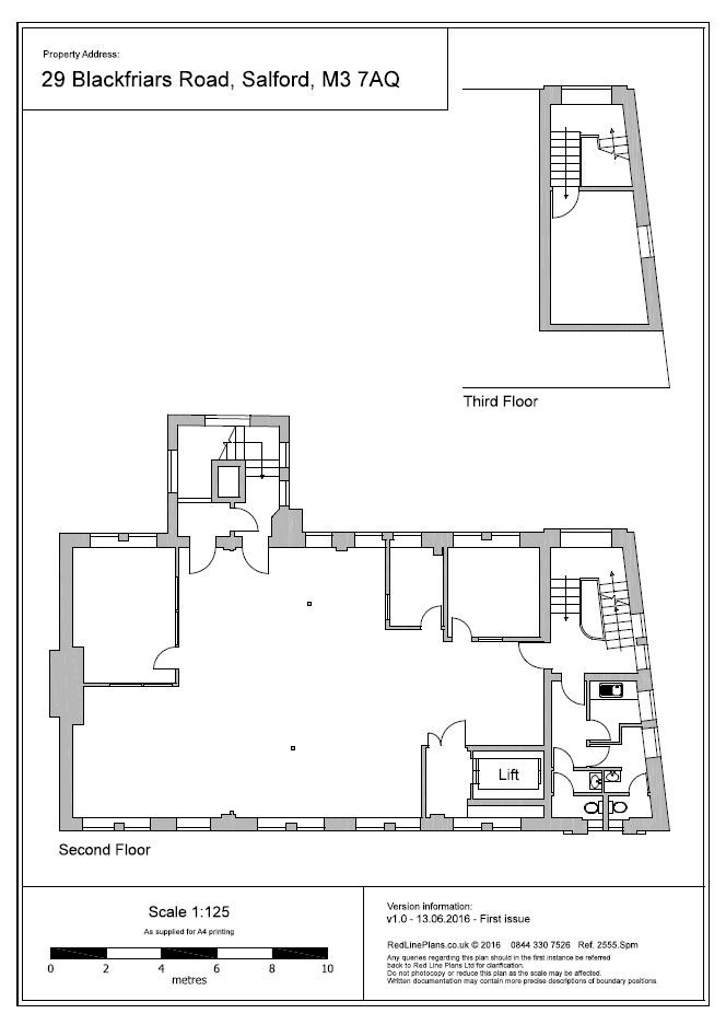
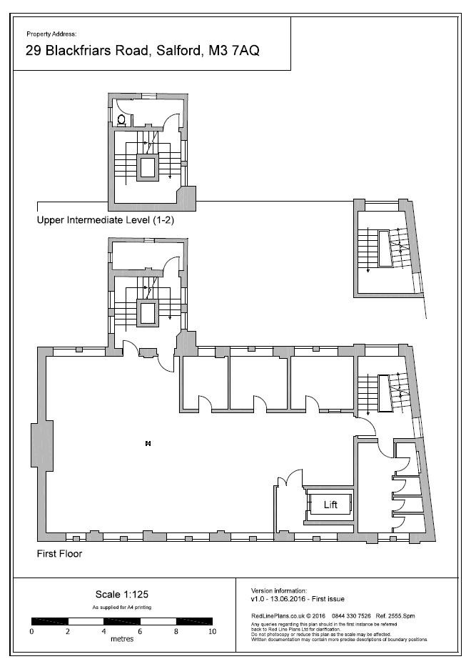
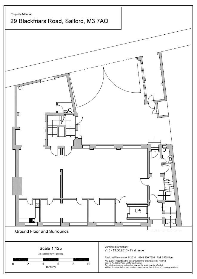
A substantial 5-storey former school building dating back to 1891 and extending to approximately 901.3 Sq M (9,702 Sq Ft). The property has most recently been used for warehousing, storage and offices with generous floor to ceiling heights and benefits from a lift to all floors together with yard area to the rear providing off-street parking. The building retains many of its original features such as exposed beams and sash windows and has been well maintained. The property offers potential for alternative uses, such as residential conversion, subject to obtaining the necessary consents.
Location
The property is in a prominent position fronting Blackfriars Road, which links Trinity Way and Chapel Street, within the immediate proximity of Manchester City Centre. The building is within walking distance to all commercial amenities and transport infrastructure.
Accommodation

DescriptionSq MSq Ft
Lower Ground196.32,113
Ground Floor268.12,886
First Floor193.02,077
Second Floor211.62,278
Third Floor15.6168
Outbuilding16.7180

901.39,702

Outside
The property benefits from a rear yard/parking area.
Approx Site Area
Approximately 436 Sq M (521 Sq Yds).
Tenure
We understand the property is held freehold.
Planning
For any pre-application advice, interested parties should consult directly with the Local Planning Authority: Salford City Council, Civic Centre, Chorley Road, Swinton, Salford, M27 5FJ. Telephone: 0161 793 2500. Email: planning.contact@salford.gov.uk
Costs
Details of the Buyer's Premium and any additional fees payable are contained within the legal documents.
General
1. All the information provided on our website is for indicative purposes only and interested parties should refer to the contents of the legal pack and rely upon their own due diligence as a prudent bidder.

2. PLEASE NOTE BIDDING COMMENCES ON TUESDAY 16TH JULY AND CLOSES ON WEDNESDAY 17TH JULY.

3. The property is entered in the 2023 Rating List as "Workshop, Offices and Stores" with a Rateable Value of £12,000. The Rateable Value (RV) is not the amount payable.

4. Energy Performance Certificate = D.

Our Nearest Office

Manchesterresize 600x300

Manchester

Joint Agent

Contact: Oliver Basger
Search Available
Online Auctions
Search online auction icon
Guide to
Buying at Auction
Buying guide icon
Guide to Selling
Your Property
Selling guide icon
Sign Up For
Auction Alerts
Alert icon