Lot
072
Auction Ends: 19/06/2024 13:12 - Bidding opens Tuesday 18th June 10:00 AM

Doncaster Business Innovation Centre, Ten Pound Walk, Doncaster, South Yorkshire, DN4 5HX

Property Details
Location
Description
Doncaster Business Innovation Centre comprises a modern two storey, detached office building of approx 20,000 (1,858 Sq M) Sq Ft with approx 100 dedicated car parking spaces and 5 disabled bays. The building provides 25 office spaces of varying sizes ranging from 251 Sq Ft (23.3 Sq M) to 1230 Sq Ft (114.3 Sq M) over ground and first floor.

The premises has undergone a series of upgrading such as refurbished office suites, a recently refurbished communal ground floor kitchen / dining room, upgraded internal communication systems to each individual office space and LED lighting throughout the majority of the building. Each office space benefits from independent air conditioning , perimeter trunking, suspending ceilings and separately channelled communication / server connection

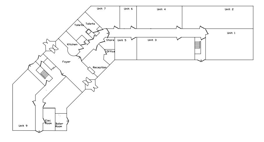
At ground floor level there is a substantial reception atrium with front and rear access as well as a cafe premises / kitchen. There are multiple offices suites as well Male / Female / Disabled W.C's and a shower room, Comms Room, Boiler / Plant Room, Lift access to first floor and stair cases to both wings of the building with the first floor providing further office suites, boardroom and Male / Female / Disabled W.C's.

The property is currently part let subject to tenancies at will with a 57% occupancy rate bringing in £105,634 per annum at the time of marketing. Tenancy details and a schedule will be included in the legal pack.
Location
The property is located within the well established Ten Pound Walk business zone, forming part of the White Rose Way commercial corridor between Junction 3 of the M18 and Doncaster city centre. Doncaster city centre is less then 1 mile to the north and Junction 3 of the M18 is approximately 2.2 miles south as well as Doncaster Iport. The bus and rail stations are within walking distance as is the city centre and the Frenchgate Shopping Centre
Accommodation

Ground Floor 

Entrance Atrium / Foyer,

Cafe/Kitchen - 208 Sq ft (19 sq m)


Inner Corridor 

Unit 1 - 1,024 Sq ft (95 sq m)

Unit 2 - 1,230 Sq ft (114 sq m)

Unit 3 -  989 Sq ft (92 sq m)

Unit 4 - 703 Sq ft (65 sq m)

Unit 5 - 380 Sq ft (35 sq m)

Unit 6 -  251 Sq ft (23 sq m)

Unit 7 (communal Kitchen / Dining Room) - 800 Sq ft (74 sq m)

Male W.C's

Female W.C's

Disabled W.C's

Shower Room

Store

Office 

Management Suite


Inner Corridor

Unit 8 - 690 Sq ft (64 sq m)

Unit 9 - 1,046 Sq ft (97 sq m)

Electric / Server / Comms Room

Boiler / Plant Room 


First Floor

Atrium / Foyer 

Meeting Room / Boardroom 


Inner Corridor 

Unit 9 - 1,046 Sq ft (97 sq m)

Unit 10 - 907 Sq ft (84 sq m)

Unit 11 - 591 Sq ft (54 sq m)

Unit 12 - 637 Sq ft (59 sq m)

Unit 13 - 260, Sq ft (24 sq m)

Unit 14 - 252 Sq ft (23 sq m)

Unit 15 - 260 Sq ft (24 sq m)

Unit 16 - 252 Sq ft (23 sq m)

Unit 17 - 260 Sq ft(24 sq m)

Unit 18 - 252 Sq Ft (23 sq m)

Unit 19 - 323 Sq ft (30 sq m)

Unit 20 - 550 Sq ft (51 sq m)

Unit 21 - 200 Sq ft (18 sq m)

Male W.C's

Female W.C's

Disable W.C


Inner Corridor

Unit 22 - 556 Sq ft (52 sq m)

Unit 23 - 445 Sq ft (41 sq m)

Unit 24 - 527 Sq ft (49 sq m)

Unit 25 - 505 Sq ft (47 sq m)



Outside
The property has a substantial carpark providing approximately 100 car parking spaces as well as 5 disabled bays. There is an area of green space which could provide further parking, which is also located toward the end of the building, which houses the Plant / Electric Rooms which could provide ease of access for the addition of electric vehicle charging points.
Approx Site Area
1.57 Acres (0.64 Ha)
Costs
Details of the Buyer's Premium and any additional fees payable are contained within the legal documents.
General
1. All the information provided on our website is for indicative purposes only and interested parties should refer to the contents of the legal pack and rely upon their own due diligence as a prudent bidder.

2. PLEASE NOTE BIDDING COMMENCES ON TUESDAY 18TH JUNE AND CLOSES ON WEDNESDAY 19TH JUNE.

3. Energy Performance Certificate = C.

4. Buyers must note that none of the utilities/services, such as electrical, heating, lighting systems or the lift has been tested or inspected by the Auctioneers. Buyers must satisfy themselves on these matters.

5. Our client has advised that the landlord will be open to discussions on the disposal of the freehold interest with the purchaser of the leasehold interest.

Our Nearest Office

Sheffield 600x300

Sheffield

You may also like

001

Former Kinsley Craft Workshop, Wakefield Road, Kinsley, Pontefract, West Yorkshire, WF9 5EH

Auction Ends: 28/01/2026

Guide Price: £70,000 plus

002

Land At Coutances Way, Burley In Wharfedale, Ilkley, West Yorkshire, LS29 7HQ

Auction Ends: 28/01/2026

Guide Price: £10,000 plus

003

Templeton Lodge, Templeton Road, Platt Bridge, Wigan, Lancashire, WN2 5PB

Auction Ends: 28/01/2026

Guide Price: £180,000 plus

004

Land Adjacent To 137 Ruabon Road, Wrexham, Wrexham, LL13 7RB

Guide Price: £20,000

005

52 Church Street, Connah's Quay, Deeside, Flintshire, CH5 4AQ

Auction Ends: 28/01/2026

Guide Price: £125,000 plus

006

Flats 1-4, 47 Olivet Road, Woodseats, Sheffield, South Yorkshire, S8 8QR

Auction Ends: 28/01/2026

Guide Price: £200,000 plus

007

17 A,B & C Whitehall Court, Retford, Nottinghamshire, DN22 6JQ

Auction Ends: 28/01/2026

Guide Price: £195,000 plus

008

Unit 1 - 4, New York Cottages, Bangor Road, Penmaenmawr, Conwy, LL34 6NP

Auction Ends: 28/01/2026

Guide Price: £125,000 plus

Search Available
Online Auctions
Search online auction icon
Guide to
Buying at Auction
Buying guide icon
Guide to Selling
Your Property
Selling guide icon
Sign Up For
Auction Alerts
Alert icon