We're now part of BTG Eddisons - Visit our new website BTGEddisonsPropertyAuctions.com
Lot
058
Auction: June 2024 Online Auction 19/06/2024 - Bidding opens Tuesday 18th June 10:00 AM

Land Adjacent To 30 Melling Street, Longsight, Manchester, Greater Manchester, M12 4PH

Property Details
Location
Auction Details
Description
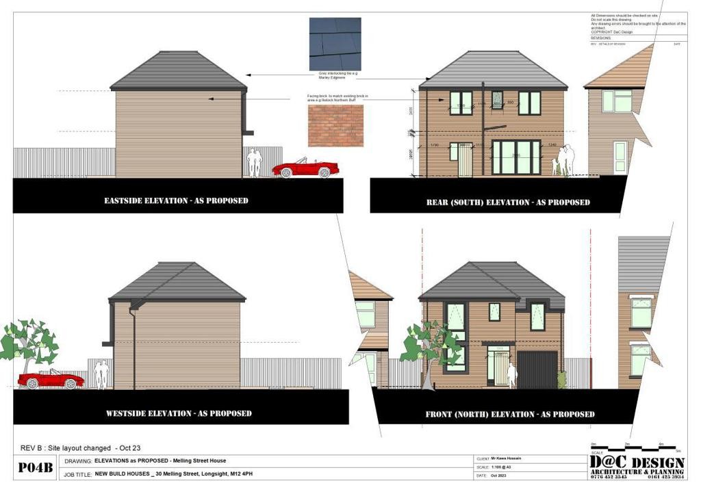
A parcel of residential development land extending to approximately 428 SqM (512 Sq Yds) and benefitting from planning approval for the construction of 2 x 3 bedroom detached houses. Under the current plans the properties would have accommodation arranged over ground and first floors with a garage, off street parking and gardens.
Location
The two proposed dwellings will benefit from separate entrances off both Melling Street and Farrant Road via Northmoor Road. A wide variety of amenities are available within a short walk including local shops, schools and places of worship. Longsight Town Centre is just 0.5 miles away and offers a further wealth of amenities and facilities. Manchester City Centre sits 3 miles to the north.
Accommodation

Under the current approved plans the newly built accommodation would comprise the following;


Ground FloorEntrance, Kitchen / Living / Dining Area, W.C.
First FloorBedrooms x 3, En-Suite, Bathroom

Approx Site Area
Approximately 428 Sq M (512 Sq Yds)
Planning
Planning permission was approved by Manchester Council on 2nd February 2024 for the erection of 2 x 2 storey dwellinghouses (Class C3) in the grounds of the existing property, together with associated parking, landscaping and boundary. Planning Ref - 138527/FO/2023
treatment.
Costs
Details of the Buyer's Premium and any additional fees payable are contained within the legal documents.
General
1. All the information provided on our website is for indicative purposes only and interested parties should refer to the contents of the legal pack and rely upon their own due diligence as a prudent bidder.

2. PLEASE NOTE BIDDING COMMENCES ON TUESDAY 18TH JUNE AND CLOSES ON WEDNESDAY 19TH JUNE.

Our Nearest Office

Manchesterresize 600x300

Manchester

Search Available
Online Auctions
Search online auction icon
Guide to
Buying at Auction
Buying guide icon
Guide to Selling
Your Property
Selling guide icon
Sign Up For
Auction Alerts
Alert icon