Lot
038
Auction Ends: 17/07/2024 11:48 - Bidding opens Tuesday 16th July 10:00 AM

The Hesketh Centre 51-55 Albert Road, Southport, PR9 0LT And 18 Park Road West, Southport, Merseyside, PR9 0JS

Property Details
Location
Description
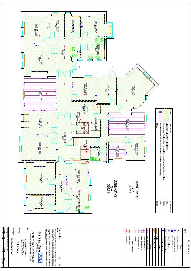
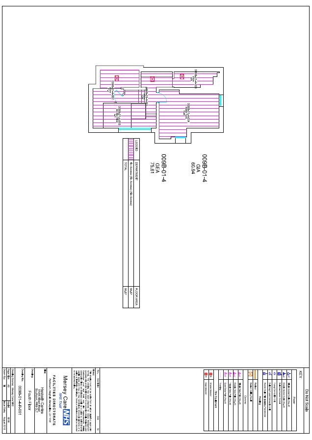
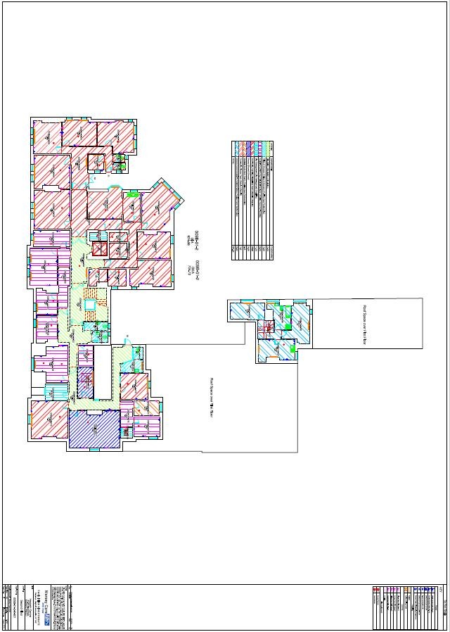
A substantial freehold redevelopment opportunity comprising a former NHS building and associated grounds extending to a total site area of approximately 1.7 acres (0.7 hectares). Internally the existing accommodation extends to approximately 5,373 SqM (57,834 SqFt) and consists of the main former hospital building (51-55 Albert Road) and an adjoining residential property (18 Park Road West). The site benefits from a positive pre-application decision for residential development and is offered with vacant possession.
Location
The site is prominently located fronting onto the corner of Albert Road and Park Road West just a short walk from the variety of amenities and leisure facilities available in Southport. The immediate surrounding area is mainly residential comprising a number of larger style period properties with the delightful Hesketh Park being situated immediately opposite. Southport train station is less than 1 mile away and provides convenient access into Liverpool and Preston which sit 21 and 18 miles away respectively.
Approx Site Area
Approximately 1.7 acres (0.7 hectares).
Tenure
Freehold title number MS410543
Planning
A pre application advice letter from Sefton Council dated 17th February 2022 states that residential use is acceptable in principle, however the current design is not sympathetic with the historic area and the full demolition of the building will be resisted without a proper justification.

Interested parties should consult direct with the Local Planning Authority: Sefton Council, Southport Town Hall, Lord Street, Southport, PR8 1DA. Telephone: 0345 140 0845. Email: Planning.Department@sefton.gov.uk
Costs
Details of the Buyer's Premium and any additional fees payable are contained within the legal documents.
General
1. All the information provided on our website is for indicative purposes only and interested parties should refer to the contents of the legal pack and rely upon their own due diligence as a prudent bidder.

2. PLEASE NOTE BIDDING COMMENCES ON TUESDAY 16TH JULY AND CLOSES ON WEDNESDAY 17TH JULY.

3. The property is entered in the 2017 Rating List as "hospital and Premises" with a Rateable Value of £75,000.

4. The Rateable Value (RV) is not the amount payable. Energy Performance Certificate : 51-55 Albert Road = C. 18 Park Road = E.

5. Pugh & Co have not measured the building internally and the accommodation information (including sizes) have been provided by the vendor.

Our Nearest Office

Liverpool 600x300

Liverpool

You may also like

021

62 Burlington Road, Blackpool, Lancashire, FY4 1JR

Auction Ends: 10/12/2025

Guide Price: £80,000 plus

049

126 Hemingway, Blackpool, Lancashire, FY4 3DR

Auction Ends: 10/12/2025

Guide Price: £95,000 plus

056

Flats 1 & 2, 34a Rossall Road, Lytham St. Annes, Lancashire, FY8 4ES

Auction Ends: 10/12/2025

Guide Price: £130,000 plus

066

17 Napier Avenue, Blackpool, Lancashire, FY4 1PA

Auction Ends: 10/12/2025

Guide Price: £150,000 plus

Search Available
Online Auctions
Search online auction icon
Guide to
Buying at Auction
Buying guide icon
Guide to Selling
Your Property
Selling guide icon
Sign Up For
Auction Alerts
Alert icon