Lot
066
Auction Ends: 24/04/2024 13:18 - Bidding opens Tuesday 23rd April 10:00 AM

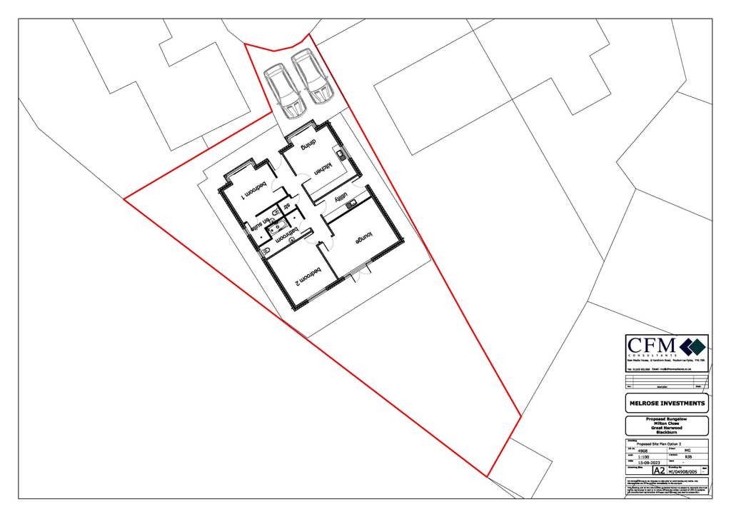
Land At Milton Mews, Milton Close, Great Harwood, Blackburn, Lancashire, BB6 7LF

Property Details
Location
Description
A plot of land extending to approximately 437 sq m (523 sq yds). The land contains 7 garages, which we are advised by the vendor are all let. Buyers must note that Pugh & Co has not been provided with all tenancies and buyers must satisfy themselves on this matter. Subject to securing vacant possession and gaining the necessary planning consents, the plot may represent a residential development opportunity: plans have been drawn up outlining a proposed bungalow.
Location
The site is located on Milton Close, a residential cul-de-sac ultimately accessed via the B6535 to the east. The local area is predominantly residential, with open fields to the south and west of the plot providing pleasant views. Nearby amenities in Great Harwood include schools, supermarkets, and eateries. Junction 7 of the M65 is accessed approximately 3 miles from the plot.
Approx Site Area
Approximately 437 sq m (523 sq yds).
Costs
Details of the Buyer's Premium and any additional fees payable are contained within the legal documents.
General
1. All the information provided on our website is for indicative purposes only and interested parties should refer to the contents of the legal pack and rely upon their own due diligence as a prudent bidder.

2. PLEASE NOTE BIDDING COMMENCES ON TUESDAY 23RD APRIL AND CLOSES ON WEDNESDAY 24TH APRIL
Addendum
Pugh & Co are advised all 7 garages on the plot are let by way of tenancy agreements. Buyers must note that we have not seen all agreements. The special conditions provided by the vendor's solicitor notes the total income as £175 per annum. Some of the agreements are included in the legal pack.

Our Nearest Office

Manchesterresize 600x300

Manchester

You may also like

031

Edgefold Farmhouse And Barn, Edge Lane, Turton, Bolton, Lancashire, BL7 0NQ

Auction Ends: 10/12/2025

Guide Price: £550,000 plus

069

7 & 9 Yorke Street, Burnley, Lancashire, BB11 1HD

Auction Ends: 10/12/2025

Guide Price: £158,000 plus

009

4 Ashworth House, Manchester Road, Burnley, Lancashire, BB11 1ER

Auction Ends: 28/01/2026

Guide Price: £35,000 plus

Search Available
Online Auctions
Search online auction icon
Guide to
Buying at Auction
Buying guide icon
Guide to Selling
Your Property
Selling guide icon
Sign Up For
Auction Alerts
Alert icon