We're now part of BTG Eddisons - Visit our new website BTGEddisonsPropertyAuctions.com
Lot
078
Auction: April 2024 Online Auction 24/04/2024 - Bidding opens Tuesday 23rd April 10:00 AM

Ground Floor Retail Premises & Apartment, 6 Standish Street, Burnley, Lancashire, BB11 1AP

Property Details
Location
Auction Details
Description
A mixed-use property comprising a ground floor retail unit, with basement storage, and a 2 bedroom apartment on the upper floors. The ground floor offers approximately 53 sq m (571 sq ft) of open-plan retail accommodation with dual aspect frontage, feature lighting, and oak flooring. Most recently occupied by a clothing company, the retail unit and associated basement storage are now vacant. Arranged over the first and second floor is a substantial, 2 bedroom apartment which is let on an AST detailing an annual rental income of £6,000.
Location
The property is located at the bottom of Standish Street, close to the entrance to Charter Walk Shopping Centre. The building has superb frontage to both the front and rear of Standish Street, nearby to occupiers such as Next, Home Bargains and the Halifax Bank. Strong transport links are provided by the nearby A679, A682, and M65, as well as Burnley Central and Burnley Manchester Road stations.
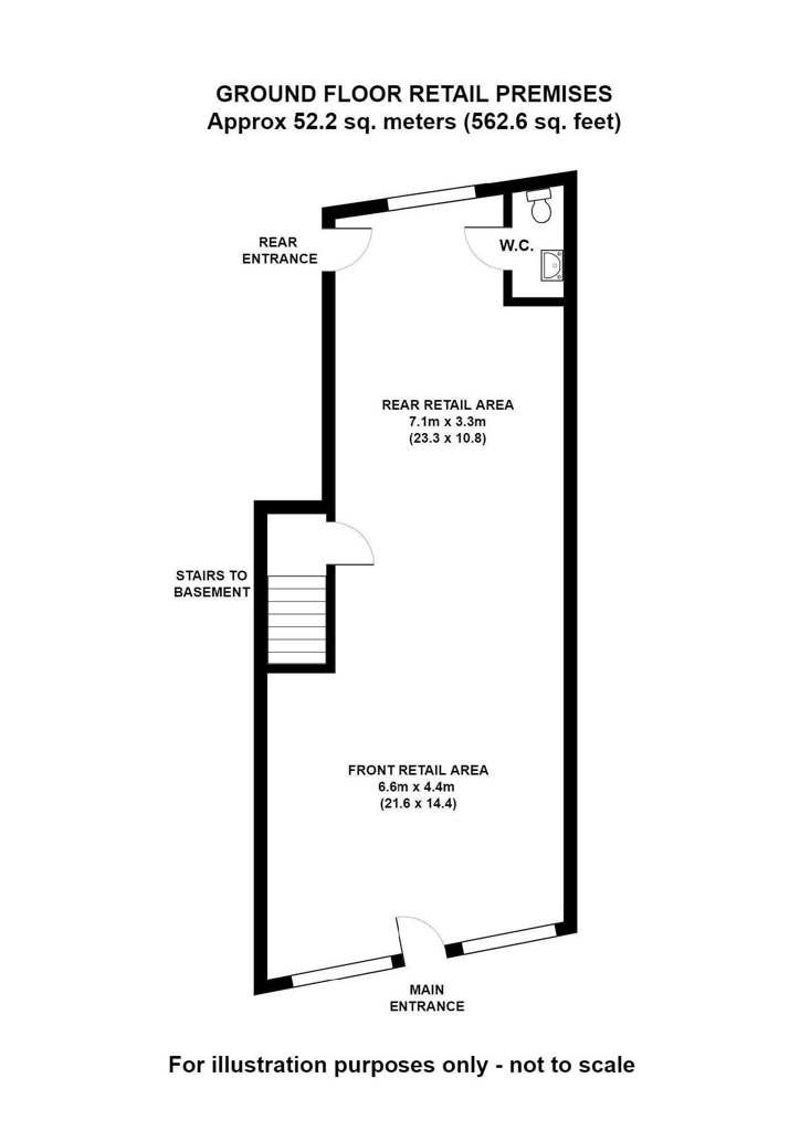
Accommodation

DescriptionUseFloor areas

Ground Floor

Front Sales

Rear Sales

Retail


29.6 sq m (318.6 sq ft)

23.4 sq m (252.2 sq ft)

Basement

Front Section

Rear Section

Storage


25.8 sq m (278 sq ft)

13.5 sq m (145.3 sq ft)

First Floor 

Living Room

Kitchen

Apartment


14 sq m (151.2 sq ft)

8.1 sq m (87.4 sq ft)

Second Floor

Bedroom 1

Bedroom 2

Bathroom

En-suite Bathroom

Apartment


13 sq m (141 sq ft)

12.7 sq m (137.5 sq ft)

9.5 sq m (103 sq ft)

5.4 sq m (58.5 sq ft)

Total 
155 sq m (1,672.7 sq ft)
The above floor areas have been measured by our joint agent on a gross internal basis and are approximate.
Tenure
The property is sold freehold.
Planning
The property may be suitable for alternative uses. Buyers are directed to Burnley planning department for any planning enquiries: planning@burnley.gov.uk, 01282 425011.
Tenancy
The apartment is sold subject to an assured shorthold tenancy agreement detailing a passing rent of £6,000 per annum. The tenant has occupied the property since 2014, with the last rent review being in 2015.
Costs
Details of the Buyer's Premium and any additional fees payable are contained within the legal documents.
General
1. All the information provided on our website is for indicative purposes only and interested parties should refer to the contents of the legal pack and rely upon their own due diligence as a prudent bidder.

2. PLEASE NOTE BIDDING COMMENCES ON TUESDAY 23RD APRIL AND CLOSES ON WEDNESDAY 24TH APRIL.

3. Energy Performance Certificate = C-D.

4. The property has a current rateable value of £7,900 (for the ground floor and basement).

5. Number 6 and 8 Standish Street are built over a culvert spanning the river below. A structural survey was jointly arranged by the separate owners of number 6 and 8. This identified that the general condition of the culvert is good, but a routine maintenance / repair programme is needed. The cost of maintaining the structure is a 50/50 joint liability with the owners of number 8.

Our Nearest Office

Manchesterresize 600x300

Manchester

Joint Agent

Contact: Jonathan Wolstencroft
Search Available
Online Auctions
Search online auction icon
Guide to
Buying at Auction
Buying guide icon
Guide to Selling
Your Property
Selling guide icon
Sign Up For
Auction Alerts
Alert icon