Lot
006
Auction Ends: 22/05/2024 10:15 - Bidding opens Tuesday 21st May 10:00 AM

101 Ecclesall Road South, Ecclesall, Sheffield, South Yorkshire, S11 9PH

Property Details
Location
Description
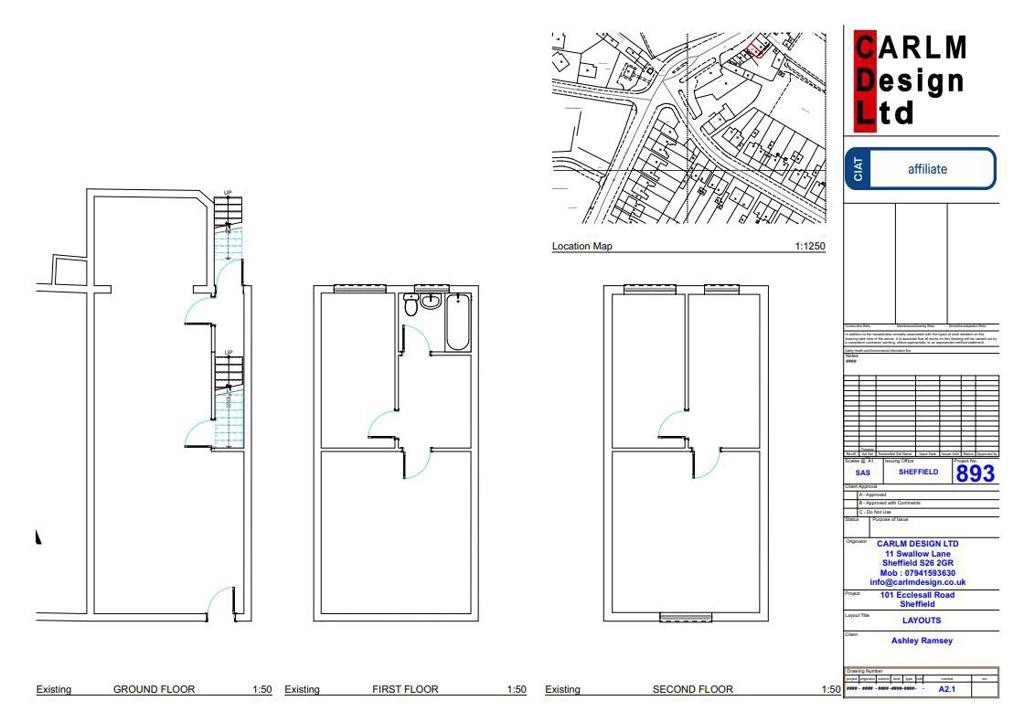
A substantial inner terrace Freehold property located in this high profile position at the junction of Ecclesall Road South and Carter Knowle Road. Originally built by the sellers family in the early 1900s, the property is the first one in the parade ever to be offered for sale and includes just under 110 sqm (1,173 sqft) of accommodation over three levels, with a ground floor extension and separate rear access. The ground floor is trading as Banner Cross Pharmacy and a new 5 year lease is currently being negotiated with the new rent of £12,000pa already being paid, whilst a further £1,200 pa is received for the front first floor room that forms part of the artist's studio spanning the parade. The remaining accommodation is vacant and potential is offered for possible residential use, subject to the appropriate consents. The property was reroofed in 2023.
Location
The property is located just over 3 miles to the south west of Sheffield City Centre opposite Ecclesall Parish Church and close to the junction of the A625 Ecclesall Road South and Carterknowle Road.
Accommodation

Ground Floor Commercial 
Sales 52.40 sqm (564 sqft) 
First Floor 
Front Commercial (let)
12.87 sqft (138 sqft) approx.
Rear Room & WC14.24 sqm (153 sqft)
Second Floor 
Front Room 12.13 sqm (130 sqft)
Rear Room12.87 sqm (138 sqft)
Rear Room4.51 sqm (48 sqft) 
TOTAL 109.02 sqm (1,173 sqft) 
Outside
Pedestrian access to the rear only
Planning
Interested parties should consult directly with the Local Planning Authority: Sheffield City Council, Howden House, 1 Union Street, Sheffield, S1 2SH. Telephone: 0114 203 9183.
Tenancy

A new 5 year lease is currently being negotiated with booker Chemists Recruitment Ltd for a period of 5 years at £12,000pa. A "Will to lease" has been signed and the new rent is already being paid.

A new 5 year lease at £1,200pa has also been offered for the first floor  front room that forms part of a studio spanning the adjoining building 

Costs
Details of the Buyer's Premium and any additional fees payable are contained within the legal documents.
General
1. All the information provided on our website is for indicative purposes only and interested parties should refer to the contents of the legal pack and rely upon their own due diligence as a prudent bidder.

2. PLEASE NOTE BIDDING COMMENCES ON TUESDAY 21ST MAY AND CLOSES ON WEDNESDAY 22ND MAY.

3. Energy Performance Certificate = D.

Our Nearest Office

Sheffield 600x300

Sheffield

You may also like

001

Unigraph House, 287 Pitsmoor Road, Sheffield, South Yorkshire, S3 9AS

Auction Ends: 10/12/2025

Guide Price: £275,000 plus

002

232 Holme Lane, Malin Bridge, Sheffield, South Yorkshire, S6 4JZ

Auction Ends: 10/12/2025

Guide Price: £70,000 plus

015

Former Church Premises, Greenhead Lane, Chapeltown, Sheffield, South Yorkshire, S35 2TN

Auction Ends: 10/12/2025

Guide Price: £225,000

030

15-17 Soresby Street, Chesterfield, Derbyshire, S40 1JW

Auction Ends: 10/12/2025

Guide Price: £90,000 plus

044

1A Wellgate, Rotherham, South Yorkshire, S60 2LT

Auction Ends: 10/12/2025

Guide Price: £87,000 plus

045

Vestry Hall, 1A Tannery Street, Woodhouse, Sheffield, South Yorkshire, S13 7JW

Auction Ends: 10/12/2025

Guide Price: £75,000 plus

050

46 Daniel Hill, Sheffield, South Yorkshire, S6 3JF

Auction Ends: 10/12/2025

Guide Price: £120,000 plus

055

105a & 107 Bellhouse Road, Sheffield, South Yorkshire, S5 6HP

Auction Ends: 10/12/2025

Guide Price: £195,000 plus

015

69 Leppings Lane, Hillsborough, Sheffield, South Yorkshire, S6 1SS

Auction Ends: 28/01/2026

Guide Price: £175,000 plus

Search Available
Online Auctions
Search online auction icon
Guide to
Buying at Auction
Buying guide icon
Guide to Selling
Your Property
Selling guide icon
Sign Up For
Auction Alerts
Alert icon