We're now part of BTG Eddisons - Visit our new website BTGEddisonsPropertyAuctions.com
Lot
010
Auction: October 2024 Online Auction 16/10/2024 - Bidding opens Tuesday 15th October 10:00 AM

Stanley Bay, More Hall Lane, Bolsterstone, Sheffield, South Yorkshire, S36 3ST

Property Details
Location
Auction Details
Description
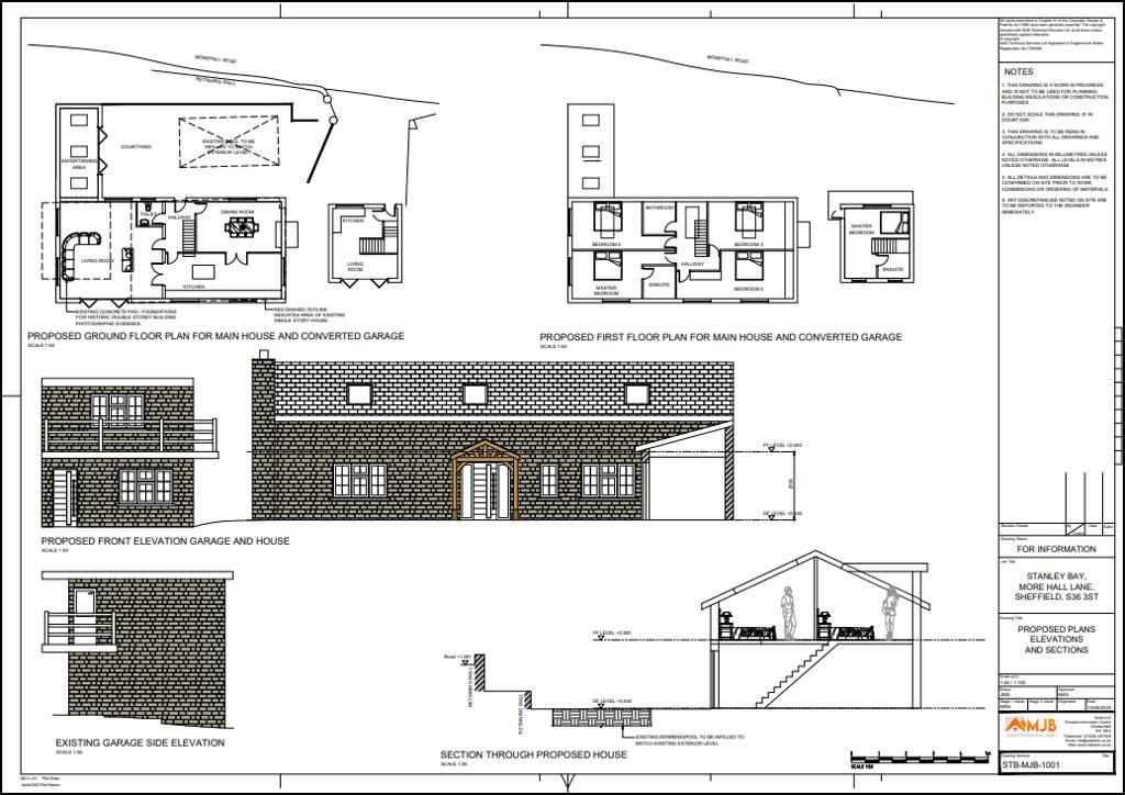
An outstanding opportunity to acquire a chalet style detached bungalow with purpose built two storey double garage , occupying a woodland site of approximatley 1.43 acre, on the upper side of the beautiful Ewden valley, close to the historic village of Bolsterstone. Recent Pre Application advice suggests that a newbuild scheme on the existing footprint of the bungalow and previous outbuilding, with accommodation on two levels, in addition to a separate annexe, would be acceptable, subject to formal consent.
Location
Stanley Bay is located on the upper side of the beautiful Ewden Valley between More Hall reservoir and Bitholmes Wood some 7 miles to the north of of Sheffield. The house is approached from the main A616 just after Wharncliffe Side where More Hall lane leads to the sought after, historic village of Bolsterstone. Facilities are located in nearby Oughtibridge and Deepcar as well as comprehensive amenities in Stocksbridge including the Fox Valley shopping centre and the M1 at junction 35A
Accommodation

Ground Floor Entrance Lobby, Sitting Room, Dining Room, Kitchen, Bedroom 1, Bedroom 2, Utility area, Bathroom/WC
Detached Garage Purpose built double garage with  first floor party/games room with balcony 
Outside
The property occupies an overall site of approximatley 1.43 acre as identified on the adjoining plan with frontage /vehicular access from More Hall Lane and a further area of woodland behind and to the upper side
Approx Site Area
Approximately 0.58 Hectare (1.43 Acre).
Planning
Pre Application advice was given by Sheffield City Council on the 27th August 2024 as follows-
Please find below comments on the pre-application proposal for a replacement dwellinghouse and alterations to an existing two storey garage building to form a one-bedroomed annex at Stanley Bay, More Hall Lane, Sheffield S36 3ST.

As you are aware the site is within the Green Belt. In such locations there is a general presumption against inappropriate development and the National Planning Policy Framework (the NPPF) provides further detail on this. Paragraph 154 sets out that the construction of new buildings in the Green Belt is inappropriate but then goes on to list a number of exceptions. At bullet point d) it confirms that the erection of a replacement building may be acceptable; provided the new building is in the same use and not materially larger than the one it replaces.

The plans indicate that the garage block would be converted to form a two-storey annex building. This part of the development would have no impact upon the openness of the Green Belt as no changes to the size are proposed. As such it would acceptable in principle. If planning permission were to be granted for this element of the scheme it is likely that a condition would be imposed to ensure that the annex could not be sold or let as a separate dwellinghouse.

Turning to the replacement dwellinghouse this would be on the footprint of the existing dwellinghouse as well as existing and former outbuildings. The new building would be larger than the one that it is to replace; however it would not exceed the height of the existing tall chimney on the property. Taking a pragmatic approach, the General Permitted Development Order would allow for the addition of a storey to the existing property and in my view the proposed development would not be likely to result in significant harm to the openness of the Green Belt. The property would still 'read' as being fairly modest and the proposed development would bring about improvements to the appearance of the dwellinghouse through the use of good quality natural materials; however I do feel that it is towards the limit of what could be considered to be acceptable in terms of not being materially larger.

Biodiversity Net Gain
The site is within an Area of Natural History Interest and before any works commence a Preliminary Ecological Assessment should be carried out (please note the time for carrying out bat surveys, which are likely to be necessary, is nearing the end of the season (March - end of September).

The development would need to demonstrate how it would achieve a net gain of at least 10% for biodiversity. Further details on this can be found using this link:

Biodiversity net gain - GOV.UK (www.gov.uk)

Community Infrastructure Levy (CIL)
The site is within Zone 3 where the CIL charge is currently £30 per square metre. An application for planning permission would need to be accompanied by the relevant CIL forms.
Costs
Details of the Buyer's Premium and any additional fees payable are contained within the legal documents.
General
1. All the information provided on our website is for indicative purposes only and interested parties should refer to the contents of the legal pack and rely upon their own due diligence as a prudent bidder.

2. PLEASE NOTE BIDDING COMMENCES ON TUESDAY 15TH OCTOBER AND CLOSES ON WEDNESDAY 16TH OCTOBER.

3. Energy Performance Certificate = G.

Our Nearest Office

Sheffield 600x300

Sheffield

Search Available
Online Auctions
Search online auction icon
Guide to
Buying at Auction
Buying guide icon
Guide to Selling
Your Property
Selling guide icon
Sign Up For
Auction Alerts
Alert icon