Lot
056
Auction Ends: 28/02/2024 13:06 - Bidding opens Tuesday 27th February 10:00 AM

The Willows, 2A Hall Road, Bradford, West Yorkshire, BD2 2DU

Property Details
Location
Description
WILL NOT BE SOLD PRIOR TO AUCTION.

A detached property previously converted from two semi-detached dwellings and most recently used as an assisted living facility. The property features accommodation over two storeys, with extensions to the rear, and is situated on an overall plot of approximately 0.24 acres (0.1 hectares). Sold with vacant possession, the property may be suitable for redevelopment or change of use, subject to the necessary consents.
Location
The property fronts Hall Road, close to its intersections with Cavendish Road and Victoria Road. Access is conveniently provided via Harrogate Road (A658), which also joins the A6177 ring road and leads towards Bradford city centre. Nearby amenities include schools, shops, and eateries.
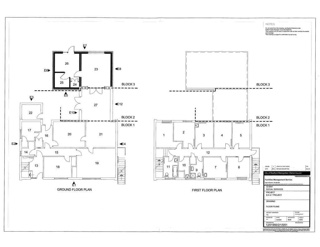
Accommodation

StoreyDescription
Ground FloorEntrance hallway, office, living room, dining room,
kitchen, activity room, staff bedroom with en-suite shower, laundry and
cloakroom/WC

First Floor7 bedrooms, bathroom, shower room and separate
toilet.


Outside
The property benefits from grass-lawn gardens to the front which lead, down both sides, to the rear, which features an enclosed garden and offers space for off-road parking.
Tenure
Freehold.
Costs
Details of the Buyer's Premium and any additional fees payable are contained within the legal documents.

In addition to the purchase price the buyer will pay the sum of £2,000.00 (two thousand pounds) minimum or a sum equal to 2% of the Purchase Price whichever is the higher as a contribution to the costs and disbursements of the Seller's solicitor. Please see legal pack for more details.
VAT
We are advised that the seller has opted to tax on this property. Any purchaser intending to use it solely for residential purposes may investigate disapplying the VAT.
General
1. WILL NOT BE SOLD PRIOR TO AUCTION.

2. All the information provided on our website is for indicative purposes only and interested parties should refer to the contents of the legal pack and rely upon their own due diligence as a prudent bidder.

3. PLEASE NOTE BIDDING COMMENCES ON TUESDAY 27TH FEBRUARY AND CLOSES ON WEDNESDAY 28TH FEBRUARY.

4. The site plan uploaded is for indicative purposes only, interested parties should rely on the legal pack for full information.

5. Energy Performance Certificate = D

Our Nearest Office

Leeds 600x300

Leeds

You may also like

010

Calverley Library Building, Thornhill Street, Calverley, Pudsey, West Yorkshire, LS28 5PD

Auction Ends: 28/01/2026

Guide Price: £185,000 plus

012

10 Tower Mews, Tower Lane, Leeds, West Yorkshire, LS12 3SA

Auction Ends: 28/01/2026

Guide Price: £35,000

013

Development Opportunity At 213a Bradford Road, East Ardsley, Wakefield, West Yorkshire, WF3 2DL

Auction Ends: 28/01/2026

Guide Price: £150,000 plus

027

Former Gipton South Children's Centre, Coldcotes Grove, Gipton, Leeds, West Yorkshire, LS9 6QJ

Auction Ends: 28/01/2026

Guide Price: £290,000 plus

033

65 Hollinbank Lane, Heckmondwike, West Yorkshire, WF16 9NW

Auction Ends: 28/01/2026

Guide Price: £215,000 plus

040

Batley Baths, Cambridge Street, Batley, West Yorkshire, WF17 5JH

Auction Ends: 28/01/2026

Guide Price: £200,000 plus

048

Development Opportunity At Strawberry Lane, Leeds, West Yorkshire, LS12 1SF

Auction Ends: 28/01/2026

Guide Price: £365,000 plus

051

Car Park North Of Pine Street, Bradford, West Yorkshire, BD1 4EY

Auction Ends: 28/01/2026

Guide Price: £60,000 plus

052

Car Park South Of Pine Street, Bradford, West Yorkshire, BD1 4EY

Auction Ends: 28/01/2026

Guide Price: £100,000 plus

058

Former Knowle Manor Residential Home, Tennyson Terrace, Morley, Leeds, West Yorkshire, LS27 8QP

Auction Ends: 28/01/2026

Guide Price: £380,000 plus

059

10 Tamworth Street, Bradford, West Yorkshire, BD4 8JS

Auction Ends: 28/01/2026

Guide Price: £20,000

075

2 Rogerson Square, Brighouse, West Yorkshire, HD6 1TJ

Auction Ends: 28/01/2026

Guide Price: £73,000 plus

076

21 Main Street, Esholt, Shipley, West Yorkshire, BD17 7QZ

Auction Ends: 28/01/2026

Guide Price: £200,000 plus

001

Ashfield Farm, Leathley Lane, Castley, Otley, North Yorkshire, LS21 2JP

Auction Ends: 25/02/2026

Guide Price: £685,000 plus

005

Otley Cemetery Lodge, Pool Road, Otley, West Yorkshire, LS21 1HL

Auction Ends: 25/02/2026

Guide Price: £185,000 plus

Search Available
Online Auctions
Search online auction icon
Guide to
Buying at Auction
Buying guide icon
Guide to Selling
Your Property
Selling guide icon
Sign Up For
Auction Alerts
Alert icon