Lot
015
Auction Ends: 28/02/2024 11:12 - Bidding opens Tuesday 27th February 10:00 AM

Land On The North-east Side Of, Alexandra Road / Fronting Muglet Lane, Maltby, Rotherham, South Yorkshire, S66 7NA

Property Details
Location
Description
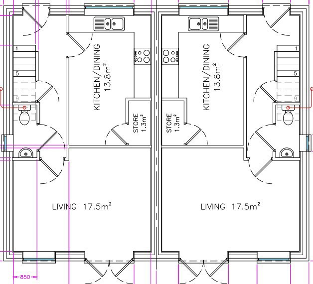
A residential development site of approx. 0.4 Acres (0.17 Ha) with full planning permission for the erection of four pairs of semi detached dwellings (Eight dwellings in total) with off street parking. Each of the eight semi detached properties will comprise; Ground Floor - Entrance Hall, W.C, Lounge, Kitchen / Diner. First Floor - Bedroom One, Bedroom Two, Bedroom Three, Bathroom. Formally the Maltby Minors Welfare, the site has been cleared and full details of the planning permission can be found on the Rotherham Borough Council website under planning referance RB2022/1820.
Location
The site lies a few miles to the east of Rotherham, close to the M18 at Hellaby giving easy access to a number of regional centres including Sheffield and Doncaster. Located on Muglet Lane the site also has access from Alexandra Road and also benefits form beng within walking distance from local shopping facilities on Maltby High Street.
Accommodation

PROPOSED ACCOMMODATION:

Plot 1

Ground FloorEntrance Hall, W.C, Lounge, Kitchen/Diner
First Floor Bedroom One, Bedroom Two, Bedroom Three, Bathroom
Plot 2
Ground FloorEntrance Hall, W.C, Lounge, Kitchen/Diner
First Floor Bedroom One, Bedroom Two, Bedroom Three, Bathroom
Plot 3
Ground FloorEntrance Hall, W.C, Lounge, Kitchen/Diner
First Floor Bedroom One, Bedroom Two, Bedroom Three, Bathroom
Plot 4
Ground FloorEntrance Hall, W.C, Lounge, Kitchen/Diner
First Floor Bedroom One, Bedroom Two, Bedroom Three, Bathroom
Plot 5
Ground FloorEntrance Hall, W.C, Lounge, Kitchen/Diner
First Floor Bedroom One, Bedroom Two, Bedroom Three, Bathroom
Plot 6
Ground FloorEntrance Hall, W.C, Lounge, Kitchen/Diner
First Floor Bedroom One, Bedroom Two, Bedroom Three, Bathroom
Plot 7
Ground FloorEntrance Hall, W.C, Lounge, Kitchen/Diner
First Floor Bedroom One, Bedroom Two, Bedroom Three, Bathroom
Plot 8 
Ground FloorEntrance Hall, W.C, Lounge, Kitchen/Diner
First Floor Bedroom One, Bedroom Two, Bedroom Three, Bathroom
Outside
Each of the eight properties under the planning permission will have off street parking to the front with good size gardens tot he rear.
Approx Site Area
Approximately 0.17 Ha (0.43 Acres).
Planning
Interested parties should consult directly with the Local Planning Authority: Rotherham Metropolitan Council, Riverside House, Main Street, Rotherham, S60 1QY. Telephone: 01709 382121.
Costs
Details of the Buyer's Premium and any additional fees payable are contained within the legal documents.
General
1. All the information provided on our website is for indicative purposes only and interested parties should refer to the contents of the legal pack and rely upon their own due diligence as a prudent bidder.

2. PLEASE NOTE BIDDING COMMENCES ON TUESDAY 27TH FEBRUARY AND CLOSES ON WEDNESDAY 28TH FEBRUARY.

3. The site plan uploaded is for indicative purposes only, interested parties should rely on the legal pack for full information.

Our Nearest Office

Sheffield 600x300

Sheffield

You may also like

026

9 Lords Head Lane, Warmsworth, Doncaster, South Yorkshire, DN4 9LP

Auction Ends: 10/12/2025

Guide Price: £75,000 plus

040

15 Mount Pleasant Road, Rotherham, South Yorkshire, S61 1SB

Auction Ends: 10/12/2025

Guide Price: £49,000 plus

044

1A Wellgate, Rotherham, South Yorkshire, S60 2LT

Auction Ends: 10/12/2025

Guide Price: £87,000 plus

045

Vestry Hall, 1A Tannery Street, Woodhouse, Sheffield, South Yorkshire, S13 7JW

Auction Ends: 10/12/2025

Guide Price: £75,000 plus

057

30 Wheatley Street, Denaby Main, Doncaster, South Yorkshire, DN12 4AU

Auction Ends: 10/12/2025

Guide Price: £210,000 plus

024

Former Trinity Methodist Church, Chapel Street, Woodhouse, Sheffield, South Yorkshire, S13 7JL

Auction Ends: 28/01/2026

Guide Price: £125,000 plus

Search Available
Online Auctions
Search online auction icon
Guide to
Buying at Auction
Buying guide icon
Guide to Selling
Your Property
Selling guide icon
Sign Up For
Auction Alerts
Alert icon