We're now part of BTG Eddisons - Visit our new website BTGEddisonsPropertyAuctions.com
Lot
054
Auction: February 2024 Online Auction 28/02/2024 - Bidding opens Tuesday 27th February 10:00 AM

62 Featherstall Road, Littleborough, Lancashire, OL15 8DW

Property Details
Location
Auction Details
Description
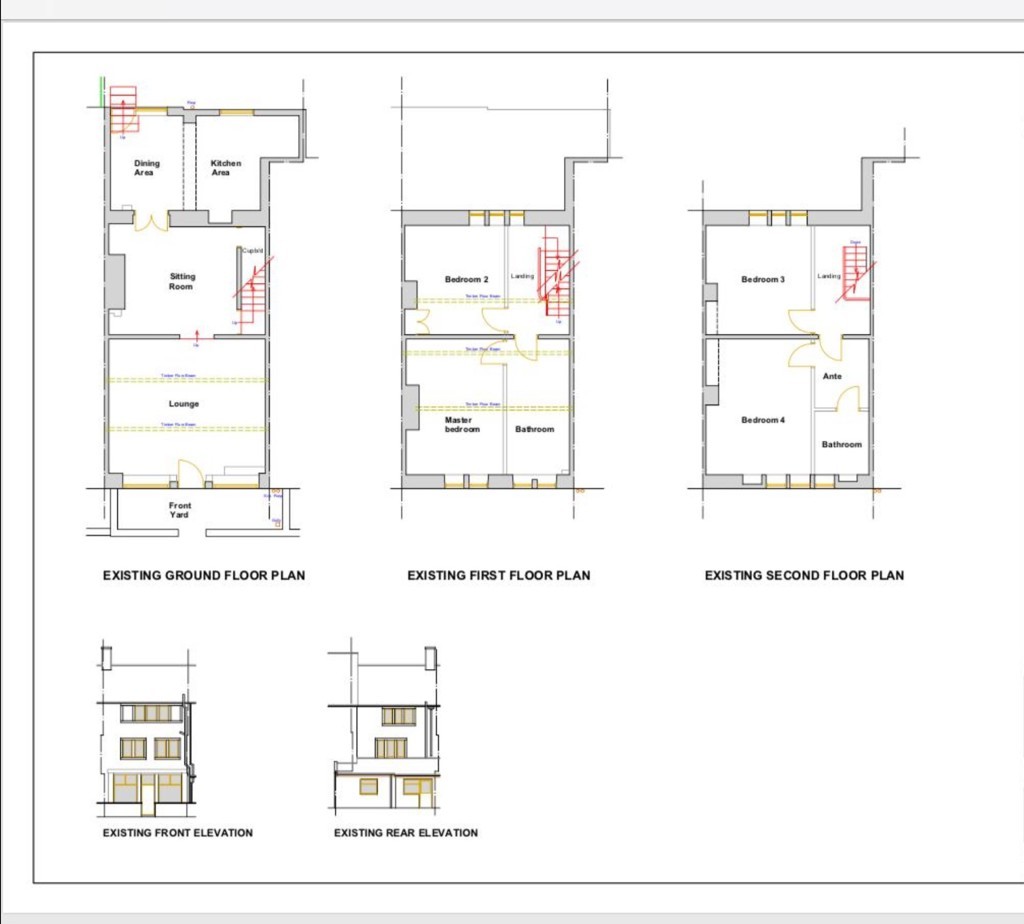
A well located refurbishment opportunity comprising a four bedroom stone built former weavers cottage now in need of a scheme of renovation. The substantial property extends internally to approximately 148 Sq M (1500 Sq Ft) with accommodation arranged over ground, first and second floors. The property could make an ideal family home in a popular residential location, following completion of the required works. Alternatively, an indicative scheme for conversion of the property into 3 x 1 bedroom flats has been drawn, subject to planning approval.
Location
The property fronts onto Featherstall Road (A58) in a mixed residential and commercial area close to the centre of Littleborough and within easy walking distance of a number of amenities and facilities including local shops and schools. The popular tourist destination of Hollingworth Lake and Country Park is located 2 miles away with the larger town of Rochdale situated 3.5 miles to the south west.
Accommodation

Ground FloorKitchen, Living Room, Dining Room
First FloorBedrooms x 2, Bathroom
Second FloorBedrooms x 2, Bathroom

Outside
Enclosed rear yard
Costs
Details of the Buyer's Premium and any additional fees payable are contained within the legal documents.
General
1. All the information provided on our website is for indicative purposes only and interested parties should refer to the contents of the legal pack and rely upon their own due diligence as a prudent bidder.

2. PLEASE NOTE BIDDING COMMENCES ON TUESDAY 27TH FEBRUARY AND CLOSES ON WEDNESDAY 28TH FEBRUARY.

3. Energy Performance Certificate = D.
Addendum
The property is held on a 999 year leasehold title dated 1 May 1823

Our Nearest Office

Manchesterresize 600x300

Manchester

Search Available
Online Auctions
Search online auction icon
Guide to
Buying at Auction
Buying guide icon
Guide to Selling
Your Property
Selling guide icon
Sign Up For
Auction Alerts
Alert icon