Lot
053
Auction Ends: 31/01/2024 13:03 - Bidding opens Tuesday 30th January 10:00 AM

Youth House, Carlton Street, Hebden Bridge, West Yorkshire, HX7 8ER

Property Details
Location
Description
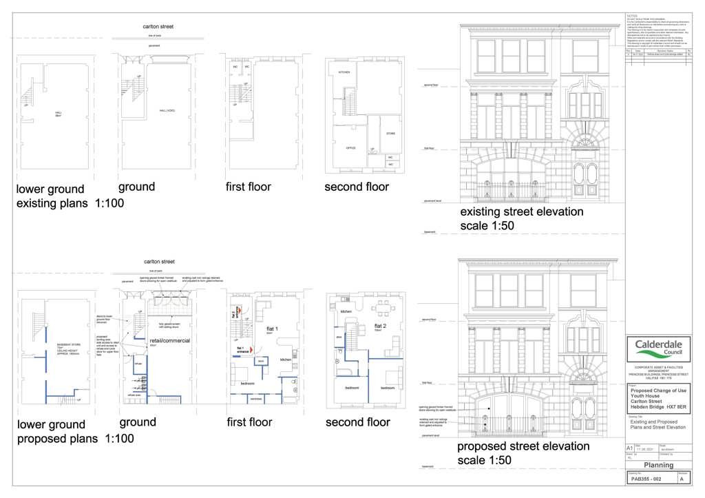
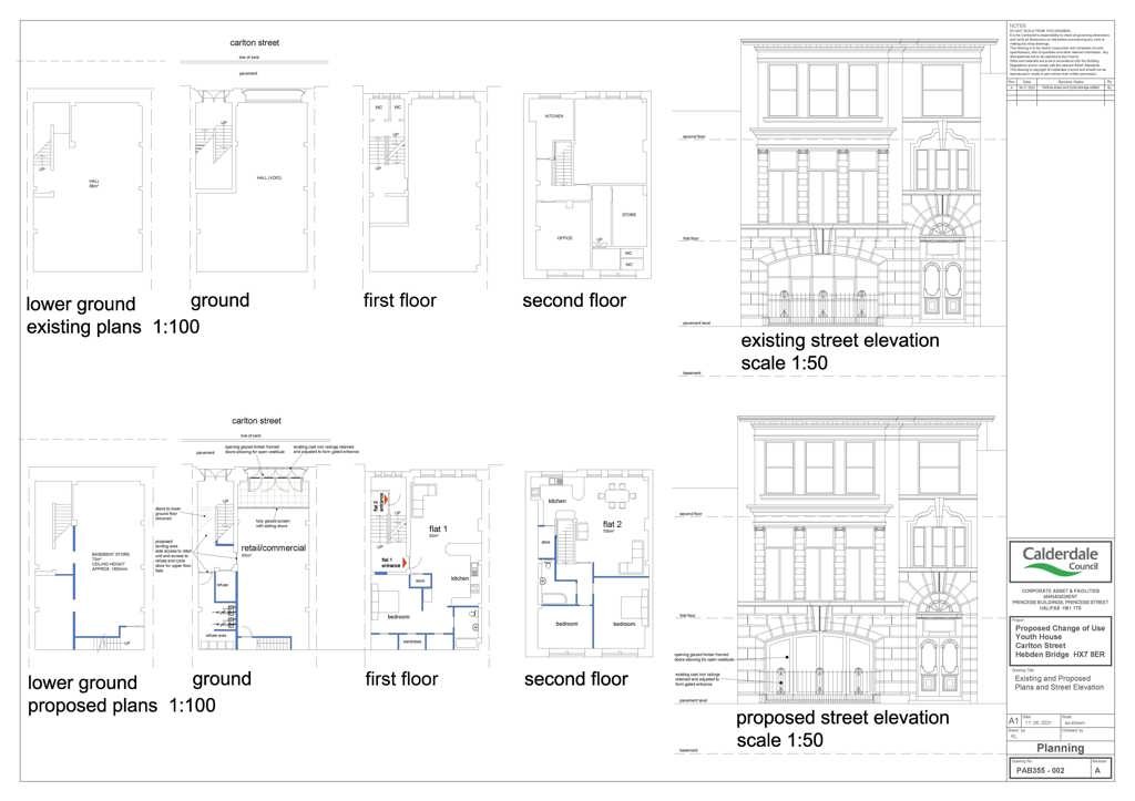
Vacant former town centre building over two floors plus basement with planning consent for conversion to provide a ground floor commercial unit with basement storage with a 1 bedroom apartment at first floor and a 2 bedroom apartment at second floor. The VOA details the property as being approximately 325 sq m (3,497 sq ft). The lower ground floor currently has a ceiling height of approximately 5 m.
Location
The property is located on Carlton Street in the heart of Hebden Bridge town centre which itself lies in the Upper Calder Valley in west Yorkshire, approximately 9 miles west of Halifax and 5 miles east of Todmorden.
Planning
Planning consent was granted on 31st March 2023 for change of use to create two flats and commercial (Class E) to ground floor under Application 21/00789/LAA. Documents associated with the planning consent can be viewed on Calderdale Council's planning portal.

Interested parties should consult direct with the Local Planning Office, Calderdale Council, Planning Services, C/O The Town Hall, Crossley Street, Halifax, HX1 1UJ. Tel: 01422 392237
Costs
Details of the Buyer's Premium and any additional fees payable are contained within the legal documents.
General
1. All the information provided on our website is for indicative purposes only and interested parties should refer to the contents of the legal pack and rely upon their own due diligence as a prudent bidder.

2. PLEASE NOTE BIDDING COMMENCES ON TUESDAY 30TH JANUARY AND CLOSES ON WEDNESDAY 31ST JANUARY.

3. Energy Performance Certificate = TBC

Our Nearest Office

Leeds 600x300

Leeds

You may also like

012

Land To The Rear Of Sowden Road, Bradford, West Yorkshire, BD9 6EB

Auction Ends: 25/02/2026

Guide Price: £125,000 plus

013

Land At Colne Road, Oakworth, Keighley, West Yorkshire, BD22 7HY

Auction Ends: 25/02/2026

Guide Price: £35,000

047

7 Upper Exley, Halifax, West Yorkshire, HX3 9LQ

Auction Ends: 25/02/2026

Guide Price: £75,000 plus

Search Available
Online Auctions
Search online auction icon
Guide to
Buying at Auction
Buying guide icon
Guide to Selling
Your Property
Selling guide icon
Sign Up For
Auction Alerts
Alert icon