Lot
019
Auction Ends: 31/01/2024 11:21 - Bidding opens Tuesday 30th January 10:00 AM

26 St. Ronans Road, Sheffield, South Yorkshire, S7 1DX

Property Details
Location
Description
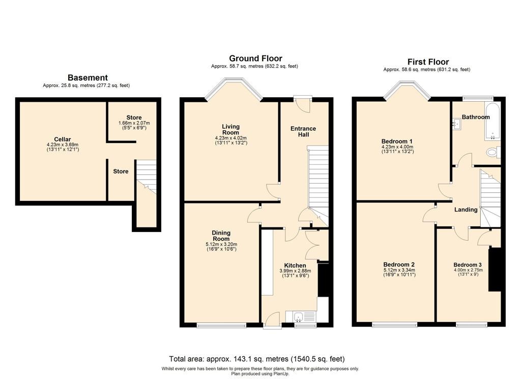
An attractive stone fronted 3 bedroom detached house occupying a good size plot in this popular residential area. The accommodation is located over two levels, requires a scheme of modernisation and offers excellent potential as family house.
Location
St Ronans Road runs between the A621 Abbeydale Road - one of the main arterial routes into Sheffield from the South West, and Steade Road, just after the junction with Chippinghouse Road The area is a popular residential area ,well served by local facilities and lies within easy reach of the City Centre as well as a comprehensive array of shops on both Abbeydale an London Road
Accommodation
Ground FloorEntrance Hall, Living room, Dining Room & Kitchen
First floorLanding, 3 Bedrooms & Bathroom
Basement Cellar & 2 Stores
Costs
Details of the Buyer's Premium and any additional fees payable are contained within the legal documents.
General
1. All the information provided on our website is for indicative purposes only and interested parties should refer to the contents of the legal pack and rely upon their own due diligence as a prudent bidder.

2. PLEASE NOTE BIDDING COMMENCES ON TUESDAY 30TH JANUARY AND CLOSES ON WEDNESDAY 31ST JANUARY.

3. Energy Performance Certificate = E.

Our Nearest Office

Sheffield 600x300

Sheffield

Joint Agent

Anderson Residential Ltd
Contact: Andersons

You may also like

001

Unigraph House, 287 Pitsmoor Road, Sheffield, South Yorkshire, S3 9AS

Auction Ends: 10/12/2025

Guide Price: £275,000 plus

002

232 Holme Lane, Malin Bridge, Sheffield, South Yorkshire, S6 4JZ

Auction Ends: 10/12/2025

Guide Price: £70,000 plus

008

Land Adjacent To 113 Hoyland Road, Hoyland Common, Barnsley, South Yorkshire, S74 0AP

Auction Ends: 10/12/2025

Guide Price: £30,000 plus

015

Former Church Premises, Greenhead Lane, Chapeltown, Sheffield, South Yorkshire, S35 2TN

Auction Ends: 10/12/2025

Guide Price: £225,000

019

8 Furness Close, Stannington, Sheffield, South Yorkshire, S6 6AX

Auction Ends: 10/12/2025

Guide Price: £95,000 plus

022

36 Springwood Road, Heeley, Sheffield, South Yorkshire, S8 9TW

Auction Ends: 10/12/2025

Guide Price: £110,000 plus

024

6 Walton Road, Off Ecclesall Road , Sheffield, South Yorkshire, S11 8RE

Auction Ends: 10/12/2025

Guide Price: £190,000 plus

030

15-17 Soresby Street, Chesterfield, Derbyshire, S40 1JW

Auction Ends: 10/12/2025

Guide Price: £90,000 plus

032

58 Chesterfield Road, Barlborough, Chesterfield, Derbyshire, S43 4TT

Auction Ends: 10/12/2025

Guide Price: £49,000 plus

034

14 The Crescent, Brimington, Chesterfield, Derbyshire, S43 1AZ

Auction Ends: 10/12/2025

Guide Price: £47,000 plus

038

32 Filey Street, Sheffield, South Yorkshire, S10 2FG

Auction Ends: 10/12/2025

Guide Price: £165,000 plus

039

62 Sycamore Road, Hollingwood, Chesterfield, Derbyshire, S43 2HH

Auction Ends: 10/12/2025

Guide Price: £85,000 plus

040

15 Mount Pleasant Road, Rotherham, South Yorkshire, S61 1SB

Auction Ends: 10/12/2025

Guide Price: £49,000 plus

044

1A Wellgate, Rotherham, South Yorkshire, S60 2LT

Auction Ends: 10/12/2025

Guide Price: £87,000 plus

045

Vestry Hall, 1A Tannery Street, Woodhouse, Sheffield, South Yorkshire, S13 7JW

Auction Ends: 10/12/2025

Guide Price: £75,000 plus

050

46 Daniel Hill, Sheffield, South Yorkshire, S6 3JF

Auction Ends: 10/12/2025

Guide Price: £120,000 plus

055

105a & 107 Bellhouse Road, Sheffield, South Yorkshire, S5 6HP

Auction Ends: 10/12/2025

Guide Price: £195,000 plus

006

Flats 1-4, 47 Olivet Road, Woodseats, Sheffield, South Yorkshire, S8 8QR

Auction Ends: 28/01/2026

Guide Price: £200,000 plus

015

69 Leppings Lane, Hillsborough, Sheffield, South Yorkshire, S6 1SS

Auction Ends: 28/01/2026

Guide Price: £175,000 plus

018

Bungalow & Land , Kelvin, 1 Backmoor Road, Sheffield, South Yorkshire, S8 8LB

Auction Ends: 28/01/2026

Guide Price: £325,000

Search Available
Online Auctions
Search online auction icon
Guide to
Buying at Auction
Buying guide icon
Guide to Selling
Your Property
Selling guide icon
Sign Up For
Auction Alerts
Alert icon