Lot
092
Auction Ends: 06/12/2023 - Bidding opens Tuesday 5th December 10:00 AM

31- 33 Boothferry Road, Goole, East Riding Of Yorkshire, DN14 5DE

Property Details
Location
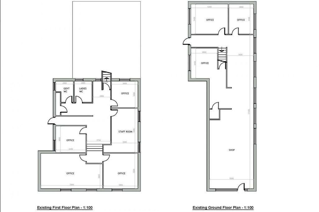
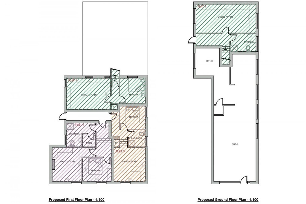
Description
A high street, retail investment with planning permission (Ref: 21/00110/ORNOT) for conversion of the first floor, and part ground floor, to 3 x flats.
31 Boothferry Road ground and upper floor is held on a Freehold title and is let to an independent retailer, generating an income of £15,000 per annum on a 3 year lease commencing January 2023. The first floor of 33 Boothferry Road is held on long lease of 125 years from 25/11/1983 at a peppercorn ground rent. Although the building already produces a return of more than 21%, based on the guide price, development of the building would increase the income significantly. VAT is not applicable on this lot.

The property has not been inspected by Pugh & Co.
Location
The property is situated in the centre of the pedestrianised area of Boothferry Road which is the primary retail pitch within Goole. Nearby occupiers include Iceland, Dominos, Superdrug, Costa Coffee as well as a range of independent estate agents and local retailers.
Outside
Rear courtyard and fire escape.
Costs
Details of the Buyer's Premium and any additional fees payable are contained within the legal documents.
General
1. All the information provided on our website is for indicative purposes only and interested parties should refer to the contents of the legal pack and rely upon their own due diligence as a prudent bidder.

2. PLEASE NOTE BIDDING COMMENCES ON TUESDAY 5TH DECEMBER AND CLOSES ON WEDNESDAY 6TH DECEMBER.

3. Energy Performance Certificate = 31 Boothferry Rd = D
33 Boothferry Rd = C


Our Nearest Office

Leeds 600x300

Leeds

You may also like

001

Ashfield Farm, Leathley Lane, Castley, Otley, North Yorkshire, LS21 2JP

Auction Ends: 25/02/2026

Guide Price: £685,000 plus

002

Former Great Fryup Residential Centre, Fryup, Danby, Whitby, North Yorkshire, YO21 2AP

Auction Ends: 25/02/2026

Guide Price: £160,000 plus

003

Land Adjacent To 137 Ruabon Road, Wrexham, Wrexham, LL13 7RB

Auction Ends: 25/02/2026

Guide Price: £20,000

004

Edgefold Farmhouse And Barn, Edge Lane, Turton, Bolton, Lancashire, BL7 0NQ

Auction Ends: 25/02/2026

Guide Price: £500,000 plus

005

Otley Cemetery Lodge, Pool Road, Otley, West Yorkshire, LS21 1HL

Auction Ends: 25/02/2026

Guide Price: £185,000 plus

006

5-19 Westfield Street, St. Helens, Merseyside, WA10 1QA

Auction Ends: 25/02/2026

Guide Price: £500,000 plus

007

Mills Brow Farm, Atherton, Manchester, Lancashire, M46 9HL

Auction Ends: 25/02/2026

Guide Price: £320,000 plus

008

712 City Road, Sheffield, South Yorkshire, S2 1GJ

Auction Ends: 25/02/2026

Guide Price: £60,000 plus

Search Available
Online Auctions
Search online auction icon
Guide to
Buying at Auction
Buying guide icon
Guide to Selling
Your Property
Selling guide icon
Sign Up For
Auction Alerts
Alert icon