Lot
014
Auction Ends: 31/01/2024 11:06 - Bidding opens Tuesday 30th January 10:00 AM

Adams Court, Kildare Terrace, Leeds, West Yorkshire, LS12 1DB

Property Details
Location
Description
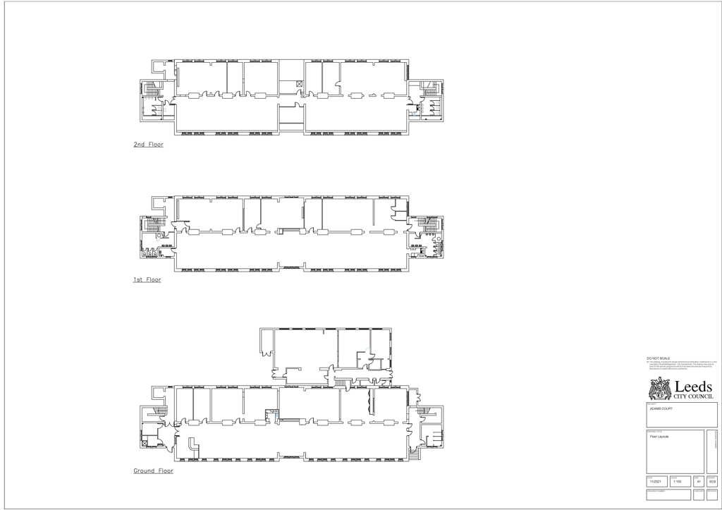
A prominent and detached, Grade II listed, former office building with two associated storage/office buildings and a large car park (containing 66 car spaces*). The property sits on a substantial plot extending to 0.36 hectares (0.89 hectares) and has most recently been used as council office premises. It is now sold with vacant possession. The main building is arranged over three floors and extends to approximately 2,312 sq m (24,895 sq ft). Situated to the eastern boundary of the plot is a separate, single-storey building used as an archive store. At the western boundary of the plot, at its entrance, is a three-storey detached building, known as The Lodge, which has been used as office and storage space. This lot is a rare and exciting opportunity to acquire a freehold site containing a historic property, which may represent an opportunity for change of use or redevelopment, subject to the necessary consents.

* Source: VOA
Location
The property is situated on Kildare Terrace in the Holbeck area of Leeds, approximately 1.5 miles south-west of Leeds city centre. Kildare Terrace is accessed via Whitehall Road and benefits from strong transport links via the A58, which joins the A643 and M621 to the south, as well as the A64(M) to the north. Leeds train station is also located approximately 1 mile to the north-east and provides national rail connections. The local area is predominantly retail and light industrial, with brands such as Dunelm and Enterprise trading nearby, and a light industrial complex being situated opposite to the property on Kildare Terrace. There is also residential housing located nearby to the north of the property in Armley.
Accommodation

BuildingDescriptionFloor AreaBasis of Measurement
Main buildingOffices, meeting areas, staff facilities, storage, toilets, lift shaft,2,312 sq m (24,895 sq ft)GEA
Archive storeStorage space100 sq m (1,076 sq ft)GIA
LodgeOffice space, storage space 61 sq m (664 sq ft)GIA

Approx Site Area
0.361 ha

0.892 acres
Planning
The site is brownfield and is unallocated in the Local Plan. It may be suitable for redevelopment and interested parties are advised to consult with Leeds City Council and its Planning department: Planning Services, Leeds City Council, Merrion House, 110 Merrion Centre, Leeds, LS2 8BB.
Costs
Details of the Buyer's Premium and any additional fees payable are contained within the legal documents.
General
1. All the information provided on our website is for indicative purposes only and interested parties should refer to the contents of the legal pack and rely upon their own due diligence as a prudent bidder.

2. PLEASE NOTE BIDDING COMMENCES ON TUESDAY 30TH JANUARY AND CLOSES ON WEDNESDAY 31ST JANUARY.

3. Energy Performance Certificate = E-F

4. This property will not be sold prior to auction.

5. The pre-authorisation bidding deposit for this lot will be £75,000.

Our Nearest Office

Leeds 600x300

Leeds

You may also like

010

Calverley Library Building, Thornhill Street, Calverley, Pudsey, West Yorkshire, LS28 5PD

Auction Ends: 28/01/2026

Guide Price: £185,000 plus

013

Development Opportunity At 213a Bradford Road, East Ardsley, Wakefield, West Yorkshire, WF3 2DL

Auction Ends: 28/01/2026

Guide Price: £150,000 plus

027

Former Gipton South Children's Centre, Coldcotes Grove, Gipton, Leeds, West Yorkshire, LS9 6QJ

Auction Ends: 28/01/2026

Guide Price: £290,000 plus

048

Development Opportunity At Strawberry Lane, Leeds, West Yorkshire, LS12 1SF

Auction Ends: 28/01/2026

Guide Price: £365,000 plus

058

Former Knowle Manor Residential Home, Tennyson Terrace, Morley, Leeds, West Yorkshire, LS27 8QP

Auction Ends: 28/01/2026

Guide Price: £380,000 plus

076

21 Main Street, Esholt, Shipley, West Yorkshire, BD17 7QZ

Auction Ends: 28/01/2026

Guide Price: £200,000 plus

005

Otley Cemetery Lodge, Pool Road, Otley, West Yorkshire, LS21 1HL

Auction Ends: 25/02/2026

Guide Price: £185,000 plus

Search Available
Online Auctions
Search online auction icon
Guide to
Buying at Auction
Buying guide icon
Guide to Selling
Your Property
Selling guide icon
Sign Up For
Auction Alerts
Alert icon