We're now part of BTG Eddisons - Visit our new website BTGEddisonsPropertyAuctions.com
Lot
088
Auction: December 2023 Online Auction 06/12/2023 - Bidding opens Tuesday 5th December 10:00 AM

Land At Ramsden Street, Halifax, West Yorkshire, HX3 5JB

Property Details
Location
Auction Details
Description
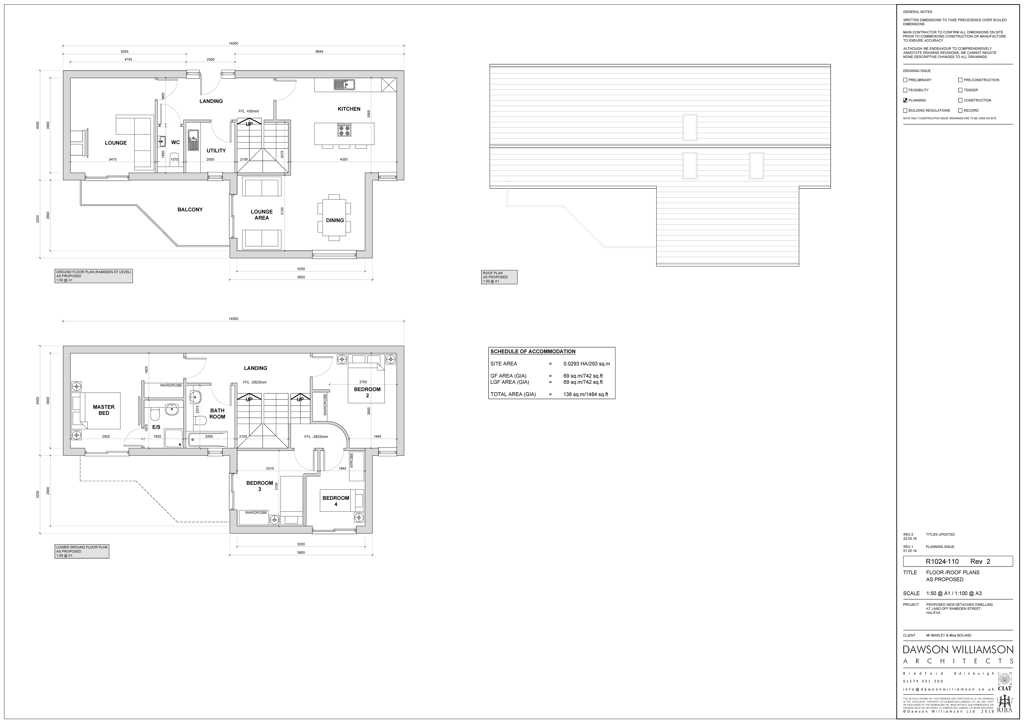
A potential residential development opportunity comprising a parcel of land extending to approximately 293 sq m which held (now lapsed) full planning permission for the construction of a new detached dwelling and raised car parking area. The drawings included within the planning application detail a 138 sq.m (1,484 sq ft) dwelling featuring four bedrooms, generous living space, gardens, and off-road parking. The plot benefits from pleasant views and the drawings also illustrate a balcony for occupiers to enjoy.
Location
The land is situated to the south-west of Ramsden Street in Halifax, accessed via a public highway to its northern boundary. The immediate area is primarily residential with good amenities available in Ovenden to the north as well as the national brands trading in Halifax town centre, approximately 1.5 miles to the east. Good transport links are provided by the road networks, including the A629, A58, and M62, as well as Halifax train station.
Approx Site Area
Approximately 268 Sq M (321 Sq Yds)
Planning
Buyers are directed to the planning portal to access all information and documentation pertaining to the previously held planning permission under application number 18_00595_FUL. Here the drawings can be found detailing an attractive four-bedroom detached property benefitting from the following accommodation: living room, open plan kitchen and dining area, utility room, W.C., four bedrooms (one an en-suite) and a family bathroom, in addition to a first floor balcony, gardens, and off-road parking.
Costs
Details of the Buyer's Premium and any additional fees payable are contained within the legal documents.
General
1. All the information provided on our website is for indicative purposes only and interested parties should refer to the contents of the legal pack and rely upon their own due diligence as a prudent bidder.

2. PLEASE NOTE BIDDING COMMENCES ON TUESDAY 5TH DECEMBER AND CLOSES ON WEDNESDAY 6TH DECEMBER.

Our Nearest Office

Leeds 600x300

Leeds

Search Available
Online Auctions
Search online auction icon
Guide to
Buying at Auction
Buying guide icon
Guide to Selling
Your Property
Selling guide icon
Sign Up For
Auction Alerts
Alert icon