We're now part of BTG Eddisons - Visit our new website BTGEddisonsPropertyAuctions.com
Lot
092
Auction: January 2024 Online Auction 31/01/2024 - Bidding opens Tuesday 30th January 10:00 AM

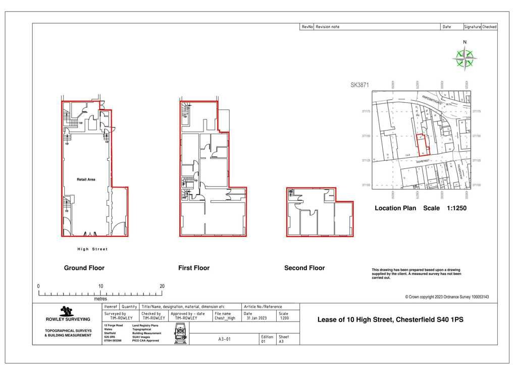
10 High Street, Chesterfield, Derbyshire, S40 1PS

Property Details
Location
Auction Details
Description
TO BE OFFERED AT A LOW RESERVE TO ENSURE SALE . An attractive three storey property located adjoining Marks & Spencer in the heart of Chesterfield Town Centre. The property, a Grade II listed building was previously occupied by Clintons and offers extensive accommodation, including ground floor retail and ancillary rooms to the first and second floors which enjoy a separate access from the pedestrianised area at the front. Improvement work is required and potential is offered for ongoing A1 or other similar uses.
Location
The property lies in the heart of Chesterfield's retail centre, adjoining Marks and Spencer and close to local and national occupiers including Primark, Greggs and Halifax.
Accommodation
ACCOMMODATION 

Ground FloorSales Area & rear Ancillary Areas128.06 sqm1,378 sqft
First FloorStores136.15 sqm1,465 sqft
Second FloorStores47.49 sqm511sqft
TOTAL 
311.70  sqm3,355 sqft

Planning
For any pre-application advice, interested parties should consult directly with the Local Planning Authority: Chesterfield Borough Council, Town Hall, Rose Hill, Chesterfield, S40 1LP. Telephone 01246 345345
Costs
Details of the Buyer's Premium and any additional fees payable are contained within the legal documents.
VAT
VAT is payable on completion at the prevailing rate in addition to the gavel price.
General
The property is entered in the 2023 Rating List as "Shop and premises" with a Rateable Value of £45,250 The Rateable Value (RV) is not the amount payable.

1. All the information provided on our website is for indicative purposes only and interested parties should refer to the contents of the legal pack and rely upon their own due diligence as a prudent bidder.

2. PLEASE NOTE BIDDING COMMENCES ON TUESDAY 30TH JANUARY AND CLOSES ON WEDNESDAY 31ST JANUARY.

3. Energy Performance Certificate = TBC

Our Nearest Office

Sheffield 600x300

Sheffield

Joint Agent

SMC Brownill Vickers
Contact: Francois Neyerlin
Search Available
Online Auctions
Search online auction icon
Guide to
Buying at Auction
Buying guide icon
Guide to Selling
Your Property
Selling guide icon
Sign Up For
Auction Alerts
Alert icon