We're now part of BTG Eddisons - Visit our new website BTGEddisonsPropertyAuctions.com
Lot
018
Auction: December 2023 Online Auction 06/12/2023 - Bidding opens Tuesday 5th December 10:00 AM

Newspaper House, Abbey Road, Barrow-in-furness, Cumbria, LA14 5QS

Property Details
Location
Auction Details
Description
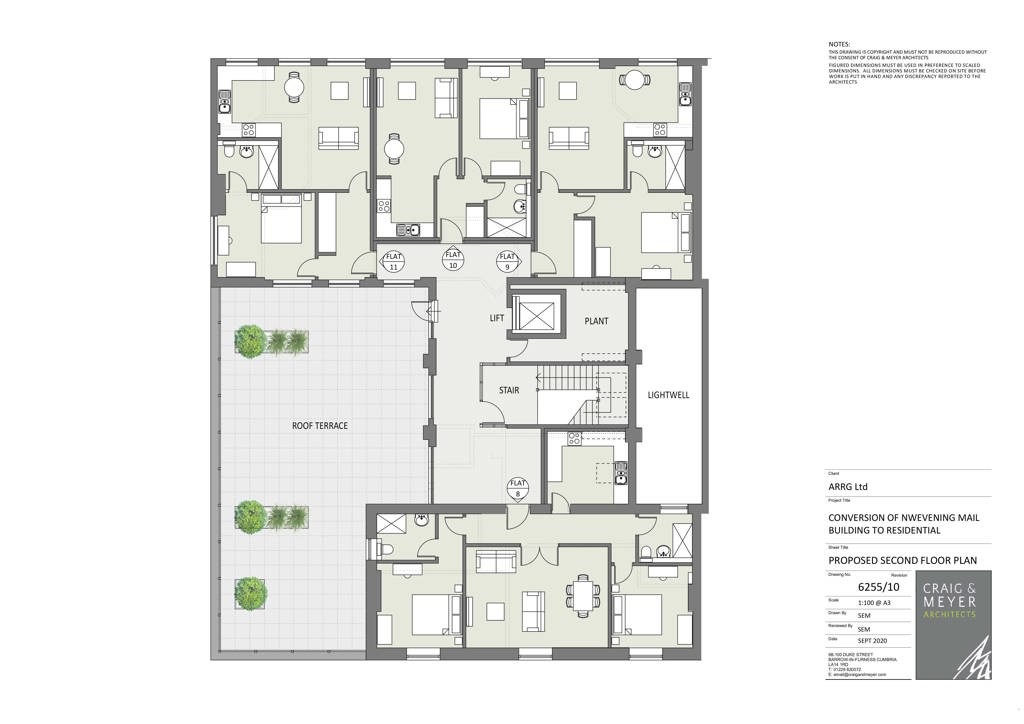
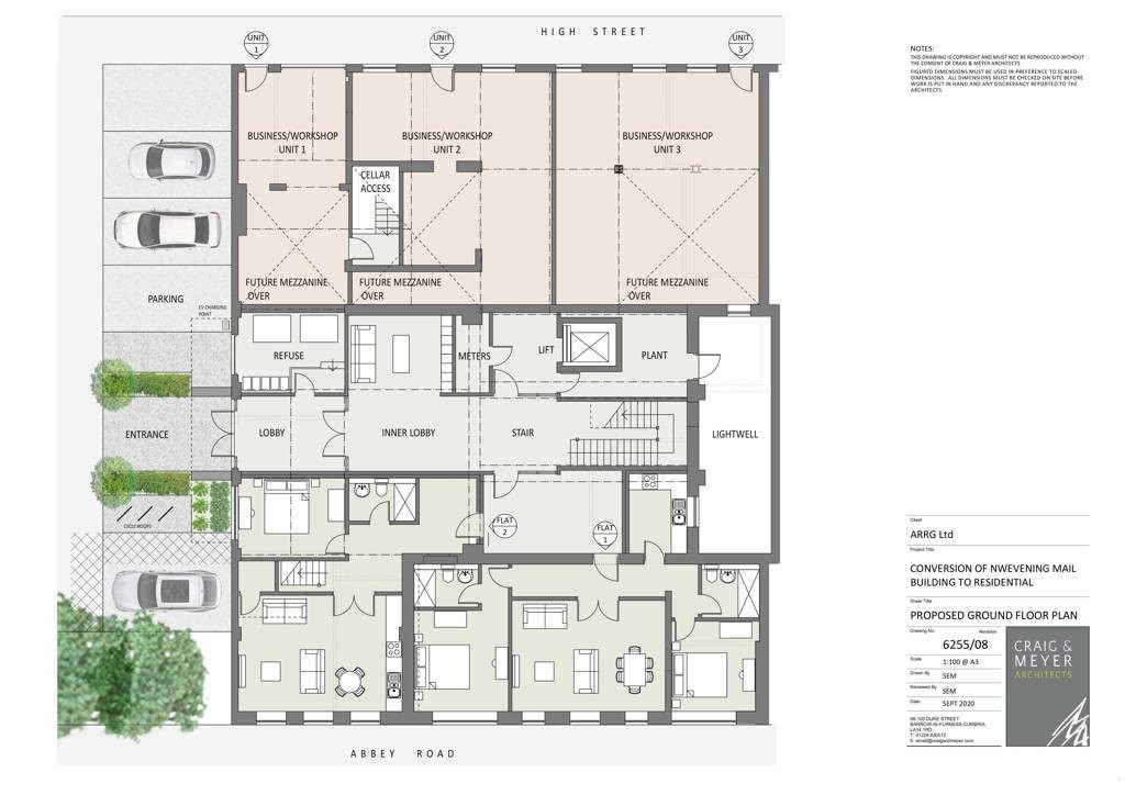
A re-development opportunity comprising a former office building extending to approximately 1310 Sq M (14100 Sq Ft) with approved planning permission for conversion into 11 residential apartments and 3 ground floor business / workshop units. Under current plans the residential element would consist of 7 x 1 bedroom apartments and 4 x 2 bedroom apartments with a top floor roof terrace and 16 associated parking spaces.
Location
The building fronts onto Abbey Road and are accessed via High Street, a short distance from a variety of amenities and facilities including Barrow Railway Station and Town Centre shops and restaurants.
Outside
16 parking spaces
Planning
Planning permission was approved by Barrow In Furness Council on 28th April 2021 for the conversion of the existing office building into 11 x residential apartments and 3 x business / workshop units. Planning ref - B12/2021/0106.

For any pre-application advice, interested parties should consult directly with the Local Planning Authority: Westmorland and Furness Council, Town Hall, Corney Place, Penrith, Cumbria CA11 7QF. Telephone: 0300 373 3300. Email: planningpolicy2@westmorlandandfurness.gov.uk.
Costs
Details of the Buyer's Premium and any additional fees payable are contained within the legal documents.
General
1. All the information provided on our website is for indicative purposes only and interested parties should refer to the contents of the legal pack and rely upon their own due diligence as a prudent bidder.

2. PLEASE NOTE BIDDING COMMENCES ON TUESDAY 5TH DECEMBER AND CLOSES ON WEDNESDAY 6TH DECEMBER.

3. Energy Performance Certificate = E.

4. The property is situated within a conservation area.

Our Nearest Office

Liverpool 600x300

Liverpool

Search Available
Online Auctions
Search online auction icon
Guide to
Buying at Auction
Buying guide icon
Guide to Selling
Your Property
Selling guide icon
Sign Up For
Auction Alerts
Alert icon