We're now part of BTG Eddisons - Visit our new website BTGEddisonsPropertyAuctions.com
Lot
020
Auction: November 2023 Online Auction 08/11/2023 - Bidding opens Tuesday 7th November 10:00 AM

1 Earl Marshal Road, Fir Vale, Sheffield, South Yorkshire, S4 8LA

Property Details
Location
Auction Details
Description
A substantial detached house with garage and parking, occupying a prominent position at the corner of Earl Marshall Road and Barnsley Road in this sought after area close to the Northern General Hospital. The accommodation is in need of modernisation and offers excellent potential to not only update, but extend to take full advantage of the generous level plot and large roof space. (Subject to consent)
Location
The property is located a few miles to the north of Sheffield city centre close to the Northern General Hospital and is well served by local schools as well as Meadowhall and the M1, both of which are a short drive away. The house is the first on the left on Earl Marshall Road when turning off Barnsley Road.
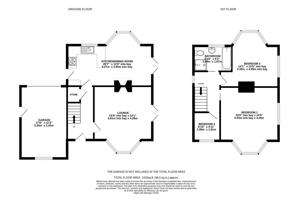
Accommodation

Ground FloorEntrance Hall, Understairs Store, Sitting Room, Kitchen & Dining Room
First Floor3 Bedrooms & Bathroom with WC
Outside
The property occupies a large level plot facing Barnsley Road, with vehicular access from Earl Marshall Road where there is vehicular parking and a substantial attached GARAGE. There are good sized mature gardens to the front and side with access via French doors to both receptions rooms.
Approx Site Area
Approximately 500 Sq M (598 Sq Yds).
Costs
Details of the Buyer's Premium and any additional fees payable are contained within the legal documents.
General
1. All the information provided on our website is for indicative purposes only and interested parties should refer to the contents of the legal pack and rely upon their own due diligence as a prudent bidder.

2. PLEASE NOTE BIDDING COMMENCES ON TUESDAY 7TH NOVEMBER AND CLOSES ON WEDNESDAY 8TH NOVEMBER.

3. Energy Performance Certificate = D.

Our Nearest Office

Sheffield 600x300

Sheffield

Search Available
Online Auctions
Search online auction icon
Guide to
Buying at Auction
Buying guide icon
Guide to Selling
Your Property
Selling guide icon
Sign Up For
Auction Alerts
Alert icon