We're now part of BTG Eddisons - Visit our new website BTGEddisonsPropertyAuctions.com
Lot
055
Auction: September 2023 Online Auction 20/09/2023 - Bidding opens Tuesday 19th September 10:00 AM

Residential Development At 205-207 West End Road, Haydock, St. Helens, Merseyside, WA11 0AW

Property Details
Location
Auction Details
Description
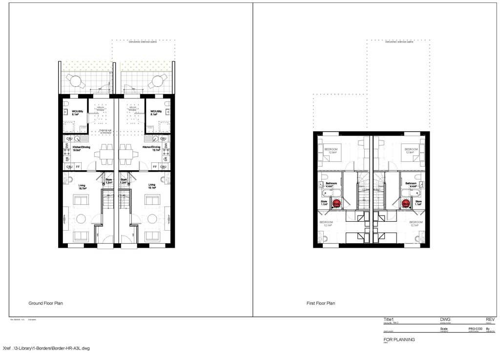
A residential development opportunity comprising a former retail premises with approved planning permission for conversion into 2 x 2 bedroom terraced houses. Much of the property is currently stripped back to brick and ready for the conversion work to start immediately.
Location
The property fronts onto West End Road amongst predominantly residential housing and within walking distance to a variety of amenities. West End Road leads to Vicarage Road and in turn to Stanley Bank Way and then to the East Lancs Road (A580) a short drive to the north.
Accommodation
Pugh & Co have not measured the property internally and the following information has been taken from the VOA website;

Ground Floor:116 Sq M (1,248 Sq Ft)
First Floor:

Planning
Planning permission was approved by St Helen's Council on 6th April 2023 for the conversion of the change of use from a shop to 2 x residential dwellings. Planning ref - P/2023/0099/FUL

For any pre-application advice, interested parties should consult directly with the Local Planning Authority: St Helens Borough Council, Planning Policy Team, St Helens Town Hall, Victoria Square, St Helens, WA10 1HP. Telephone: 01744 676 190. Email: planningpolicy@sthelens.gov.uk
Costs
Details of the Buyer's Premium and any additional fees payable are contained within the legal documents.
General
1. All the information provided on our website is for indicative purposes only and interested parties should refer to the contents of the legal pack and rely upon their own due diligence as a prudent bidder.

2. PLEASE NOTE BIDDING COMMENCES ON TUESDAY 19TH SEPTEMBER AND CLOSES ON WEDNESDAY 20TH SEPTEMBER.

3. The property is entered in the 2023 Rating List as "Shop and Premises" with a Rateable Value of £9,700. The Rateable Value (RV) is not the amount payable.

4. Energy Performance Certificate = C.

Our Nearest Office

Liverpool 600x300

Liverpool

Search Available
Online Auctions
Search online auction icon
Guide to
Buying at Auction
Buying guide icon
Guide to Selling
Your Property
Selling guide icon
Sign Up For
Auction Alerts
Alert icon