We're now part of BTG Eddisons - Visit our new website BTGEddisonsPropertyAuctions.com
Lot
044
Auction: October 2023 Online Auction 18/10/2023 - Bidding opens Tuesday 17th October 10:00 AM

Land Between Upwell Hill And Upwell Lane, Sheffield, South Yorkshire, S4 8EY

Property Details
Location
Auction Details
Description
A Freehold site of approximately 0.14ha (0.36 acre) located in this long established area of Sheffield, enjoying the benefits of planning permission for residential development. The plans allow for 8 houses comprising 6 town houses fronting Upwell Hill & a pair of semi-detached on Upwell Lane
Location
The site is located a few miles to the North East of Sheffield city centre, close to the long established residential areas of Page Hall and Grimesthorpe, within easy walking distance of Fir Vale school, the Northern General hospital, Meadowhall and the M1. The site occupies a prominent position at the junction with Upwell Street and has a short frontage onto Upwell Lane opposite Grimesthorpe Church
Approx Site Area
Approximately 0.14ha (0.36 acre).
Planning
Planning
Outline planning consent was granted on 22nd July 2020 for residential development. Ref: 20/01407/OUT (formerly PP-08690269). A copy of the consent is available to download on the website. Further details can be found at:

https://planningapps.sheffield.gov.uk/online-applications/applicationDetails.do?keyVal=Q9NWSXNYM5000&activeTab=summary

The Proposed Scheme
The plans submitted with the application allow for the erection of 8 dwellings - 6 town houses fronting on to Upwell Hill & a pair of semi-detached properties on Upwell Lane

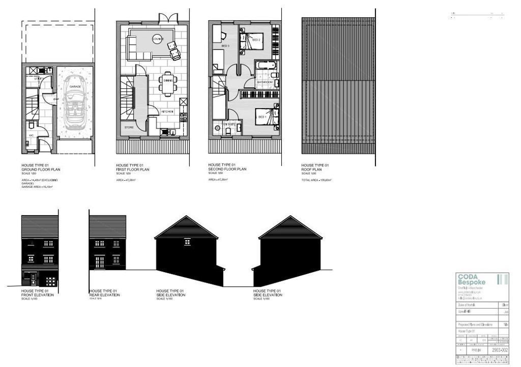
House Type 1 has a total area of approximately 110sqm comprising - ground floor entrance with cloakroom, WC, utility room & integral garage.
First floor - open plan lounge & kitchen
Second floor - 3 bedrooms with ensuite shower to the principle & family bathroom

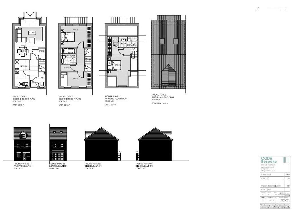
House Type 2 comprises - ground floor entrance hall, cloakroom, WC, lounge/dining room, kitchen & store
First floor - front & rear bedrooms, bathroom & store
Second floor - principle bedroom with ensuite shower room
Area approximately 100sqm
Costs
Details of the Buyer's Premium and any additional fees payable are contained within the legal documents.
VAT
VAT is payable on completion at the prevailing rate in addition to the gavel price.
General
1. All the information provided on our website is for indicative purposes only and interested parties should refer to the contents of the legal pack and rely upon their own due diligence as a prudent bidder.

2. PLEASE NOTE BIDDING COMMENCES ON TUESDAY 17TH OCTOBER AND CLOSES ON WEDNESDAY 18TH OCTOBER.

Our Nearest Office

Sheffield 600x300

Sheffield

Search Available
Online Auctions
Search online auction icon
Guide to
Buying at Auction
Buying guide icon
Guide to Selling
Your Property
Selling guide icon
Sign Up For
Auction Alerts
Alert icon