We're now part of BTG Eddisons - Visit our new website BTGEddisonsPropertyAuctions.com
Lot
027
Auction: February 2024 Online Auction 28/02/2024 - Bidding opens Tuesday 27th February 10:00 AM

Former Delph Chapel, Hill End Road And Delph Lane, Delph, Oldham, Lancashire OL3 5HW

Property Details
Location
Auction Details
Description
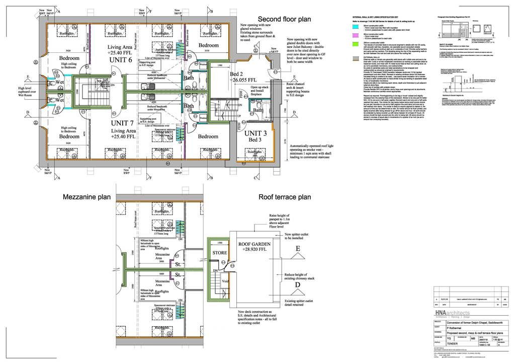
A superb development opportunity comprising a former stone chapel benefitting from approved planning permission to convert the existing building into either 9 small apartments or 7 apartments comprising 6 x 2 bedroom apartments and 1 x 3 bedroom town house arranged over ground, first, second floors and mezzanine. Additionally there is approved permission to construct 2 x 4 bedroom semi detached houses on the land to the side adjoining the chapel. The site extends in total to approximately 0.51 Hectares (1.26 Acres) and would make an ideal purchase for a local builder or developer seeking their next project.
Location
The site occupies an elevated position at the junction of Delph Lane and Hill End Road within walking distance to the picturesque Delph village Centre and an excellent primary school. The village sits within the stunning Saddlworth area, a popular and sought after residential location within easy reach of local amenities and a variety of countryside pursuits on the doorstep. The nearby villages such as Uppermill, Greenfield and Diggle offer a further variety of shops, supermarkets and recreational facilities whilst Oldham lies 5.5 miles to the south west. Delph benefits from the nearby Greenfield train station and makes an easy leap onto the M62.
Approx Site Area
Approximately 0.51 Hectares (1.26 Acres).
Planning
Planning permission was initially approved by Oldham Council in 2009 for the conversion of the chapel into 9 apartments (planning ref PA/055473/08) but was later amended to 7 units in 2017 under planning application MMA/339789/17. Approval was granted in 2018 for the construction of 2 semi detached houses on the adjoining land under planning ref PA/341040/17. We understand minor work was started on the chapel to ensure the planning permission remains extant whilst digging work was started on the land to allow the same. Documentation regarding this is included within the legal pack.
Costs
Details of the Buyer's Premium and any additional fees payable are contained within the legal documents.
General
1. All the information provided on our website is for indicative purposes only and interested parties should refer to the contents of the legal pack and rely upon their own due diligence as a prudent bidder.

2. PLEASE NOTE BIDDING COMMENCES ON TUESDAY 27TH FEBRUARY AND CLOSES ON WEDNESDAY 28TH FEBRUARY.

3. The site plan uploaded is for indicative purposes only, interested parties should rely on the legal pack for full information.

4. The sale of the site includes the graveyard but the successful buyer has the option to have the graveyard included or excluded in between exchange and completion at no extra cost or discount.

5. A SDLT incentive may be applicable on this lot. Please contact the office for further details.

Our Nearest Office

Manchesterresize 600x300

Manchester

Search Available
Online Auctions
Search online auction icon
Guide to
Buying at Auction
Buying guide icon
Guide to Selling
Your Property
Selling guide icon
Sign Up For
Auction Alerts
Alert icon