We're now part of BTG Eddisons - Visit our new website BTGEddisonsPropertyAuctions.com
Lot
014
Auction: July 2023 Online Auction 19/07/2023 - Bidding opens Tuesday 18th July 10:00 AM

3 Temple Square, Temple Street, Liverpool, Merseyside, L2 5BA

Property Details
Location
Auction Details
Description
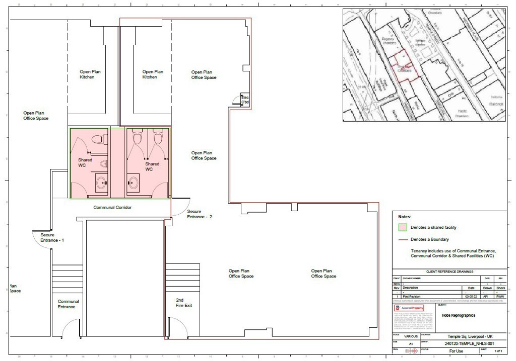
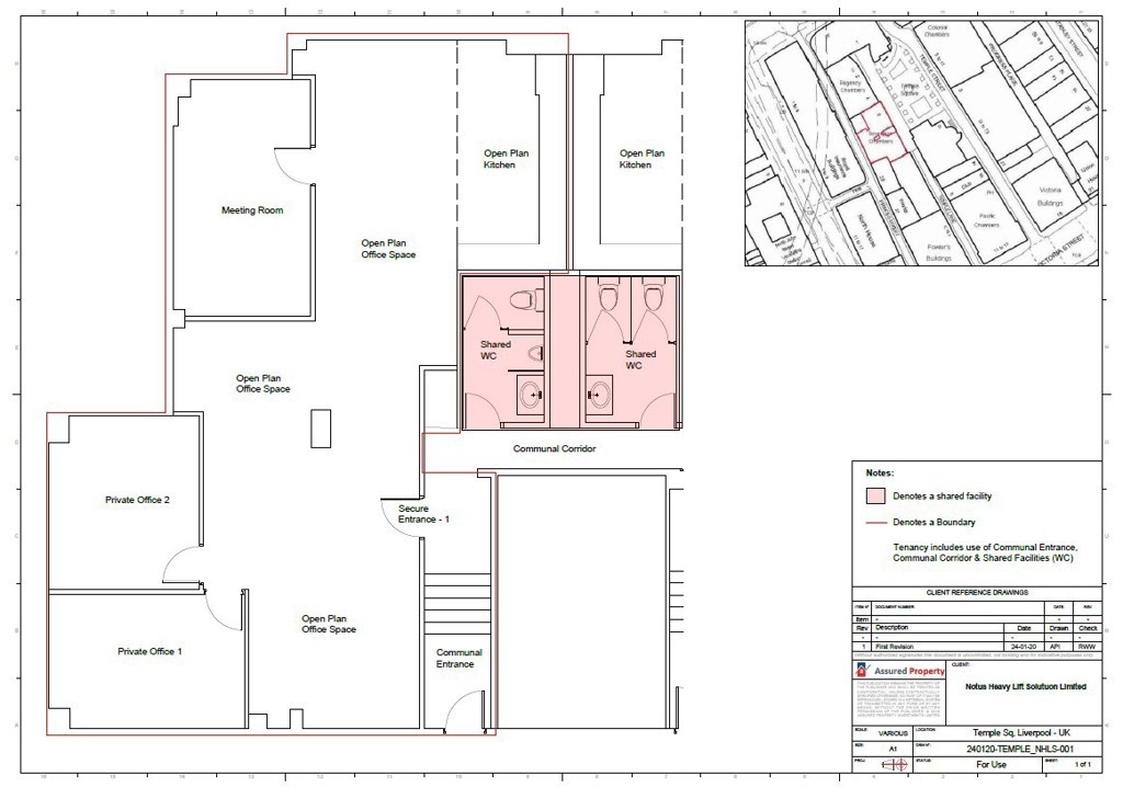
A City Centre office investment opportunity comprising sub-basement accommodation extending to approximately 318 Sq M (3,423 Sq Ft). The accommodation has a communal entrance and toilet facilities with two office suites off the main entrance area benefiting from natural light, suspended ceilings incorporating lighting, perimeter trunking, air conditioning and their own kitchen facilities. Both offices are occupied and produce a combined rental income of £43,000 per annum.
Location
3 Temple Square is situated off Dale Street in the heart of Liverpool City Centre. The building is located central to the Business District and Retail Core, thus benefitting from a wide range of amenities, excellent public transport links and leisure offerings. The building is located within a mixed-use setting with residential apartments above, office use surrounding and café offerings.
Tenure
The property is held by way of a 999-year lease from 5 May 2006 at a ground rent of £401.68 per annum. There is a annual service charge payable which is currently £4,376.76.
Planning
Interested parties should consult direct with the Local Planning Authority: Liverpool City Council, Building Control, Cunard Building, Water Street, Liverpool, L3 1AH. Telephone: 0151 233 3021.
Tenancy
The property is currently fully let to the following tenants:

Notus Heavy Lift Solutions Limited - 5 years from January 2020 at a rent of £25,000 per annum, subject to a rent review in 2022. The lease is contracted outside of the Landlord and Tenant 1954 Act.

Hobbs Reprographics Limited - 5 years from May 2022 at a rent of £18,000 per annum (inclusive of service charge, insurance and utilities). The tenant has an option to determine the lease on the third anniversary of the term.

Covenant Strength
Notus Heavy Lifting Limited (Company Number 09875737) has a Creditsafe Rating of 86 which reflects a very low risk. Notus, are an international heavy lift and transport consultancy group . They were incorporated in 2015. For more information: https://www.notusheavylift.com

Hobbs Reprographics Limited (Company Number 00511368 ) has a Creditsafe Rating of 45 which reflects a moderate risk. Hobbs are a high end printing and graphics specialist who provide print services mainly for architects and construction companies. They we incorporated in 1952. For more information: https://hobbsrepro.com
Costs
Details of the Buyer's Premium and any additional fees payable are contained within the legal documents.
General
1. All the information provided on our website is for indicative purposes only and interested parties should refer to the contents of the legal pack and rely upon their own due diligence as a prudent bidder.

2. PLEASE NOTE BIDDING COMMENCES ON TUESDAY 18TH JULY AND CLOSES ON WEDNESDAY 19TH JULY.

3. The property is entered in the 2023 Rating List as " Offices and Premises" with a Rateable Value of £16,250. The Rateable Value (RV) is not the amount payable.

4. Energy Performance Certificate = C.

Our Nearest Office

Liverpool 600x300

Liverpool

Joint Agent

Avison Young
Contact: Jonathan Lowe
Search Available
Online Auctions
Search online auction icon
Guide to
Buying at Auction
Buying guide icon
Guide to Selling
Your Property
Selling guide icon
Sign Up For
Auction Alerts
Alert icon