Lot
020

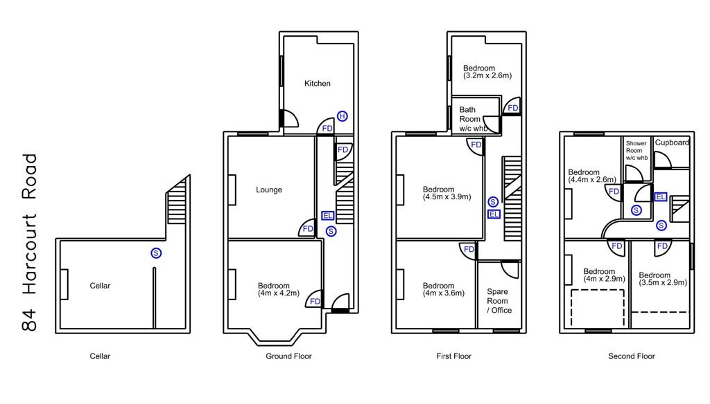
Harcourt Road, Crookesmoor, Sheffield, South Yorkshire, S10 1DJ

Property Details
Location
Description
FOR SALE BY ONLINE AUCTION 24th May 2023. Interested parties must register via the Mark Jenkinson website. A substantial stone fronted 7 bedroom end of terrace licenced HMO in this prime letting location, a short walk from the University campus, Crookes Valley park and amenities in Broomhill. The property was reroofed last year in addition to a new kitchen and appliances, both at considerable expense.
The accommodation is let to 7 at rents equivalent to £32,396pa
increasing to £34,216pa from the 4th July and has the potential to enhance the income by utilising two unlet rooms.
Tenure
800 years from 25th March 1895
General
A full copy of the EPC will be available to view via our website

Our Nearest Office

Sheffield 600x300

Sheffield

Joint Agent

Contact: Linda Crapper

You may also like

006

Flats 1-4, 47 Olivet Road, Woodseats, Sheffield, South Yorkshire, S8 8QR

Auction Ends: 28/01/2026

Guide Price: £200,000 plus

015

69 Leppings Lane & Bickerton Road Flats , Hillsborough, Sheffield, South Yorkshire, S6 1SS

Auction Ends: 28/01/2026

Guide Price: £175,000 plus

018

Bungalow & Land , Kelvin, 1 Backmoor Road, Sheffield, South Yorkshire, S8 8LB

Auction Ends: 28/01/2026

Guide Price: £325,000

024

Former Trinity Methodist Church, Chapel Street, Woodhouse, Sheffield, South Yorkshire, S13 7JL

Auction Ends: 28/01/2026

Guide Price: £125,000 plus

028

40 Robert Road, Meadowhead, Sheffield, South Yorkshire, S8 7TL

Auction Ends: 28/01/2026

Guide Price: £190,000 plus

031

26 Cuthbert Cooper Place, Darnall, Sheffield, South Yorkshire, S9 4JS

Auction Ends: 28/01/2026

Guide Price: £60,000 plus

043

1 Wellgate, Rotherham, South Yorkshire, S60 2LT

Auction Ends: 28/01/2026

Guide Price: £87,000 plus

049

4 Elm Drive, Killamarsh, Sheffield, Derbyshire, S21 1FT

Auction Ends: 28/01/2026

Guide Price: £125,000 plus

050

36 Meadow Grove Road, Totley, Sheffield, South Yorkshire, S17 4FF

Auction Ends: 28/01/2026

Guide Price: £375,000 plus

053

48 Knutton Road, Parson Cross, Sheffield, South Yorkshire, S5 9NU

Auction Ends: 28/01/2026

Guide Price: £110,000 plus

057

Land At Gregory Road, Heeley, Sheffield S8 9SY &, 2 & 4 Maxey Place , Sheffield, South Yorkshire, S8 9TA

Auction Ends: 28/01/2026

Guide Price: £75,000 plus

061

306 Walkley Bank Road, Sheffield, South Yorkshire, S6 5AR

Auction Ends: 28/01/2026

Guide Price: £160,000

062

15 Stubbin Lane, Firth Park, Sheffield, South Yorkshire, S5 6QG

Auction Ends: 28/01/2026

Guide Price: £325,000

066

270 Brunswick Road, Burngreave, Sheffield, South Yorkshire, S3 9LS

Auction Ends: 28/01/2026

Guide Price: £40,000 plus

069

Land At The R/O Wellgate / Doncaster Gate, Rotherham, South Yorkshire, S60 2LT

Auction Ends: 28/01/2026

Guide Price: £35,000 plus

072

4 Ashwell Road, Sheffield, South Yorkshire, S13 7EB

Auction Ends: 28/01/2026

Guide Price: £78,000 plus

073

15 Wellington Street, New Whittington, Chesterfield, Derbyshire, S43 2BJ

Auction Ends: 28/01/2026

Guide Price: £75,000 plus

074

10 Burngreave Bank, Sheffield, South Yorkshire, S4 7HL

Auction Ends: 28/01/2026

Guide Price: £53,000 plus

078

32 Filey Street, Sheffield, South Yorkshire, S10 2FG

Auction Ends: 28/01/2026

Guide Price: £165,000 plus

Search Available
Online Auctions
Search online auction icon
Guide to
Buying at Auction
Buying guide icon
Guide to Selling
Your Property
Selling guide icon
Sign Up For
Auction Alerts
Alert icon