We're now part of BTG Eddisons - Visit our new website BTGEddisonsPropertyAuctions.com
Lot
145
Auction: 30th April 2026 Live Stream Auction 30/04/2026 - Bidding opens Thursday 30th April 9:00 AM

Barn Adjacent to, 8 Barn Close, Castle Donington, Derby DE74 2TP

Sold Post Auction
We've unified our Auction Brands
If you're interested in this lot visit BTG Eddisons Property Auctions to book a viewing, submit an offer, send an enquiry and more.
View more details about this property on our new auction website
Share this Property
Property Details
Location
Auction Details
Description
A Superb Barn Conversion Development Opportunity.

A substantial barn with full planning permission in place for residential conversion.

The Barn is hidden away in a quiet location but within the heart of Castle Donnington.

Planning permission was granted in January 2026 Ref 25/01358/FUL. Full details and further plans can be viewed on North West Leicestershire Council planning portal.

The site will have right of way over the initial driveway for number 8 Barn Close which will in turn give a private driveway into a good size plot with mature gardens, ample parking and the attractive looking two storey barn.

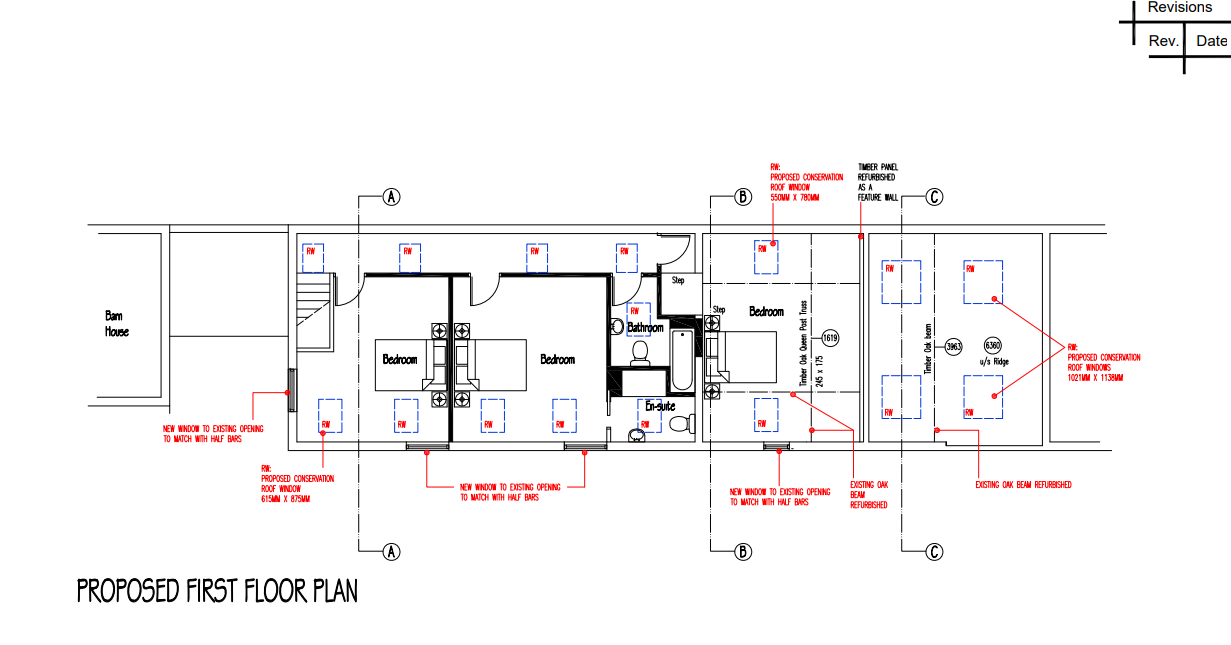
The barn offers a ground floor footprint of approx. 119 sqm 1280 sqft. Once converted will offer around 208 sqm / 2240 sqft of accommodation.

The current barn is in relative sound order. The finished development will create a wonderful family home in a highly desirable location.
Accommodation

Accommodation
Once converted the accommodation will comprise-

Ground Floor
Hallway, Cloakroom, Lounge, Office / Bedroom 4, Large Dining Kitchen with full height Cathedral ceiling.

First Floor
Landing, Bedroom One, En-Suite, Bedroom Two, Bedroom Three, Bathroom.

Outside
Good size garden with ample parking.

Draft Sales Particulars
These sales details are awaiting vendor approval.

Note to Buyers
Land Adjoining 8 Barn Close, Castle Donington, Derby, Leicestershire DE74 2TP as outlined in blue in Plan 1 of the proposed Transfer Deed included within the legal documents.

Costs
Auction Details

The sale of this property will take place on the stated date by way of Live streamed auction and is being sold under the Unconditional sale type.

Binding contracts will be exchanged at the point of sale.

All sales are subject to our Common Auction Conditions and Bidder Terms. Properties located in Scotland and Northern Ireland will be subject to applicable local laws.

Auction Deposit and Fees

The following deposits and non- refundable auctioneers fees apply:

• 5% deposit (subject to a minimum of £5,000)

• Buyer’s Fee of 4.8% of the purchase price (subject to a minimum of £6,000 inc. VAT)

There may be additional fees listed in the Special Conditions of Sale, which will be available to view within the Legal Pack. You must read the Legal Pack carefully before bidding.

Additional Information

For full details about our auction processes, please refer to the Bidder Terms which can be viewed on our home page.

This explains the types of auction and sale methods we offer, the bidding registration process, your payment obligations, and how to view the Legal Pack (and any applicable home report for residential Scottish properties).

Guide Price & Reserve Price

Each property sold is subject to a Reserve Price. The Reserve Price will be within + or - 10% of the Guide Price. The Guide Price is issued solely as a guide so that a buyer can consider whether or not to pursue their interest. A full definition can be found within the Buyers Terms. 
Addendum
Buyers are referred to the Note to Buyers included within the legal pack

Our Nearest Office

Nottingham 600x300

Nottingham

You may also like

101
Sold at auction

12 Leopold Street, Derby DE1 2HE

Guide Price: £120,000 plus

102
Sold at auction

46 Lock Lane, Sandiacre, Nottingham NG10 5LB

Guide Price: £50,000 plus

103
Sold at auction

669 Ashton Road, Oldham, Lancashire OL8 2RA

Guide Price: £55,000 plus

104
Sold at auction

Mary Grove Villa, St. Julians Avenue, Ludlow, Shropshire SY8 1ET

Guide Price: £190,000 plus

105
Postponed

13 Olton Road, Mickleover, Derby DE3 0PL

Guide Price: £95,000 plus

106
Live Stream Auction

Moreno, Horsley Lane, Coxbench, Derby DE21 5BH

Guide Price: £75,000 plus

107
Sold at auction

243 Goodman Street, Burton-On-Trent, Staffordshire DE14 2RG

Guide Price: £35,000 plus

108
Sold Prior to Auction

24 Chapel Street, Dukinfield, Greater Manchester SK16 4DW

Guide Price: £95,000 plus

Search Available
Online Auctions
Search online auction icon
Guide to
Buying at Auction
Buying guide icon
Guide to Selling
Your Property
Selling guide icon
Sign Up For
Auction Alerts
Alert icon