We're now part of BTG Eddisons - Visit our new website BTGEddisonsPropertyAuctions.com
Auction: 26th March 2026 Live Stream Auction 26/03/2026 - Bidding opens Thursday 26th March 9:00 AM

The 1924, Campbell Street, Belper, Derbyshire DE56 1AP

Guide Price
£250,000 plus
We've unified our Auction Brands
If you're interested in this lot visit BTG Eddisons Property Auctions to book a viewing, submit an offer, send an enquiry and more.
View more details about this property on our new auction website
Share this Property
Property Details
Location
Auction Details
Description
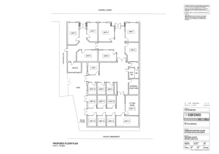
The 1924 building originally formed part of the old Putty Manufacturing Works for Adshed Ratcliffe & Co. Ltd, and was subsequently used as a showroom for a local builders merchant. The building has been extensively refurbished to create an indoor shopping arcade/business centre, providing a number of kiosk-style shops. The building has timber-framed double glazed windows to Campbell Street, two access points with external security shutters, Wi-Fi, CCTV, and air-conditioning. All units have electricity sub-meters.

The individual work spaces can be used for a variety of uses including offices, consulting rooms, retail, or clinic. The internal partitions are demountable, and the internal arrangements could be configured to suit occupiers.

The 1924 building is situated on Campbell Street, at its junction with the A609 New Road, providing a link to King Street, which is the prime retailing area for Belper. Belper is a Market Town, and lies approx. 7-miles to the north of the city of Derby. Belper was one of the first Mill Towns, and now forms part of the Derwent Valley Mills World Heritage Site, and benefits from good transportation links, with road, bus and train links to Derby and Matlock.
Accommodation

FLOOR AREAS
The individual units range in in size from 112 sq. ft./10.4 sqm. up to 202 sq. ft./22.48 sqm. The GIA of the building is 4,660 sq. ft./432.16 sqm. or thereabouts.

ANTICIPATED RENTS/COSTS
If the property is fully let, based on the existing configuration, it is anticipated that the annual rent is circa. £90,000. The annual costs for supplying all the services, excluding management fees is in the order of £21,000. Therefore, there is potential to obtain gross receipts of circa. £70,00 per annum.

BUSINESS RATES
All units are assessed individually for non-domestic rating purposes. Subject to satisfying certain criteria, the individual spaces could benefit from Small Business Rates Relief. Interested parties should make their own enquiries with the local authority, Amber Valley Borough Council.

Costs
Auction Details

The sale of this property will take place on the stated date by way of Live streamed auction and is being sold under the Unconditional sale type.

Binding contracts will be exchanged at the point of sale.

All sales are subject to our Common Auction Conditions and Bidder Terms. Properties located in Scotland and Northern Ireland will be subject to applicable local laws.

Auction Deposit and Fees

The following deposits and non- refundable auctioneers fees apply:

• 5% deposit (subject to a minimum of £5,000)

• Buyer’s Fee of 4.8% of the purchase price (subject to a minimum of £6,000 inc. VAT)

There may be additional fees listed in the Special Conditions of Sale, which will be available to view within the Legal Pack. You must read the Legal Pack carefully before bidding.

Additional Information

For full details about our auction processes, please refer to the Bidder Terms which can be viewed on our home page.

This explains the types of auction and sale methods we offer, the bidding registration process, your payment obligations, and how to view the Legal Pack (and any applicable home report for residential Scottish properties).

Guide Price & Reserve Price

Each property sold is subject to a Reserve Price. The Reserve Price will be within + or - 10% of the Guide Price. The Guide Price is issued solely as a guide so that a buyer can consider whether or not to pursue their interest. A full definition can be found within the Buyers Terms. 
General

Note
Please be advised that whilst our joint agent has conducted an inspection, the auctioneers have not personally inspected the property. Prospective buyers are advised to make a viewing enquiry and any other necessary independent enquiries before placing their bid, as this will be binding.

VALUE ADDED TAX (VAT)
We understand that VAT is elected on the property, and therefore, VAT will be payable on the purchase price.

Draft Sales Particulars
These sales details are awaiting vendor approval

Our Nearest Office

Nottingham 600x300

Nottingham

Joint Agent

You may also like

Live Stream Auction

62 Cyprus Road, Aylestone, Leicestershire LE2 8QS

Guide Price: £110,000 plus

Live Stream Auction

Flat 1, 46 Handsworth Wood Road, Birmingham, West Midlands B20 2DT

Guide Price: £49,000 plus

Live Stream Auction

24 Promenade, Cheltenham GL50 1LR

Guide Price: £520,000 plus

Sold Prior to Auction

Land & Buildings at 111 Barnsley Road, South Elmsall, Pontefract, West Yorkshire WF9 2BH

Guide Price: £180,000 plus

Live Stream Auction

Oakbarn Cottage, 8 Westfield Lane, Idle, Bradford, West Yorkshire BD10 8PY

Guide Price: £145,000 plus

Sold Prior to Auction

135 Braemar Road, Manchester, Greater Manchester M14 6PN

Guide Price: £220,000 plus

Live Stream Auction

16 Winnington Street, Northwich CW8 1AD

Guide Price: £180,000 plus

Live Stream Auction

18 Winnington Street, Northwich, Cheshire CW8 1AD

Guide Price: £75,000 plus

Search Available
Online Auctions
Search online auction icon
Guide to
Buying at Auction
Buying guide icon
Guide to Selling
Your Property
Selling guide icon
Sign Up For
Auction Alerts
Alert icon