We're now part of BTG Eddisons - Visit our new website BTGEddisonsPropertyAuctions.com
Lot
038
Auction: 26th May 2026 Multi-Lot Timed Auction 26/05/2026 - Bidding opens Tuesday 26th May 10:00 AM

1-4 Salisbury Street, Widnes, Cheshire WA8 6PJ

Guide Price
£185,000 plus
We've unified our Auction Brands
If you're interested in this lot visit BTG Eddisons Property Auctions to book a viewing, submit an offer, send an enquiry and more.
View more details about this property on our new auction website
Share this Property
Property Details
Location
Auction Details
Description
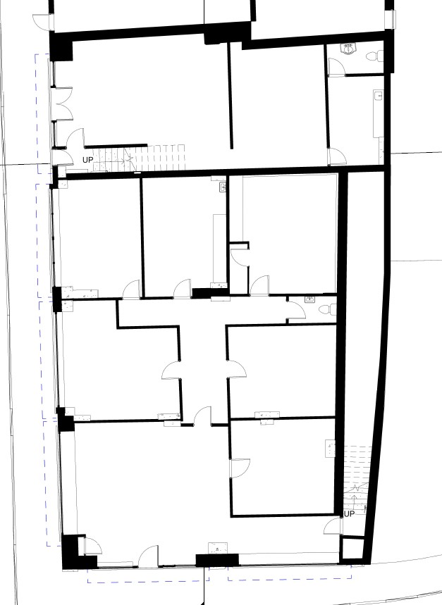
A modern retail building extending to approximately 640 Sq M (6,888 Sq Ft) arranged over ground and first floor. Unit 1-3 is currently let to Point Accounting on a Tenancy at Will at a rent of £12,000 per annum, with Unit 4 being vacant. Part of the first floor area is currently in shell condition, with the opportunity to add value by completing the fit-out/conversion works.

The property has frontage to South Street and Salisbury Street and is a short distance from Albert Square Shopping Centre. There is a 300-space free car park adjacent and nearby retailers include Greggs, Halifax, CEX and Morrisons.

The property benefits from planning consent for subdivision of the ground floor accommodation into three commercial units and also change of use consent to convert the first floor into two flats. The property may be suitable for other alternative uses, subject to obtaining the necessary consents.
Accommodation

Unit 1-3:
Ground Floor: 207 Sq M (2,228 Sq Ft)


First Floor: 227 Sq M (2,443 Sq Ft)


Total: 434 Sq M (4,671 Sq Ft)

Unit 4:
Ground Floor: 105 Sq M (1,130 Sq Ft)


First Floor: 101 Sq M (1,087 Sq Ft)


Total: 206 Sq M (2,217 Sq Ft)

Costs
Auction Details

The sale of this property will take place on the stated date by way of Multi lot timed auction and is being sold under the Unconditional sale type.

Binding contracts will be exchanged at the point of sale.

All sales are subject to our Common Auction Conditions and Bidder Terms. Properties located in Scotland and Northern Ireland will be subject to applicable local laws.

Auction Deposit and Fees

The following deposits and non- refundable auctioneers fees apply:

• 10% deposit (subject to a minimum of £5,000)

• Buyer’s Fee of 1.8% of the purchase price (subject to a minimum of £2,400 inc. VAT)

There may be additional fees listed in the Special Conditions of Sale, which will be available to view within the Legal Pack. You must read the Legal Pack carefully before bidding.

Additional Information

For full details about our auction processes, please refer to the Bidder Terms which can be viewed on our home page.

This explains the types of auction and sale methods we offer, the bidding registration process, your payment obligations, and how to view the Legal Pack (and any applicable home report for residential Scottish properties).

Guide Price & Reserve Price

Each property sold is subject to a Reserve Price. The Reserve Price will be within + or - 10% of the Guide Price. The Guide Price is issued solely as a guide so that a buyer can consider whether or not to pursue their interest. A full definition can be found within the Buyers Terms. 
General

Business Rates:
The property is entered in the 2026 Rating List with the following assessments with effect from 1 April 2026:


Point Accounting, Units 1-3 Salisbury Street: Offices and Premises - RV £13,500


Room 1, Units 1-3 Salisbury Street: Offices and Premises - RV £3,050


Room 3, Units 1-3 Salisbury Street: Beauty Salon and Premises - RV £3,050


Room 5, Units 1-3 Salisbury Street: Hairdressing Salon and Premises - RV £2,550


The Kitchen, Units 1-3 Salisbury Street: Kitchen and Premises - RV £3,000


Unit 4 Salisbury Street: Shop and Premises - RV £6,800


The Rateable Value (RV) is not the amount payable.

Tenure:
We understand the property is held leasehold by way of two 999-year leases from 1 January 1891 and 7 October 1943.


The pre-authorisation of the bidding deposit for this lot is £5,000.

Our Nearest Office

Liverpool 600x300

Liverpool

You may also like

001
Multi-Lot Timed Auction

Exchange House, 6 Marton Road, Middlesbrough, North Yorkshire TS1 1DB

Guide Price: £380,000 plus

002
Multi-Lot Timed Auction

Former Public Conveniences, Park Green, Macclesfield, Cheshire SK11 7NH

Guide Price: £40,000

003
Multi-Lot Timed Auction

Land and Garages , Ranby Road , Endcliffe Park, Sheffield, South Yorkshire S11 7AJ

Guide Price: £125,000

004
Multi-Lot Timed Auction

Land At Cass Yard, Union Street, Wakefield, West Yorkshire WF1 3AE

Guide Price: £5,000 plus

005
Multi-Lot Timed Auction

Unit 1 Slate House, Oakwood Court, City Road, Bradford, West Yorkshire BD8 8JY

Guide Price: £65,000 plus

006
Entered into a future auction

Land at Bent Street & Elm Street, Newsome, Huddersfield, West Yorkshire HD4 6NX

Guide Price: £130,000 plus

007
Multi-Lot Timed Auction

162-164 Blacker Road, Huddersfield, West Yorkshire HD1 5HH

Guide Price: £100,000 plus

008
Multi-Lot Timed Auction

40 Hawthorn Road, Blackpool, Lancashire FY1 2RE

Guide Price: £45,000 plus

Search Available
Online Auctions
Search online auction icon
Guide to
Buying at Auction
Buying guide icon
Guide to Selling
Your Property
Selling guide icon
Sign Up For
Auction Alerts
Alert icon