We're now part of BTG Eddisons - Visit our new website BTGEddisonsPropertyAuctions.com
Lot
076
Auction: 24th February 2026 Multi-Lot Timed Auction 24/02/2026 - Bidding opens Tuesday 24th February 10:00 AM

85 Third Street, Horden, Peterlee, Durham SR8 4EH

Guide Price
£9,000 plus
We've unified our Auction Brands
If you're interested in this lot visit BTG Eddisons Property Auctions to book a viewing, submit an offer, send an enquiry and more.
View more details about this property on our new auction website
Share this Property
Property Details
Location
Auction Details
Description
A Freehold vacant mid terrace property locted within an area earmarked for regeneration within the Horden Masterplan, which was signed off in September 2024 and approved by Durham Council in December 2025. The property currently requires a full scheme of refurbishment and modernisation and offers the potential to provide four bedrooms with accommodation over three floors. The current owner has also drawn up some plans to show the possibility to create two self-contained apartments, 1 X one bedroom & 1 X two bedroom, subject to planning consent. The property is situated close to the centre of Horden, close to local amenities, schools and bus routes to Peterlee, Sunderland, and the surrounding areas.
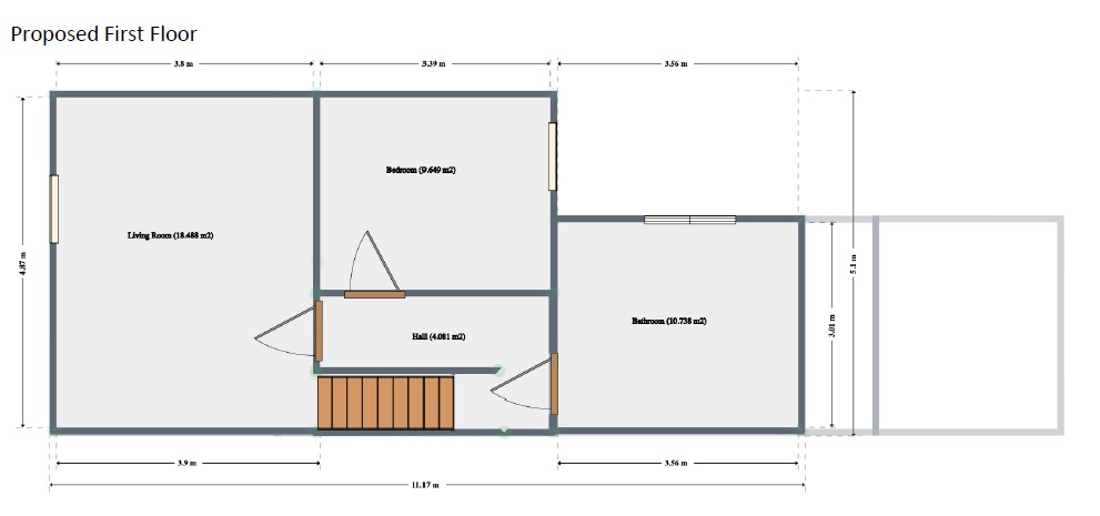
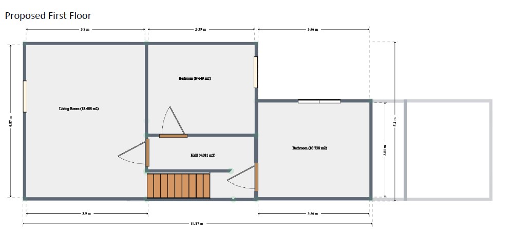
Accommodation

Presumed Accoomodation As Advised By The Vendor

Ground Floor
Open Plan Lounge/ Dining Room
Kitchen
Rear Lobby
Bathroom

First Floor
Bedroom One
Bedroom Two
Bedroom Three

Second Floor
Loft Room

Costs
Auction Details

The sale of this property will take place on the stated date by way of Multi lot timed auction and is being sold under the Unconditional sale type.

Binding contracts will be exchanged at the point of sale.

All sales are subject to our Common Auction Conditions and Bidder Terms. Properties located in Scotland and Northern Ireland will be subject to applicable local laws.

Auction Deposit and Fees

The following deposits and non- refundable auctioneers fees apply:

• 10% deposit (subject to a minimum of £5,000)

• Buyer’s Fee of £3,540 inc. VAT

There may be additional fees listed in the Special Conditions of Sale, which will be available to view within the Legal Pack. You must read the Legal Pack carefully before bidding.

Additional Information

For full details about our auction processes, please refer to the Bidder Terms which can be viewed on our home page.

This explains the types of auction and sale methods we offer, the bidding registration process, your payment obligations, and how to view the Legal Pack (and any applicable home report for residential Scottish properties).

Guide Price & Reserve Price

Each property sold is subject to a Reserve Price. The Reserve Price will be within + or - 10% of the Guide Price. The Guide Price is issued solely as a guide so that a buyer can consider whether or not to pursue their interest. A full definition can be found within the Buyers Terms. 
General


1. All the information provided on our website is for indicative purposes only and interested parties should refer to the contents of the legal pack and rely upon their own due diligence as a prudent bidder.


2. PLEASE NOTE BIDDING COMMENCES ON TUESDAY 24TH FEBRUARY AND CLOSES ON WEDNESDAY 25TH FEBRUARY.


3. Energy Performance Certificate = G.

Note
Please be advised that the auctioneers have not personally inspected the property. Prospective buyers are advised to make all necessary independent enquiries before placing their bid, as this will be binding.

Our Nearest Office

Newcastle 600x300

Newcastle

You may also like

001
Multi-Lot Timed Auction

Ashfield Farm, Leathley Lane, Castley, Otley, North Yorkshire LS21 2JP

Guide Price: £685,000 plus

002
Multi-Lot Timed Auction

Former Great Fryup Residential Centre, Danby, Fryup, Whitby, North Yorkshire YO21 2AP

Guide Price: £160,000 plus

003
Multi-Lot Timed Auction

Land adjacent to 137 Ruabon Road, Wrexham, Wrexham LL13 7RB

Guide Price: £20,000

004
Multi-Lot Timed Auction

Edgefold Farmhouse & Barn, Edge Lane, Bolton, Lancashire BL7 0NQ

Guide Price: £500,000 plus

005
Multi-Lot Timed Auction

Otley Cemetery Lodge, Pool Road, Otley, West Yorkshire LS21 1HL

Guide Price: £185,000 plus

006
Multi-Lot Timed Auction

5-19 Westfield Street, St. Helens, Merseyside WA10 1QA

Guide Price: £500,000 plus

007
Multi-Lot Timed Auction

Mills Brow Farm, Atherton, Manchester, Lancashire M46 9HL

Guide Price: £320,000 plus

008
Multi-Lot Timed Auction

712 City Road, Sheffield, South Yorkshire S2 1GJ

Guide Price: £60,000 plus

Search Available
Online Auctions
Search online auction icon
Guide to
Buying at Auction
Buying guide icon
Guide to Selling
Your Property
Selling guide icon
Sign Up For
Auction Alerts
Alert icon