We're now part of BTG Eddisons - Visit our new website BTGEddisonsPropertyAuctions.com
Lot
163a
Auction: 26th March 2026 Live Stream Auction 26/03/2026 - Bidding opens Thursday 26th March 9:00 AM

Flat 6, The Place, 564 Harrogate Road, Leeds LS17 8BL

Guide Price
£150,000 plus
We've unified our Auction Brands
If you're interested in this lot visit BTG Eddisons Property Auctions to book a viewing, submit an offer, send an enquiry and more.
View more details about this property on our new auction website
Share this Property
Property Details
Location
Auction Details
Description
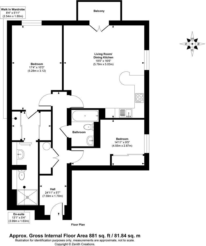
A very well-appointed, high-end apartment on Harrogate Road, Alwoodley. This ground floor apartment offers approximately 81 sq m (870 sq ft) of luxury accommodation, including open-plan living space, an en-suite master bedroom with dressing room, a second, double bedroom, modern kitchen, house bathroom, and balcony. Further benefits include underfloor heating and mood-lighting, along with communal gardens, video intercom entry, and an allocated, undercroft, parking space.

This property offers a rare opportunity for buyers to acquire an attractive home, or investors to add to a high-end residential property to their portfolio.
Accommodation

Ground Floor
Hall, Living Kitchen, Two Bedrooms, Bathroom, Dressing Room and Ensuite Shower Room and Balcony.

Costs
Auction Details

The sale of this property will take place on the stated date by way of Live streamed auction and is being sold under the Unconditional sale type.

Binding contracts will be exchanged at the point of sale.

All sales are subject to our Common Auction Conditions and Bidder Terms. Properties located in Scotland and Northern Ireland will be subject to applicable local laws.

Auction Deposit and Fees

The following deposits and non- refundable auctioneers fees apply:

• 10% deposit (subject to a minimum of £5,000)

• Buyer’s Fee of 1.8% of the purchase price inc VAT

There may be additional fees listed in the Special Conditions of Sale, which will be available to view within the Legal Pack. You must read the Legal Pack carefully before bidding.

Additional Information

For full details about our auction processes, please refer to the Bidder Terms which can be viewed on our home page.

This explains the types of auction and sale methods we offer, the bidding registration process, your payment obligations, and how to view the Legal Pack (and any applicable home report for residential Scottish properties).

Guide Price & Reserve Price

Each property sold is subject to a Reserve Price. The Reserve Price will be within + or - 10% of the Guide Price. The Guide Price is issued solely as a guide so that a buyer can consider whether or not to pursue their interest. A full definition can be found within the Buyers Terms. 
General

Leasehold Information
125 years from 1 January 2007. Ground Rent - £700 per annum. Service Charge - £4,319.92 per annum. Any ground rent and service charge review periods will be confirmed in the lease documents within the legal pack.

Our Nearest Office

Leeds 600x300

Leeds

You may also like

101
Live Stream Auction

39 Crosshill, Cotgrave, Nottingham NG12 3NB

Guide Price: £59,500 plus

102
Live Stream Auction

30 Mardon Road, Birmingham, West Midlands B26 3EX

Guide Price: £95,000 plus

103
Live Stream Auction

Garage Site at New Road, Barlborough, Derbyshire S43 4HY

Guide Price: £10,000 plus

104
Live Stream Auction

Land with caravan parking, garages & paddock, Alfreton Road, Little Eaton, Derbyshire DE21 5AD

Guide Price: £90,000 plus

105
Live Stream Auction

19 May Street, Derby DE22 3UQ

Guide Price: £55,000 plus

106
Live Stream Auction

Holmewood Industrial Estate Units, Stainsby Close, Holmewood S42 5UG

Guide Price: £575,000 plus

107
Live Stream Auction

Holmewood Business Park, Chesterfield Road, Holmewood S42 5US

Guide Price: £1,200,000 plus

108
Live Stream Auction

2 Longfield, Falmouth, Cornwall TR11 4SJ

Guide Price: £220,000 plus

Search Available
Online Auctions
Search online auction icon
Guide to
Buying at Auction
Buying guide icon
Guide to Selling
Your Property
Selling guide icon
Sign Up For
Auction Alerts
Alert icon