We're now part of BTG Eddisons - Visit our new website BTGEddisonsPropertyAuctions.com
Lot
040
Auction: 27th January 2026 Multi-Lot Timed Auction 27/01/2026 - Bidding opens Tuesday 27th January 10:00 AM

Batley Baths, Cambridge Street, Batley, West Yorkshire WF17 5JH

Sold for
£318,000
We've unified our Auction Brands
If you're interested in this lot visit BTG Eddisons Property Auctions to book a viewing, submit an offer, send an enquiry and more.
View more details about this property on our new auction website
Share this Property
Property Details
Location
Auction Details
Description
Rare opportunity to acquire a grade II-listed former baths dating back to 1893 with parking

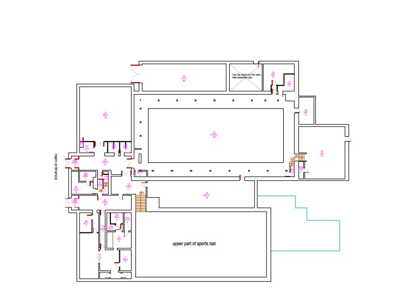
This site of a substantial former baths and leisure centre plus car park extends to approximately 0.73 acres and is sold freehold with vacant possession. The property is of stone construction and is arranged over three storeys, plus basement. It briefly comprises a 23m x 10m swimming pool, sports hall, fitness studio, sauna and steam room, office accommodation, and changing and toilet facilities. The property would be suitable for conversion/redevelopment, subject to any necessary consents.

The property enjoys a prominent position at the corner of Wellington Street and Cambridge Street in the centre of Batley. The area is of mixed-use, with Batley Memorial Park to the north, industrial premises across the road, and various retail and eatery premises and residential properties nearby. The property is also well-served by bus routes and Batley train station.
General


4. Details of the Buyers Premium and any additional fees payable are contained within the legal documents.


1. All the information provided on our website is for indicative purposes only and interested parties should refer to the contents of the legal pack and rely upon their own due diligence as a prudent bidder.


2. PLEASE NOTE BIDDING COMMENCES ON TUESDAY 27TH JANUARY AND CLOSES ON WEDNESDAY 28TH JANUARY.


3. The pre-authorisation of the bidding deposit for this lot is £20,000.

Our Nearest Office

Leeds 600x300

Leeds

You may also like

001
Sold at auction

Former Kinsley Craft Workshop, Wakefield Road, Kinsley, Pontefract, West Yorkshire WF9 5EH

Guide Price: £70,000 plus

002
Withdrawn

Land at Coutances Way, Burley in Wharfedale, Ilkley, West Yorkshire LS29 7HQ

Guide Price: £10,000 plus

003
Withdrawn

Templeton Lodge, Templeton Road, Platt Bridge, Wigan, Lancashire WN2 5PB

Guide Price: £180,000 plus

004
Entered into a future auction

Land adjacent to 137 Ruabon Road, Wrexham, Wrexham LL13 7RB

Guide Price: £20,000

005
Sold at auction

52 Church Street, Connahs Quay, Deeside, Flintshire CH5 4AQ

Guide Price: £125,000 plus

006
Sold at auction

Flat 1-4, 47 Olivet Road, Sheffield, South Yorkshire S8 8QR

Guide Price: £200,000 plus

008
Sold at auction

Unit 1 - 4, New York Cottages, Bangor Road, Penmaenmawr, Conwy LL34 6NP

Guide Price: £125,000

009
Multi-Lot Timed Auction

4 Ashworth House, Manchester Road, Burnley, Lancashire BB11 1ER

Guide Price: £35,000 plus

Search Available
Online Auctions
Search online auction icon
Guide to
Buying at Auction
Buying guide icon
Guide to Selling
Your Property
Selling guide icon
Sign Up For
Auction Alerts
Alert icon