We're now part of BTG Eddisons - Visit our new website BTGEddisonsPropertyAuctions.com
Lot
287
Auction: 26th February 2026 Live Stream Auction 26/02/2026 - Bidding opens Thursday 26th February 9:00 AM

Hazelton, Whiteshoots Hill, Bourton-On-The-Water, Gloucestershire GL54 2LE

Guide Price
£485,000 plus
We've unified our Auction Brands
If you're interested in this lot visit BTG Eddisons Property Auctions to book a viewing, submit an offer, send an enquiry and more.
View more details about this property on our new auction website
Share this Property
Property Details
Location
Auction Details
Description
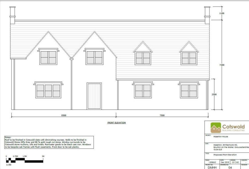
A freehold site comprising a substantial detached bungalow set within a generous and open site extending to just over 1.5 acres. The remainder of the site comprises two storage buildings along with a detached Nissan Hut. There is access both to the front and rear of the site.

PLANNING
Planning consent has expired for the replacement of the existing dwelling with a substantial detached house with accommodation to be arranged over two floors and extending to over 5,000 sq ft including a detached garage and studio.

We feel there may well be good potential to make an application for a Specialist Care Unit with C2 use in a building of similar size.

Hazelton is situated on the edge of and within walking distance of Bourton-on-the-Water. Bourton provides an excellent range of local facilities including a range of boutique shops, supermarkets, pubs, restaurants, doctors, churches, a leisure centre, local primary school and the popular Cotswold Secondary school. The area's larger commercial and cultural centres of Cheltenham, Cirencester and Oxford are within easy travelling distance and there are main line rail services at Kingham (8 miles) (Paddington 80mins approx.). There is also a comprehensive local bus network.
Costs
Auction Details

The sale of this property will take place on the stated date by way of Live streamed auction and is being sold under the Unconditional sale type.

Binding contracts will be exchanged at the point of sale.

All sales are subject to our Common Auction Conditions and Bidder Terms. Properties located in Scotland and Northern Ireland will be subject to applicable local laws.

Auction Deposit and Fees

The following deposits and non- refundable auctioneers fees apply:

• 5% deposit (subject to a minimum of £5,000)

• Buyers Fee of 3.6% of the purchase price inc. VAT. 

There may be additional fees listed in the Special Conditions of Sale, which will be available to view within the Legal Pack. You must read the Legal Pack carefully before bidding.

Additional Information

For full details about our auction processes, please refer to the Bidder Terms which can be viewed on our home page.

This explains the types of auction and sale methods we offer, the bidding registration process, your payment obligations, and how to view the Legal Pack (and any applicable home report for residential Scottish properties).

Guide Price & Reserve Price

Each property sold is subject to a Reserve Price. The Reserve Price will be within + or - 10% of the Guide Price. The Guide Price is issued solely as a guide so that a buyer can consider whether or not to pursue their interest. A full definition can be found within the Buyers Terms. 
General

Note
Please be advised that the auctioneers have not personally inspected the property. Prospective buyers are advised to make a viewing enquiry and any other necessary independent enquiries before placing their bid, as this will be binding.

Draft Sales Particulars
These sales details are awaiting vendor approval

Our Nearest Office

Birmingham 600x300

Birmingham

Joint Agent

You may also like

101
Live Stream Auction

29 Pinfold Lane, Stapleford, Nottingham NG9 8DL

Guide Price: £75,000 plus

102
Live Stream Auction

1 Oxford Avenue, Evington, Leicestershire LE2 1HP

Guide Price: £75,000 plus

103
Live Stream Auction

13 Gordon Avenue, Leicester LE2 1AA

Guide Price: £150,000 plus

104
Sold Prior to Auction

15 The Green, Mickleover, Derby DE3 0DE

Guide Price: £120,000 plus

105
Live Stream Auction

Pond House, Shipley Lane, Mapperley, Ilkeston DE7 6BR

Guide Price: £110,000 plus

106
Live Stream Auction

Holmewood Industrial Estate Units, Stainsby Close, Holmewood S42 5UG

Guide Price: £575,000 plus

107
Live Stream Auction

24 Trent Road, Nottingham NG2 4FH

Guide Price: £80,000 plus

108
Live Stream Auction

89 Haddon Street, Derby DE23 6NQ

Guide Price: £85,000 plus

Search Available
Online Auctions
Search online auction icon
Guide to
Buying at Auction
Buying guide icon
Guide to Selling
Your Property
Selling guide icon
Sign Up For
Auction Alerts
Alert icon