We're now part of BTG Eddisons - Visit our new website BTGEddisonsPropertyAuctions.com
Lot
123
Auction: 26th March 2026 Live Stream Auction 26/03/2026 - Bidding opens Thursday 26th March 9:00 AM

3 Winchester Drive, Midway, Swadlincote, Derbyshire DE11 7LP

Sold for
£155,000
We've unified our Auction Brands
If you're interested in this lot visit BTG Eddisons Property Auctions to book a viewing, submit an offer, send an enquiry and more.
View more details about this property on our new auction website
Share this Property
Property Details
Location
Auction Details
Description
A three bedroom semi detached property situated in a quiet and popular residential location within Midway.

Whilst in need of up-grading and improvement the house offers great potential to become a lovely family home or excellent buy to let investment. The property benefits from gas fired central heating and uPVC double glazing.

Well placed for local amenities including shops, parks and schooling and having good access to both Swadlincote, Burton and Derby.

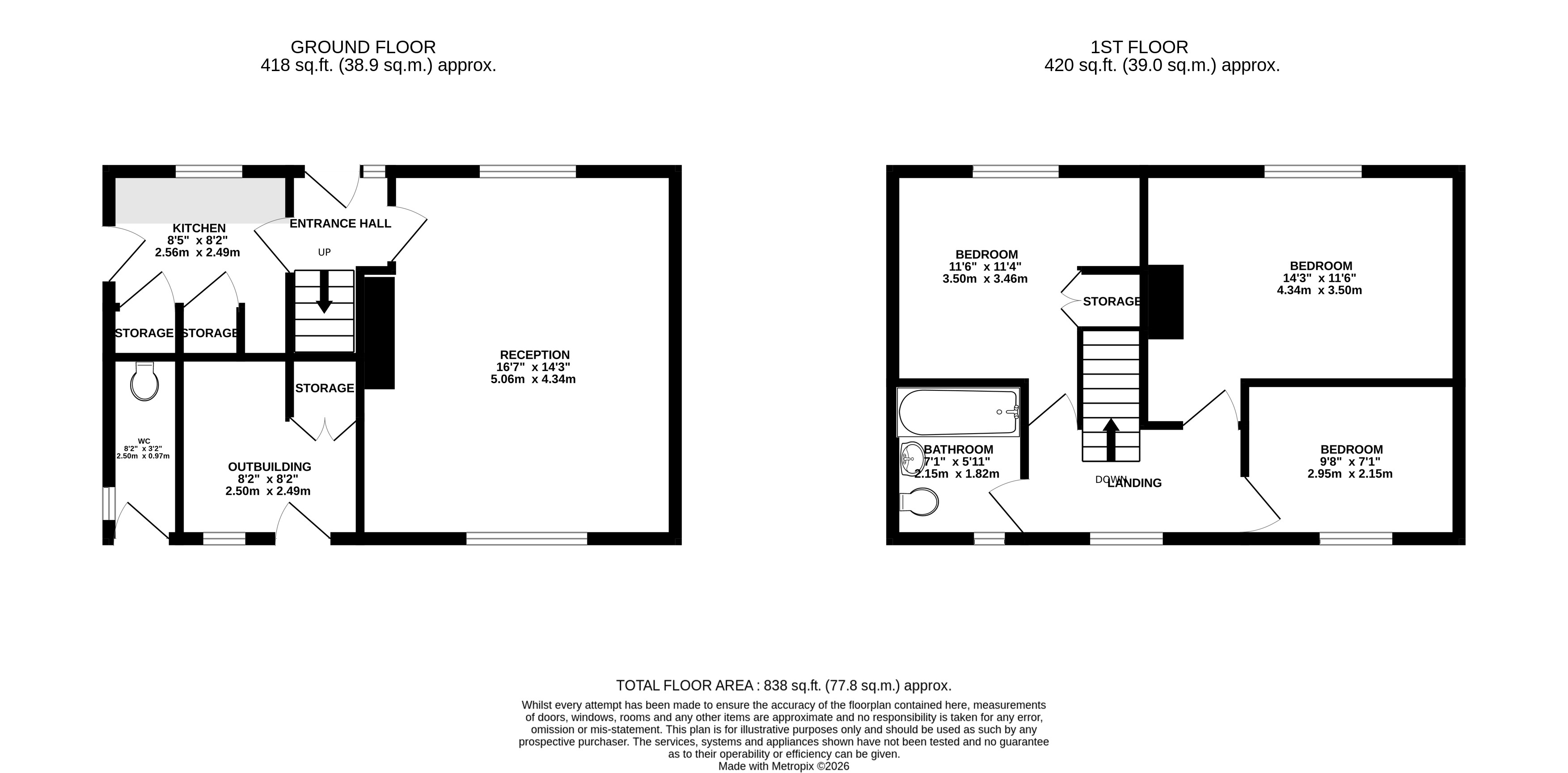
Accommodation

Reception Hallway
Having staircase rising to first floor and one double central heating radiator.

Lounge/Diner 5.06m x 4.34m
Upvc double glazed windows to front and rear elevations, one double central heating radiator, full height storage cupboard and fitted wall mounted gas fire.

Kitchen 2.48m x 2.7m
With sink and drainer, base unit, wall mounted Ideal combi boiler, Upvc double glazed window to front elevation, Upvc door to side, fitted pantry cupboard and fitted meter cupboard.

Landing
Having access to loft and one central heating radiator.

Bedroom One 4.34m x 3.50m
Having Upvc double glazed window to front elevation, one central heating radiator and feature tiled fireplace.

Bedroom Two 3.50m x 3.46m
With radiator and window to front.

Bedroom Three 2.95m x 2.14m
Having Upvc double glazed window to rear elevation.

Bathroom
With obscure Upvc double glazed window to rear elevation, one central heating radiator and three piece bathroom suite.

Outside
To the front of the home is a fore garden set behind a hedgerow. A shared tarmacadam driveway provides access to a single garage. There is an outside W.C and store. To the rear is a substantial but overgrown garden.

Costs
Auction Details

The sale of this property will take place on the stated date by way of Live streamed auction and is being sold under the Unconditional sale type.

Binding contracts will be exchanged at the point of sale.

All sales are subject to our Common Auction Conditions and Bidder Terms. Properties located in Scotland and Northern Ireland will be subject to applicable local laws.

Auction Deposit and Fees

The following deposits and non- refundable auctioneers fees apply:

• 5% deposit (subject to a minimum of £5,000)

• Buyer’s Fee of 4.8% of the purchase price (subject to a minimum of £6,000 inc. VAT)

There may be additional fees listed in the Special Conditions of Sale, which will be available to view within the Legal Pack. You must read the Legal Pack carefully before bidding.

Additional Information

For full details about our auction processes, please refer to the Bidder Terms which can be viewed on our home page.

This explains the types of auction and sale methods we offer, the bidding registration process, your payment obligations, and how to view the Legal Pack (and any applicable home report for residential Scottish properties).

Guide Price & Reserve Price

Each property sold is subject to a Reserve Price. The Reserve Price will be within + or - 10% of the Guide Price. The Guide Price is issued solely as a guide so that a buyer can consider whether or not to pursue their interest. A full definition can be found within the Buyers Terms. 
General

Note
Please be advised that the auctioneers have not personally inspected the property. Prospective buyers are advised to make a viewing enquiry and any other necessary independent enquiries before placing their bid, as this will be binding.

Draft Sales Particulars
These sales details are awaiting vendor approval

Our Nearest Office

Nottingham 600x300

Nottingham

Joint Agent

You may also like

101
Sold at auction

39 Crosshill, Cotgrave, Nottingham NG12 3NB

Guide Price: £59,500 plus

102
Sold at auction

30 Mardon Road, Birmingham, West Midlands B26 3EX

Guide Price: £95,000 plus

103
Sold at auction

Garage Site at New Road, Barlborough, Derbyshire S43 4HY

Guide Price: £10,000 plus

104
Sold at auction

Land with caravan parking, garages & paddock, Alfreton Road, Little Eaton, Derbyshire DE21 5AD

Guide Price: £90,000 plus

105
Sold at auction

19 May Street, Derby DE22 3UQ

Guide Price: £55,000 plus

106
Sold at auction

Holmewood Industrial Estate Units, Stainsby Close, Holmewood S42 5UG

Guide Price: £575,000 plus

107
Sold at auction

Holmewood Business Park, Chesterfield Road, Holmewood S42 5US

Guide Price: £1,200,000 plus

108
Sold at auction

2 Longfield, Falmouth, Cornwall TR11 4SJ

Guide Price: £220,000 plus

Search Available
Online Auctions
Search online auction icon
Guide to
Buying at Auction
Buying guide icon
Guide to Selling
Your Property
Selling guide icon
Sign Up For
Auction Alerts
Alert icon