We're now part of BTG Eddisons - Visit our new website BTGEddisonsPropertyAuctions.com
Lot
298
Auction: 26th February 2026 Live Stream Auction 26/02/2026 - Bidding opens Thursday 26th February 9:00 AM

100 Craven Street, Birkenhead, Merseyside CH41 4BS

Sold Prior
We've unified our Auction Brands
If you're interested in this lot visit BTG Eddisons Property Auctions to book a viewing, submit an offer, send an enquiry and more.
View more details about this property on our new auction website
Share this Property
Property Details
Location
Auction Details
Description
A spacious, bay fronted, terraced house which has undergone initial works to convert to a four bedroom HMO.

The property comprises of a ground floor bedroom with en-suite, three bedrooms with bathroom to the first floor along with hallway, lounge and kitchen.

Finishing works are still required but the property offers excellent scope to provide a great investment opportunity or even as a spacious family home.

Well placed for a great range of amenities and transport links.

Offered freehold and with vacant possession.
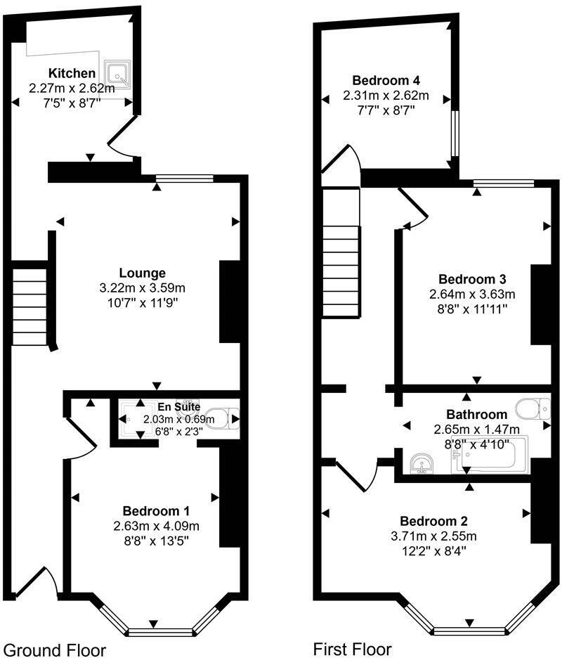
Accommodation

Ground Floor
Entrance Hall, Lounge, Kitchen, Bedroom Four with En-Suite.

First Floor
Landing, Bedroom One, Bedroom Two, Bedroom Three, Bathroom.

Outside
Small garden to front. Low maintenance rear garden.

Note
Please be advised that the auctioneers have not personally inspected the property. Prospective buyers are advised to make a viewing enquiry and any other necessary independent enquiries before placing their bid, as this will be binding.

Costs
Auction Details:

The sale of this property will take place on the stated date by way of Auction Event and is being sold under an Unconditional sale type.

Binding contracts of sale will be exchanged at the point of sale.

All sales are subject to SDL Property Auctions Buyers Terms. Properties located in Scotland will be subject to applicable Scottish law.

Auction Deposit and Fees:

The following deposits and non- refundable auctioneers fees apply:

• 5% deposit (subject to a minimum of £5,000)

• Buyers Fee of 4.8% of the purchase price (subject to a minimum of £3,600 inc. VAT). 

The Buyers Fee does not contribute to the purchase price, however it will be taken into account when calculating the Stamp Duty Land Tax for the property (known as Land and Buildings Transaction Tax for properties located in Scotland), because it forms part of the chargeable consideration for the property.

There may be additional fees listed in the Special Conditions of Sale, which will be available to view within the Legal Pack. You must read the Legal Pack carefully before bidding.

Additional Information:

For full details about all auction methods and sale types please refer to the Auction Conduct Guide which can be viewed on the SDL Property Auctions home page.

This guide includes details on the auction registration process, your payment obligations and how to view the Legal Pack (and any applicable Home Report for residential Scottish properties).

Guide Price & Reserve Price:

Each property sold is subject to a Reserve Price. The Reserve Price will be within + or - 10% of the Guide Price. The Guide Price is issued solely as a guide so that a buyer can consider whether or not to pursue their interest. A full definition can be found within the Buyers Terms.

Our Nearest Office

Liverpool 600x300

Liverpool

Joint Agent

You may also like

101
Live Stream Auction

29 Pinfold Lane, Stapleford, Nottingham NG9 8DL

Guide Price: £75,000 plus

102
Live Stream Auction

1 Oxford Avenue, Evington, Leicestershire LE2 1HP

Guide Price: £75,000 plus

103
Live Stream Auction

13 Gordon Avenue, Leicester LE2 1AA

Guide Price: £150,000 plus

104
Sold Prior to Auction

15 The Green, Mickleover, Derby DE3 0DE

Guide Price: £120,000 plus

105
Live Stream Auction

Pond House, Shipley Lane, Mapperley, Ilkeston DE7 6BR

Guide Price: £110,000 plus

106
Live Stream Auction

Holmewood Industrial Estate Units, Stainsby Close, Holmewood S42 5UG

Guide Price: £575,000 plus

107
Live Stream Auction

24 Trent Road, Nottingham NG2 4FH

Guide Price: £80,000 plus

108
Live Stream Auction

89 Haddon Street, Derby DE23 6NQ

Guide Price: £85,000 plus

Search Available
Online Auctions
Search online auction icon
Guide to
Buying at Auction
Buying guide icon
Guide to Selling
Your Property
Selling guide icon
Sign Up For
Auction Alerts
Alert icon