We're now part of BTG Eddisons - Visit our new website BTGEddisonsPropertyAuctions.com
Auction: 26th February 2026 Live Stream Auction 26/02/2026 - Bidding opens Thursday 26th February 9:00 AM

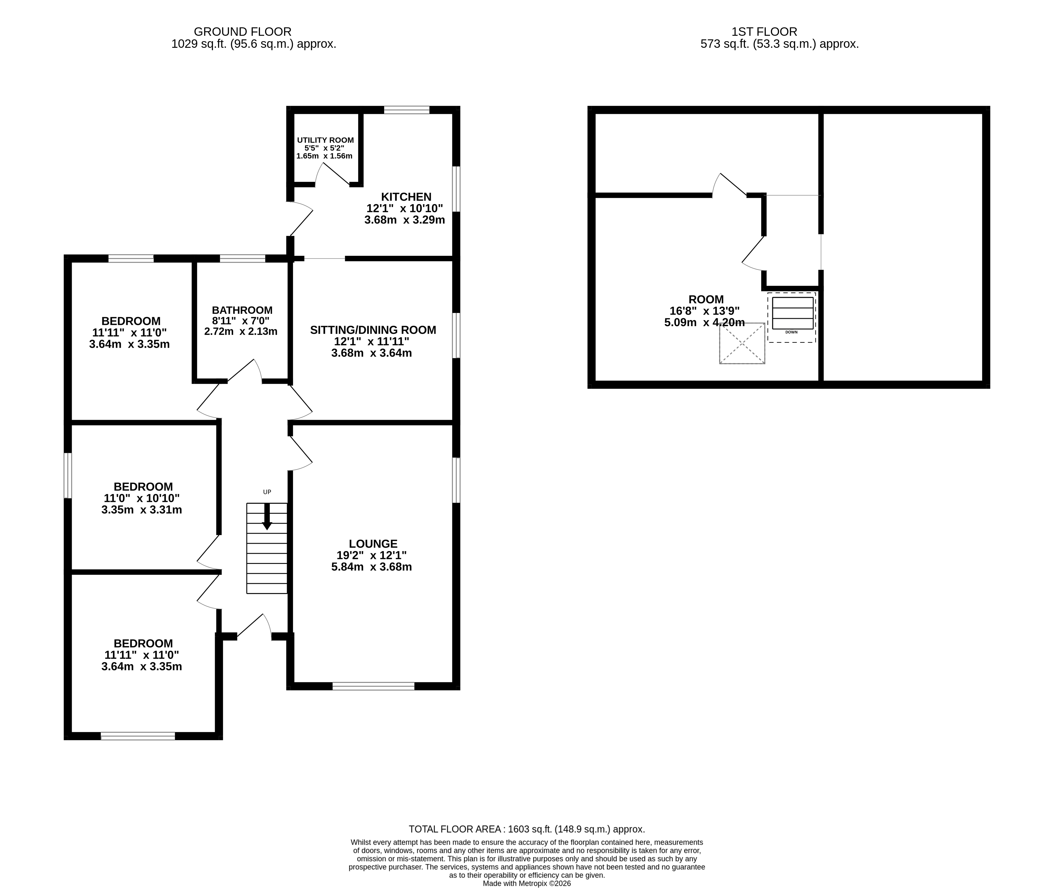
66 Bar Lane, Mapplewell, Barnsley S75 6DE

Guide Price
£195,000 plus
We've unified our Auction Brands
If you're interested in this lot visit BTG Eddisons Property Auctions to book a viewing, submit an offer, send an enquiry and more.
View more details about this property on our new auction website
Share this Property
Property Details
Location
Auction Details
Description
This three bedroom detached bungalow, in Mapplewell, offers an investor a great opportunity to add value. Already a substantial dwelling, featuring three double bedrooms and two reception rooms, it also benefits from a large loft room with a space saving staircase, and Velux window already installed. The added value will come from gaining retrospective building regulation sign off for this room and creating more bedrooms/bathrooms on the first floor. The remainder of the house would benefit from cosmetic updating and installation of a heating system.

Externally, there is a driveway leading to a detached garage and gardens to the front and rear.

Location
Positioned on Bar Lane, a very desirable and rural part of Mapplewell village, close to the local amenities and just 3.5 miles south east of Junction 38 of the M1.
Costs
Auction Details:

The sale of this property will take place on the stated date by way of Auction Event and is being sold under and Unconditional sale type.

Binding contracts of sale will be exchanged at the point of sale.

All sales are subject to SDL Property Auctions Buyers Terms. Properties located in Scotland will be subject to applicable Scottish law.

Auction Deposit and Fees:

The following deposits and non- refundable auctioneers fee apply:

• 10% deposit (subject to a minimum of £5,000)

• Buyers Fee of 1.8% of the purchase price inc VAT.

The Buyers Fee does not contribute to the purchase price, however it will be taken into account when calculating the Stamp Duty Land Tax for the property (known as Land and Buildings Transaction Tax for properties located in Scotland), because it forms part of the chargeable consideration for the property.

There may be additional fees listed in the Special Conditions of Sale, which will be available to view within the Legal Pack. You must read the Legal Pack carefully before bidding.

Additional Information:

For full details about all auction methods and sale types please refer to the Auction Conduct Guide which can be viewed on the SDL Property Auctions home page.

This guide includes details on the auction registration process, your payment obligations and how to view the Legal Pack (and any applicable Home Report for residential Scottish properties).

Guide Price & Reserve Price:

Each property sold is subject to a Reserve Price. The Reserve Price will be within + or - 10% of the Guide Price. The Guide Price is issued solely as a guide so that a buyer can consider whether or not to pursue their interest. A full definition can be found within the Buyers Terms.

Our Nearest Office

Sheffield 600x300

Sheffield

You may also like

Unit 14-17, Metropolitan Business Park, Preston New Road, Blackpool, Lancashire FY3 9LT

Guide Price: £595,000 plus

3 Stamford Grove, Stalybridge SK15 1LZ

Guide Price: £100,000 plus

7 Mill Street, South Kirkby, Pontefract WF9 3HN

8 Sidley Street, Hyde SK14 2PZ

Guide Price: £140,000 plus

21 Bridge Street, Uttoxeter ST14 8AR

Guide Price: £55,000 plus

155 & 157 Monks Road, Lincoln, Lincolnshire LN2 5JJ

Guide Price: £485,000 plus

Former Chellaston Methodist Church, High Street, Chellaston, Derby DE73 6TB

Guide Price: £135,000 plus

25 Newton Street, West Bromwich, West Midlands B71 3RG

Guide Price: £300,000 plus

Search Available
Online Auctions
Search online auction icon
Guide to
Buying at Auction
Buying guide icon
Guide to Selling
Your Property
Selling guide icon
Sign Up For
Auction Alerts
Alert icon