We're now part of BTG Eddisons - Visit our new website BTGEddisonsPropertyAuctions.com
Lot
145
Auction: 29th January 2026 Live Stream Auction 29/01/2026 - Bidding opens Thursday 29th January 9:00 AM

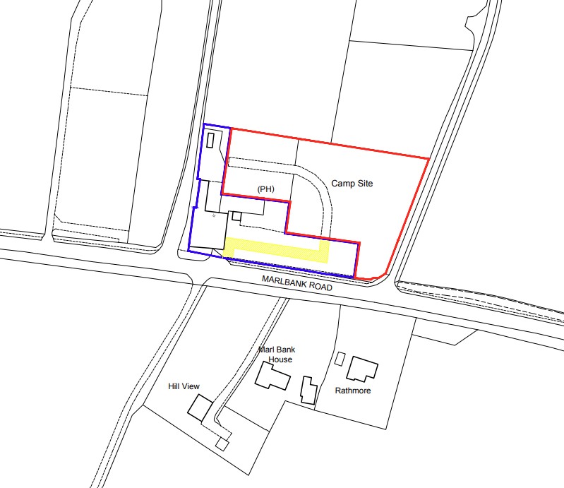
Land to the rear of The Marlbank Inn, Marlbank Road, Welland, Malvern WR13 6NA

We've unified our Auction Brands
If you're interested in this lot visit BTG Eddisons Property Auctions to book a viewing, submit an offer, send an enquiry and more.
View more details about this property on our new auction website
Share this Property
Property Details
Location
Auction Details
Description
Prime Tourism and Leisure Development Opportunity– Malvern Hills an area of Natural Beauty.

A rare opportunity to acquire a freehold tourism and leisure site in a prime Malvern Hills setting, offering immediate operational use together with planning-approved development upside.

The property benefits from an established leisure layout comprising 23 touring / campervan / glamping pitches, providing a flexible and proven operating platform for campsite operators, glamping brands, leisure investors and developers. As well as planning permission for six detached luxury holiday chalets.

Trading Performance (Vendor Advised): The site has historically generated in excess of £100,000 turnover per annum achieved predominantly through a single partnered channel, highlighting both established demand and clear scope for income enhancement through broader channel mix and yield optimisation.

Set within approximately 2 acres of countryside land in the Malvern Hills Area of outstanding natural beauty, the site benefits from strong year-round tourism demand. Existing access, power and drainage infrastructure are already in place, materially reducing delivery risk for the consented lodge scheme.

This is not simply development land, but a ready-made tourism platform offering:

-Existing leisure income
-Planning certainty for six luxury lodges
-Multiple income streams
-Strong long-term value and exit optionality

Opportunities combining operational leisure use with consented lodge development in this location are rarely offered to the open market.
Accommodation

Draft Sales Details
These sales details are awaiting vendor approval.

Costs
Auction Details:

The sale of this property will take place on the stated date by way of Auction Event and is being sold under an Unconditional sale type.

Binding contracts of sale will be exchanged at the point of sale.

All sales are subject to SDL Property Auctions Buyers Terms. Properties located in Scotland will be subject to applicable Scottish law.

Auction Deposit and Fees:

The following deposits and non- refundable auctioneers fees apply:

• 5% deposit (subject to a minimum of £5,000)

• Buyers Fee of 4.8% of the purchase price (subject to a minimum of £6,000 inc. VAT). 

The Buyers Fee does not contribute to the purchase price, however it will be taken into account when calculating the Stamp Duty Land Tax for the property (known as Land and Buildings Transaction Tax for properties located in Scotland), because it forms part of the chargeable consideration for the property.

There may be additional fees listed in the Special Conditions of Sale, which will be available to view within the Legal Pack. You must read the Legal Pack carefully before bidding.

Additional Information:

For full details about all auction methods and sale types please refer to the Auction Conduct Guide which can be viewed on the SDL Property Auctions home page.

This guide includes details on the auction registration process, your payment obligations and how to view the Legal Pack (and any applicable Home Report for residential Scottish properties).

Guide Price & Reserve Price:

Each property sold is subject to a Reserve Price. The Reserve Price will be within + or - 10% of the Guide Price. The Guide Price is issued solely as a guide so that a buyer can consider whether or not to pursue their interest. A full definition can be found within the Buyers Terms.

Our Nearest Office

Birmingham 600x300

Birmingham

Joint Agent

You may also like

001
Sold at auction

Spencers Farm, Feltwell Road, Southery, Downham Market PE38 0PF

002
Postponed

Gospel Hall, Caledonian Road, New Bradwell, Milton Keynes MK13 0AP

003
Sold at auction

286 Cherry Lane, Liverpool L4 8SG

004
Sold at auction

29 Slackswood Close, Ellesmere Port CH65 3AH

005
Sold at auction

5 John Street, Thringstone, Coalville, Leicestershire LE67 8LN

006
Sold at auction

45 South Street, Ellistown, Coalville, Leicestershire LE67 1EJ

007
Sold at auction

52 Attenborough Lane, Beeston, Nottingham NG9 5JW

008
Sold at auction

12 Richmond Avenue, Sandiacre, Nottingham NG10 5GY

Search Available
Online Auctions
Search online auction icon
Guide to
Buying at Auction
Buying guide icon
Guide to Selling
Your Property
Selling guide icon
Sign Up For
Auction Alerts
Alert icon