We're now part of BTG Eddisons - Visit our new website BTGEddisonsPropertyAuctions.com
Lot
278
Auction: 26th March 2026 Live Stream Auction 26/03/2026 - Bidding opens Thursday 26th March 9:00 AM

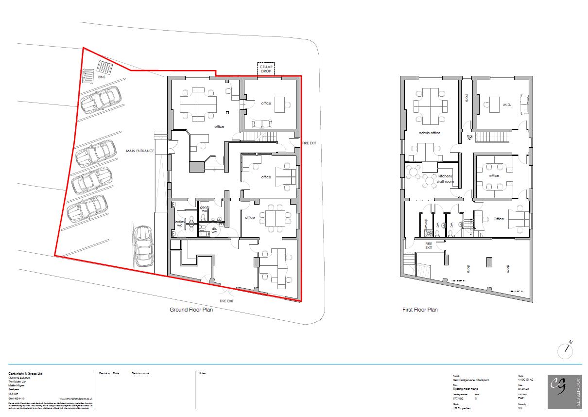
40 Newbridge Lane, Stockport, Cheshire SK1 2NA

Guide Price
£350,000 plus
We've unified our Auction Brands
If you're interested in this lot visit BTG Eddisons Property Auctions to book a viewing, submit an offer, send an enquiry and more.
View more details about this property on our new auction website
Share this Property
Property Details
Location
Auction Details
Description
A prime residential re-development opportunity comprising an existing detached commercial premises with internal accommodation extending to approximately 690 Sq.M (7,427 Sq.Ft). The site measures approximately 0.11 acres and has recently lapsed planning permission for the demolition of the current building and construction of a striking six storey block of 27 apartments. Under those plans the new apartments would detail 14 x 2 bedroom units and 13 x 1 bedroom units with accommodation ranging from 51-60 Sq.M for 1 bedroom units and 67-76 Sq.M for 2 bedroom units totalling 1,662 Sq.M . A full copy of plans will be available within the legal pack.

The site fronts onto Newbridge Lane on the edge of Stockport and within the Town Centre East Regeneration framework which is set to deliver a number of new residential and commercial development projects in the coming years. A variety of amenities and facilities including national and independent retailers, supermarkets, cafe's, restaurants and Stockport Produce Hall & Market are within a 10 minute walk. Junction 27 of the M60 motorway network is within a short drive and provides access to Manchester City Centre and surrounding areas.
Accommodation

Ground Floor
3 x 2 bed units

First Floor
4 x 1 bed units & 2 x 2 bed units

Second Floor
4 x 1 bed units & 2 x 2 bed units

Third Floor
4 x 1 bed units & 2 x 2 bed units

Fourth Floor
4 x 2 bed units

Fifth Floor
2 x 1 bed units

Costs
Auction Details

The sale of this property will take place on the stated date by way of Live streamed auction and is being sold under the Unconditional sale type.

Binding contracts will be exchanged at the point of sale.

All sales are subject to our Common Auction Conditions and Bidder Terms. Properties located in Scotland and Northern Ireland will be subject to applicable local laws.

Auction Deposit and Fees

The following deposits and non- refundable auctioneers fees apply:

• 10% deposit (subject to a minimum of £5,000)

• Buyer’s Fee of 1.8% of the purchase price (subject to a minimum of £2,400 inc. VAT)

There may be additional fees listed in the Special Conditions of Sale, which will be available to view within the Legal Pack. You must read the Legal Pack carefully before bidding.

Additional Information

For full details about our auction processes, please refer to the Bidder Terms which can be viewed on our home page.

This explains the types of auction and sale methods we offer, the bidding registration process, your payment obligations, and how to view the Legal Pack (and any applicable home report for residential Scottish properties).

Guide Price & Reserve Price

Each property sold is subject to a Reserve Price. The Reserve Price will be within + or - 10% of the Guide Price. The Guide Price is issued solely as a guide so that a buyer can consider whether or not to pursue their interest. A full definition can be found within the Buyers Terms. 
General

Note
1. All the information provided on our website is for indicative purposes only and interested parties should refer to the contents of the legal pack and rely upon their own due diligence as a prudent bidder.

Note
3. Energy Performance Certificate = E

Note
Please be advised that the auctioneers have not personally inspected the property. Prospective buyers are advised to make a viewing enquiry and any other necessary independent enquiries before placing their bid, as this will be binding.

Our Nearest Office

Manchesterresize 600x300

Manchester

You may also like

101
Live Stream Auction

39 Crosshill, Cotgrave, Nottingham NG12 3NB

Guide Price: £59,500 plus

102
Live Stream Auction

30 Mardon Road, Birmingham, West Midlands B26 3EX

Guide Price: £95,000 plus

103
Live Stream Auction

Garage Site at New Road, Barlborough, Derbyshire S43 4HY

Guide Price: £10,000 plus

104
Live Stream Auction

Land with caravan parking, garages & paddock, Alfreton Road, Little Eaton, Derbyshire DE21 5AD

Guide Price: £90,000 plus

105
Live Stream Auction

19 May Street, Derby DE22 3UQ

Guide Price: £55,000 plus

106
Live Stream Auction

Holmewood Industrial Estate Units, Stainsby Close, Holmewood S42 5UG

Guide Price: £575,000 plus

107
Live Stream Auction

Holmewood Business Park, Chesterfield Road, Holmewood S42 5US

Guide Price: £1,200,000 plus

108
Live Stream Auction

2 Longfield, Falmouth, Cornwall TR11 4SJ

Guide Price: £220,000 plus

Search Available
Online Auctions
Search online auction icon
Guide to
Buying at Auction
Buying guide icon
Guide to Selling
Your Property
Selling guide icon
Sign Up For
Auction Alerts
Alert icon