We're now part of BTG Eddisons - Visit our new website BTGEddisonsPropertyAuctions.com
Lot
143
Auction: 26th March 2026 Live Stream Auction 26/03/2026 - Bidding opens Thursday 26th March 9:00 AM

69 Riddings Street, Derby DE22 3UT

Guide Price
£75,000 plus
We've unified our Auction Brands
If you're interested in this lot visit BTG Eddisons Property Auctions to book a viewing, submit an offer, send an enquiry and more.
View more details about this property on our new auction website
Share this Property
Property Details
Location
Auction Details
Description
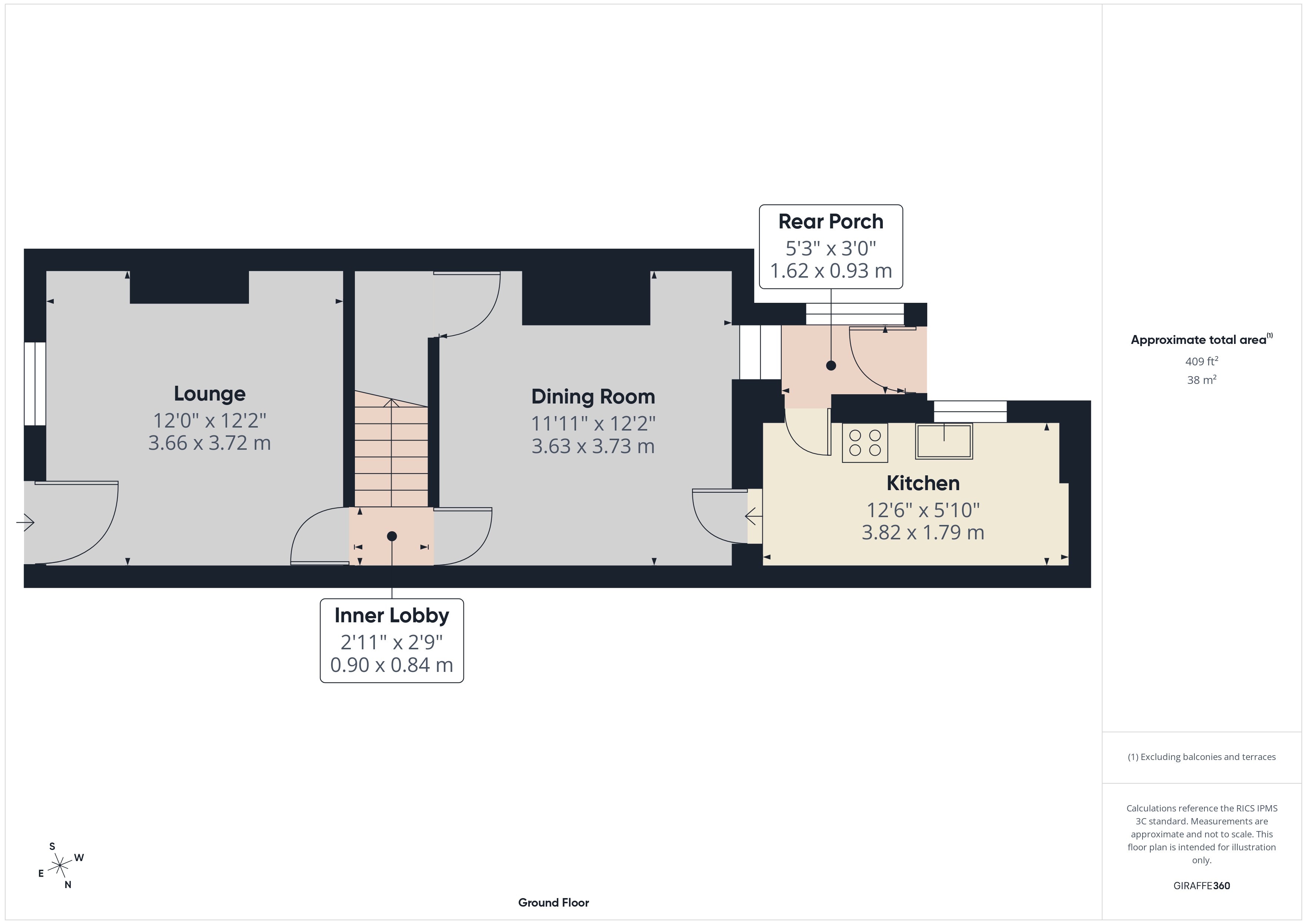
An excellent freehold residential investment opportunity to acquire a large than average, two double bedroomed mid terraced property with vacant possession, enjoying a strong letting location close to the Derby city centre, requiring a scheme of improvement and modernisation.

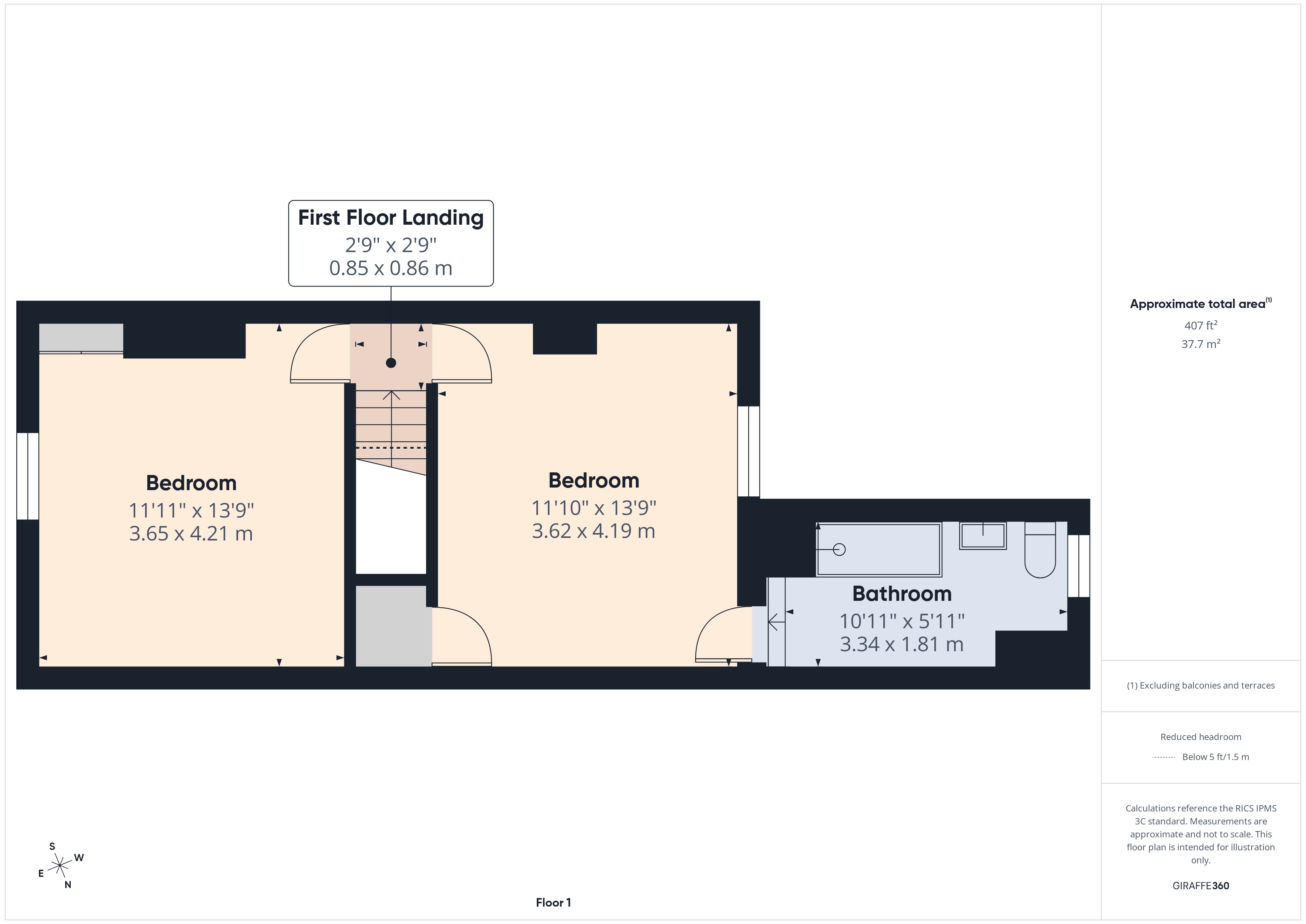
Benefitting from gas central heating, the accommodation in brief comprises: Entrance Hall with period style Minton tile flooring; good sized lounge; separate dining room; kitchen to the rear with access to the garden space and the useful cellar store; first floor landing; two generous double bedrooms, one of which has been partitioned and a fitted first floor bathroom.

To the rear of the property is an enclosed courtyard style garden space with brick-built outhouse.

Riddings Street is conveniently located for local amenities, including shops and schools, as well as excellent road and public transport access to Derby City Centre and derby Royal Hospital. A viewing is essential to appreciate the potential and position of the accommodation on offer.
Accommodation

Entrance Hall

Lounge
3.89m x 3.00m (12ft 9 x 9ft 10)

Dining Room
3.89m x 3.10m (12ft 9 x 10ft 2)

Kitchen
2.67m x 2.36m (8ft 9 x 7ft 9)

First Floor Landing

Bedroom One
3.94m x 3.33m (12ft 11 x 10ft 11)

Bedroom Two (A)
3.86m x 3.17m (12ft 8 x 10ft 5)

Bedroom Two (B)
3.86m x 1.88m (12ft 8 x 6ft 2)

Bathroom
2.67m x 2.36m (8ft 9 x 7ft 9)

Costs
Auction Details

The sale of this property will take place on the stated date by way of Live streamed auction and is being sold under the Unconditional sale type.

Binding contracts will be exchanged at the point of sale.

All sales are subject to our Common Auction Conditions and Bidder Terms. Properties located in Scotland and Northern Ireland will be subject to applicable local laws.

Auction Deposit and Fees

The following deposits and non- refundable auctioneers fees apply:

• 5% deposit (subject to a minimum of £5,000)

• Buyer’s Fee of 4.8% of the purchase price (subject to a minimum of £6,000 inc. VAT)

There may be additional fees listed in the Special Conditions of Sale, which will be available to view within the Legal Pack. You must read the Legal Pack carefully before bidding.

Additional Information

For full details about our auction processes, please refer to the Bidder Terms which can be viewed on our home page.

This explains the types of auction and sale methods we offer, the bidding registration process, your payment obligations, and how to view the Legal Pack (and any applicable home report for residential Scottish properties).

Guide Price & Reserve Price

Each property sold is subject to a Reserve Price. The Reserve Price will be within + or - 10% of the Guide Price. The Guide Price is issued solely as a guide so that a buyer can consider whether or not to pursue their interest. A full definition can be found within the Buyers Terms. 
General

Note
Please be advised that whilst our joint agent has conducted an inspection, the auctioneers have not personally inspected the property. Prospective buyers are advised to make a viewing enquiry and any other necessary independent enquiries before placing their bid, as this will be binding.

Our Nearest Office

Nottingham 600x300

Nottingham

Joint Agent

You may also like

101
Live Stream Auction

39 Crosshill, Cotgrave, Nottingham NG12 3NB

Guide Price: £59,500 plus

102
Live Stream Auction

30 Mardon Road, Birmingham, West Midlands B26 3EX

Guide Price: £95,000 plus

103
Live Stream Auction

Garage Site at New Road, Barlborough, Derbyshire S43 4HY

Guide Price: £10,000 plus

104
Live Stream Auction

Land with caravan parking, garages & paddock, Alfreton Road, Little Eaton, Derbyshire DE21 5AD

Guide Price: £90,000 plus

105
Live Stream Auction

19 May Street, Derby DE22 3UQ

Guide Price: £55,000 plus

106
Live Stream Auction

Holmewood Industrial Estate Units, Stainsby Close, Holmewood S42 5UG

Guide Price: £575,000 plus

107
Live Stream Auction

Holmewood Business Park, Chesterfield Road, Holmewood S42 5US

Guide Price: £1,200,000 plus

108
Live Stream Auction

2 Longfield, Falmouth, Cornwall TR11 4SJ

Guide Price: £220,000 plus

Search Available
Online Auctions
Search online auction icon
Guide to
Buying at Auction
Buying guide icon
Guide to Selling
Your Property
Selling guide icon
Sign Up For
Auction Alerts
Alert icon