We're now part of BTG Eddisons - Visit our new website BTGEddisonsPropertyAuctions.com
Lot
173
Auction: 26th February 2026 Live Stream Auction 26/02/2026 - Bidding opens Thursday 26th February 9:00 AM

1 & 1A Waterloo Road, Stoke-On-Trent, Staffordshire ST6 2EH

Guide Price
£120,000 plus
We've unified our Auction Brands
If you're interested in this lot visit BTG Eddisons Property Auctions to book a viewing, submit an offer, send an enquiry and more.
View more details about this property on our new auction website
Share this Property
Property Details
Location
Auction Details
Description
A freehold large and prominently located three storey property of brick elevations with a pitched tiled roof which was comprehensively refurbished in 2012 as part of the
Burslem Improvement Grant Scheme.

The property has previously been used for both retail and office use, although lends itself to be converted into a HMO or similar with the potential for 5 rooms or 6 if the shop is also converted. Internally the property has gas central heating and single glazed timber windows. All rooms are carpeted and very little work is required internally. According to the council some sound installation, a fire alarm system and an additional landing on the top floor would be required for planning to be considered for a HMO. Please note, the ground floor salon is occupied until mid June when the lease will come to an end.

LOCATION
The property is located towards the top of Waterloo Road at the junction with Nile Street and opposite the George Hotel and Swan Square. Burslem is ideally located off the A500 within easy reach of junctions 15 and 16 of the M6 motorway.

SERVICES
All main services are connected. No services have been tested by the agents.

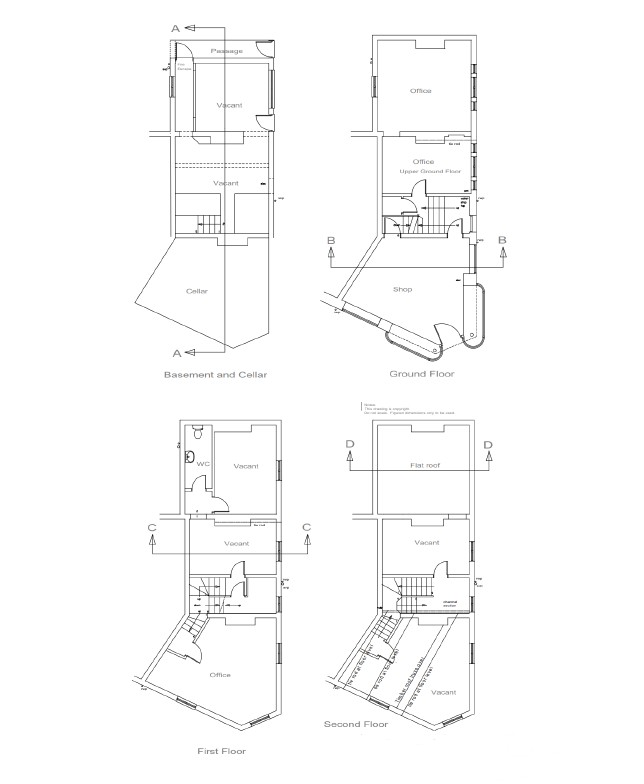
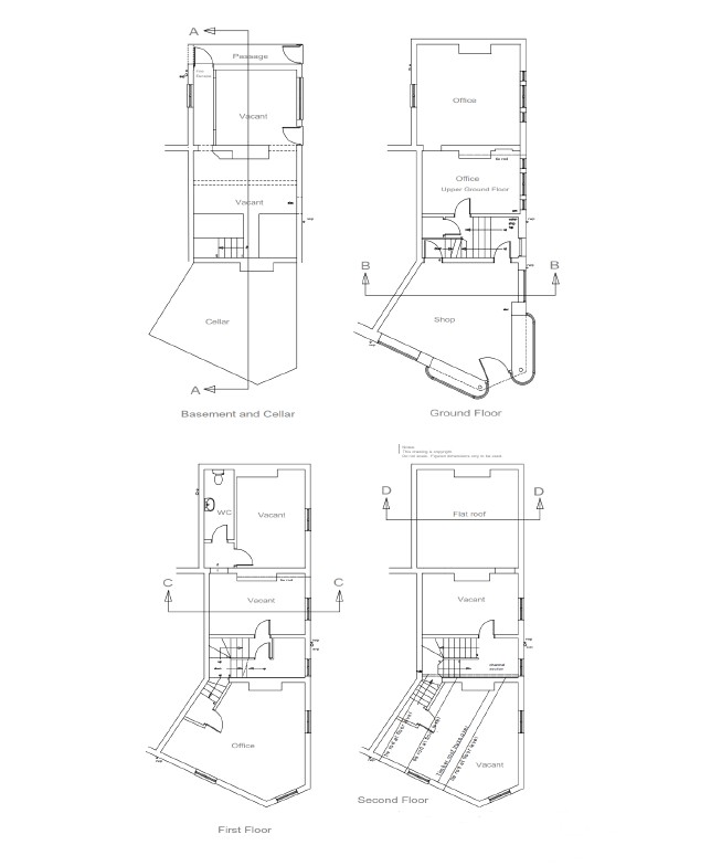
ACCOMMODATION

Shop Ground floor
Sales area 307 sq ft
Lower Ground
Back office 127 sq ft
Kitchen 118 sq ft
WC --
NIA 552 sq ft

Main Property
Ground floor
Room 1 141 sq ft
Room 2 212 sq ft
First floor
Room 1 267 sq ft
Room 2 156 sq ft
Room 3 237 sq ft
WC

Second floor
Room 1 179 sq ft
Room 2 288 sq ft
NIA 1,480 sq ft
Total NIA 2,032 sq ft

Interested parties are advised to inspect the legal pack for more information.
Costs
Auction Details

The sale of this property will take place on the stated date by way of Live streamed auction and is being sold under the Unconditional sale type.

Binding contracts will be exchanged at the point of sale.

All sales are subject to our Common Auction Conditions and Bidder Terms. Properties located in Scotland and Northern Ireland will be subject to applicable local laws.

Auction Deposit and Fees

The following deposits and non- refundable auctioneers fees apply:

• 5% deposit (subject to a minimum of £5,000)

• Buyers Fee of 4.8% of the purchase price (subject to a minimum of £6,000 inc. VAT). 

There may be additional fees listed in the Special Conditions of Sale, which will be available to view within the Legal Pack. You must read the Legal Pack carefully before bidding.

Additional Information

For full details about our auction processes, please refer to the Bidder Terms which can be viewed on our home page.

This explains the types of auction and sale methods we offer, the bidding registration process, your payment obligations, and how to view the Legal Pack (and any applicable home report for residential Scottish properties).

Guide Price & Reserve Price

Each property sold is subject to a Reserve Price. The Reserve Price will be within + or - 10% of the Guide Price. The Guide Price is issued solely as a guide so that a buyer can consider whether or not to pursue their interest. A full definition can be found within the Buyers Terms. 
General

Note
Please be advised that the auctioneers have not personally inspected the property. Prospective buyers are advised to make a viewing enquiry and any other necessary independent enquiries before placing their bid, as this will be binding.

Draft Sales Particulars
These sales details are awaiting vendor approval

Our Nearest Office

Manchesterresize 600x300

Manchester

Joint Agent

You may also like

101
Live Stream Auction

29 Pinfold Lane, Stapleford, Nottingham NG9 8DL

Guide Price: £75,000 plus

102
Live Stream Auction

1 Oxford Avenue, Evington, Leicestershire LE2 1HP

Guide Price: £75,000 plus

103
Live Stream Auction

13 Gordon Avenue, Leicester LE2 1AA

Guide Price: £150,000 plus

104
Sold Prior to Auction

15 The Green, Mickleover, Derby DE3 0DE

Guide Price: £120,000 plus

105
Live Stream Auction

Pond House, Shipley Lane, Mapperley, Ilkeston DE7 6BR

Guide Price: £110,000 plus

106
Live Stream Auction

Holmewood Industrial Estate Units, Stainsby Close, Holmewood S42 5UG

Guide Price: £575,000 plus

107
Live Stream Auction

24 Trent Road, Nottingham NG2 4FH

Guide Price: £80,000 plus

108
Live Stream Auction

89 Haddon Street, Derby DE23 6NQ

Guide Price: £85,000 plus

Search Available
Online Auctions
Search online auction icon
Guide to
Buying at Auction
Buying guide icon
Guide to Selling
Your Property
Selling guide icon
Sign Up For
Auction Alerts
Alert icon