We're now part of BTG Eddisons - Visit our new website BTGEddisonsPropertyAuctions.com
Lot
116
Auction: 17th December 2025 Live Stream Auction 17/12/2025 - Bidding opens Wednesday 17th December 9:00 AM

7 and 7a Spring Gardens, Spalding PE11 2XL

Available at
£126,500
We've unified our Auction Brands
If you're interested in this lot visit BTG Eddisons Property Auctions to book a viewing, submit an offer, send an enquiry and more.
View more details about this property on our new auction website
Share this Property
Property Details
Location
Auction Details
Description
An impressive investment opportunity to purchase 2 flats within a freehold semi detached property. Flat 7 is currently let and flat 7a is currently vacant, potential income once both flats are let is in excess of £17k per year representing an extremely generous return in excess of 13% against the guide price.

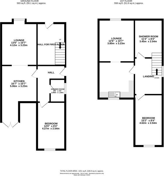
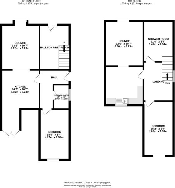
Each flat comprises of a lounge, separate kitchen, bedroom, shower room, garden and off road parking.

Locally there is a wide range of local amenities, shops and access to transport links.
Accommodation

Note
Please be advised the auctioneers have not personally inspected the property. Prospective buyers are advised to make any necessary independent enquiries before placing their bid, as this will be binding.

Note to Buyers
We have not been provided with a copy of the tenancy agreement for Flat 7.

Draft Sales Details
These sales details are awaiting vendor approval.

Costs
Auction Details:

The sale of this property will take place on the stated date by way of Auction Event and is being sold under an Unconditional sale type.

Binding contracts of sale will be exchanged at the point of sale.

All sales are subject to SDL Property Auctions Buyers Terms. Properties located in Scotland will be subject to applicable Scottish law.

Auction Deposit and Fees:

The following deposits and non- refundable auctioneers fees apply:

• 5% deposit (subject to a minimum of £5,000)

• Buyers Fee of 4.8% of the purchase price (subject to a minimum of £6,000 inc. VAT). 

The Buyers Fee does not contribute to the purchase price, however it will be taken into account when calculating the Stamp Duty Land Tax for the property (known as Land and Buildings Transaction Tax for properties located in Scotland), because it forms part of the chargeable consideration for the property.

There may be additional fees listed in the Special Conditions of Sale, which will be available to view within the Legal Pack. You must read the Legal Pack carefully before bidding.

Additional Information:

For full details about all auction methods and sale types please refer to the Auction Conduct Guide which can be viewed on the SDL Property Auctions home page.

This guide includes details on the auction registration process, your payment obligations and how to view the Legal Pack (and any applicable Home Report for residential Scottish properties).

Guide Price & Reserve Price:

Each property sold is subject to a Reserve Price. The Reserve Price will be within + or - 10% of the Guide Price. The Guide Price is issued solely as a guide so that a buyer can consider whether or not to pursue their interest. A full definition can be found within the Buyers Terms.

Our Nearest Office

Nottingham 600x300

Nottingham

You may also like

001
Sold at auction

Land and Former Public Conveniences, Ilam Road, Ilam Lane, Thorpe, Ashbourne DE6 2AW

002
Sold at auction

1 Chapel Lane & 23 Wartnaby Road, AB Kettleby, Melton Mowbray, Leicestershire LE14 3HS

003
Sold at auction

70 Beech Avenue, Alvaston, Derby DE24 0DZ

004
Sold at auction

Station House, Station Yard, Matlock DE4 3NA

005
Sold at auction

Land between 44-48 High Street, Bonsall, Matlock DE4 2AR

006
Sold at auction

Land Between 13 and 15 Peats Close, Kirk Ireton DE6 3LH

007
Sold Post Auction

20 Holly Road, Bromsgrove B61 8LJ

008
Sold at auction

6 Garway Close, Redditch B98 0BY

Search Available
Online Auctions
Search online auction icon
Guide to
Buying at Auction
Buying guide icon
Guide to Selling
Your Property
Selling guide icon
Sign Up For
Auction Alerts
Alert icon