We're now part of BTG Eddisons - Visit our new website BTGEddisonsPropertyAuctions.com
Auction: 26th February 2026 Live Stream Auction 26/02/2026 - Bidding opens Thursday 26th February 9:00 AM

7 and 7a Spring Gardens, Spalding PE11 2XL

We've unified our Auction Brands
If you're interested in this lot visit BTG Eddisons Property Auctions to book a viewing, submit an offer, send an enquiry and more.
View more details about this property on our new auction website
Share this Property
Property Details
Location
Auction Details
Description
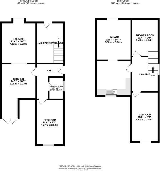
An impressive investment opportunity to purchase 2 flats within a freehold semi detached property. Flat 7 is currently let and flat 7a is currently vacant, potential income once both flats are let is in excess of £17k per year representing an extremely generous return in excess of 13% against the guide price.

Each flat comprises of a lounge, separate kitchen, bedroom, shower room, garden and off road parking.

Locally there is a wide range of local amenities, shops and access to transport links.
Costs
Auction Details

The sale of this property will take place on the stated date by way of Live streamed auction and is being sold under the Unconditional sale type.

Binding contracts will be exchanged at the point of sale.

All sales are subject to our Common Auction Conditions and Bidder Terms. Properties located in Scotland and Northern Ireland will be subject to applicable local laws.

Auction Deposit and Fees

The following deposits and non- refundable auctioneers fees apply:

• 5% deposit (subject to a minimum of £5,000)

• Buyer’s Fee of 4.8% of the purchase price (subject to a minimum of £6,000 inc. VAT)

There may be additional fees listed in the Special Conditions of Sale, which will be available to view within the Legal Pack. You must read the Legal Pack carefully before bidding.

Additional Information

For full details about our auction processes, please refer to the Bidder Terms which can be viewed on our home page.

This explains the types of auction and sale methods we offer, the bidding registration process, your payment obligations, and how to view the Legal Pack (and any applicable home report for residential Scottish properties).

Guide Price & Reserve Price

Each property sold is subject to a Reserve Price. The Reserve Price will be within + or - 10% of the Guide Price. The Guide Price is issued solely as a guide so that a buyer can consider whether or not to pursue their interest. A full definition can be found within the Buyers Terms. 
General

Note to Buyers
We have not been provided with a copy of the tenancy agreement for Flat 7.

Note
Please be advised the auctioneers have not personally inspected the property. Prospective buyers are advised to make necessary independent enquiries before placing their bid, as this will be binding.

Draft Sales Particulars
These sales details are awaiting vendor approval

Our Nearest Office

Nottingham 600x300

Nottingham

Joint Agent

You may also like

Live Stream Auction

The Mission Hall, Zelah, Truro, Cornwall TR4 9HS

Guide Price: £20,000 plus

Live Stream Auction

53 Stanningley Road, Leeds LS12 3ND

Guide Price: £175,000 plus

Live Stream Auction

Flat 6, The Place, 564 Harrogate Road, Leeds LS17 8BL

Guide Price: £150,000 plus

Live Stream Auction

Anglia Pottery, Church Street, Billinghay, Lincoln LN4 4HN

Guide Price: £275,000 plus

Live Stream Auction

Flats 1-5, 20 Fosse Road Central, Leicester, Leicestershire LE3 5PR

Guide Price: £250,000 plus

Live Stream Auction

54 Hazelwood Close, Cambridge CB4 3SW

Guide Price: £275,000 plus

Live Stream Auction

Flat 1, 46 Handsworth Wood Road, Birmingham, West Midlands B20 2DT

Guide Price: £49,000 plus

Live Stream Auction

10 Saxby Avenue, Skegness, Lincolnshire PE25 3JZ

Guide Price: £175,000 plus

Search Available
Online Auctions
Search online auction icon
Guide to
Buying at Auction
Buying guide icon
Guide to Selling
Your Property
Selling guide icon
Sign Up For
Auction Alerts
Alert icon