We're now part of BTG Eddisons - Visit our new website BTGEddisonsPropertyAuctions.com
Lot
193
Auction: 29th January 2026 Live Stream Auction 29/01/2026 - Bidding opens Thursday 29th January 9:00 AM

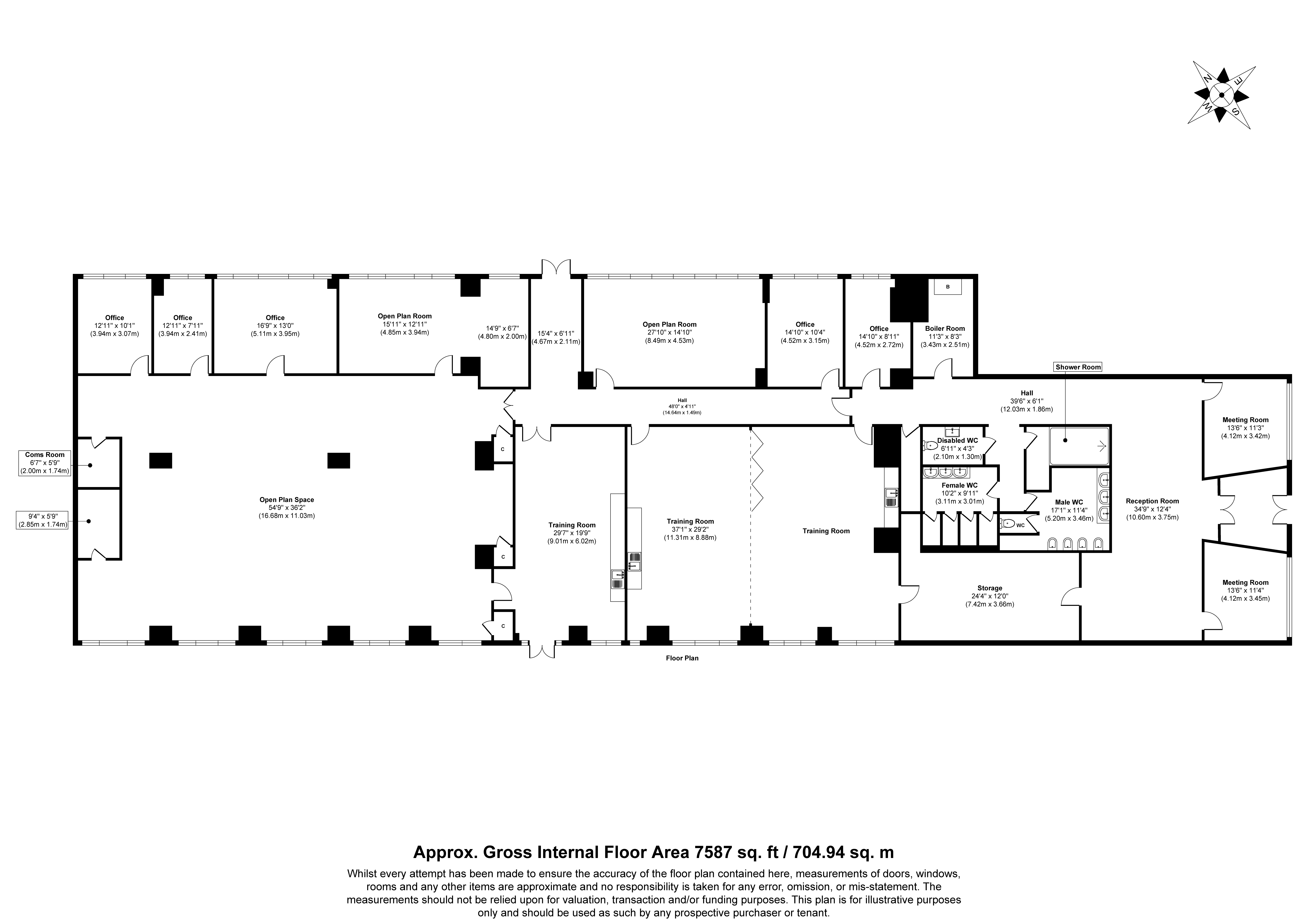
Unit 4 Cantilever Court, 202 Wandsworth Road, Battersea, London SW8 2JU

We've unified our Auction Brands
If you're interested in this lot visit BTG Eddisons Property Auctions to book a viewing, submit an offer, send an enquiry and more.
View more details about this property on our new auction website
Share this Property
Property Details
Location
Auction Details
Description
A vacant ground floor office building extending to approximately 704 Sq.M (7,587 Sq.Ft) offering flexible and well-presented accommodation with the added benefit of 7 car parking spaces to the rear. Benefitting from frontage directly onto Wandsworth Road and immediately adjacent to Tesco Express the building is easily accessible from both Wandsworth Road and Vauxhall stations as well as Nine Elms and Battersea Power Station. Internally the floor space comprises a number of different open plan offices and meeting rooms and could suit a variety of future occupiers.

Accommodation

Note
Please be advised that the auctioneers have not personally inspected the property. Prospective buyers are advised to make a viewing enquiry and any other necessary independent enquiries before placing their bid, as this will be binding.

Leasehold Information
999 years (less three days) from 1 January 2009. Any ground rent and service charge review periods will be confirmed in the lease documents within the legal pack.

Costs
Auction Details:

The sale of this property will take place on the stated date by way of Auction Event and is being sold under and Unconditional sale type.

Binding contracts of sale will be exchanged at the point of sale.

All sales are subject to SDL Property Auctions Buyers Terms. Properties located in Scotland will be subject to applicable Scottish law.

Auction Deposit and Fees:

The following deposits and non- refundable auctioneers fee apply:

• 10% deposit (subject to a minimum of £5,000)

• Buyers Fee of 1.8% of the purchase price inc. VAT

The Buyers Fee does not contribute to the purchase price, however it will be taken into account when calculating the Stamp Duty Land Tax for the property (known as Land and Buildings Transaction Tax for properties located in Scotland), because it forms part of the chargeable consideration for the property.

There may be additional fees listed in the Special Conditions of Sale, which will be available to view within the Legal Pack. You must read the Legal Pack carefully before bidding.

Additional Information:

For full details about all auction methods and sale types please refer to the Auction Conduct Guide which can be viewed on the SDL Property Auctions home page.

This guide includes details on the auction registration process, your payment obligations and how to view the Legal Pack (and any applicable Home Report for residential Scottish properties).

Guide Price & Reserve Price:

Each property sold is subject to a Reserve Price. The Reserve Price will be within + or - 10% of the Guide Price. The Guide Price is issued solely as a guide so that a buyer can consider whether or not to pursue their interest. A full definition can be found within the Buyers Terms.

Our Nearest Office

London 600x300

London

You may also like

001
Sold at auction

Spencers Farm, Feltwell Road, Southery, Downham Market PE38 0PF

002
Postponed

Gospel Hall, Caledonian Road, New Bradwell, Milton Keynes MK13 0AP

003
Sold at auction

286 Cherry Lane, Liverpool L4 8SG

004
Sold at auction

29 Slackswood Close, Ellesmere Port CH65 3AH

005
Sold at auction

5 John Street, Thringstone, Coalville, Leicestershire LE67 8LN

006
Sold at auction

45 South Street, Ellistown, Coalville, Leicestershire LE67 1EJ

007
Sold at auction

52 Attenborough Lane, Beeston, Nottingham NG9 5JW

008
Sold at auction

12 Richmond Avenue, Sandiacre, Nottingham NG10 5GY

Search Available
Online Auctions
Search online auction icon
Guide to
Buying at Auction
Buying guide icon
Guide to Selling
Your Property
Selling guide icon
Sign Up For
Auction Alerts
Alert icon