We're now part of BTG Eddisons - Visit our new website BTGEddisonsPropertyAuctions.com
Lot
110
Auction: 29th January 2026 Live Stream Auction 29/01/2026 - Bidding opens Thursday 29th January 9:00 AM

27-29 Wide Bargate, Boston PE21 6SW

Available at
£220,000
We've unified our Auction Brands
If you're interested in this lot visit BTG Eddisons Property Auctions to book a viewing, submit an offer, send an enquiry and more.
View more details about this property on our new auction website
Share this Property
Property Details
Location
Auction Details
Description
A substantial corner former office block located in a parade of retail units in the heart of the town centre of Boston.

The property is Grade II Listed and has full planning permission for conversion to a 26 bedroom hotel and a restaurant. May offer scope for numerous other uses subject to consent.

Planning permission was granted in July 2023- Ref B/22/0458. Full details can be found on Boston Borough Council website.

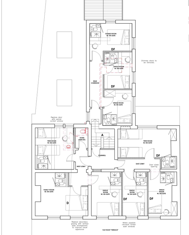
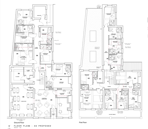
The accommodation is arranged over 3 floor and once converted will offer 26 bedrooms all with private en-suite bathrooms, Hotel reception, Kitchen and Restaurant area. Please see floor plans for proposed layout.

There is a large pay and display car park opposite.

Situated in the heart of the Town Centre surrounded by a wealth of other amenities and excellent transport links.

The property may offer scope for a variety of other uses such as HMO / Assisted living, Nursery, Dentist / Doctors or residential apartments etc (subject to any required permissions)
Accommodation

Proposed Accommodation

Ground Floor
Hotel Reception, Kitchen, Restaurant, Toilets, 7x En-Suite Bedrooms

First Floor
10x En-Suite Bedrooms

Second Floor
9x En-Suite Bedrooms

Costs
Auction Details

The sale of this property will take place on the stated date by way of Live streamed auction and is being sold under the Unconditional sale type.

Binding contracts will be exchanged at the point of sale.

All sales are subject to our Common Auction Conditions and Bidder Terms. Properties located in Scotland and Northern Ireland will be subject to applicable local laws.

Auction Deposit and Fees

The following deposits and non- refundable auctioneers fees apply:

• 5% deposit (subject to a minimum of £5,000)

• Buyers Fee of 4.8% of the purchase price (subject to a minimum of £6,000 inc. VAT). 

There may be additional fees listed in the Special Conditions of Sale, which will be available to view within the Legal Pack. You must read the Legal Pack carefully before bidding.

Additional Information

For full details about our auction processes, please refer to the Bidder Terms which can be viewed on our home page.

This explains the types of auction and sale methods we offer, the bidding registration process, your payment obligations, and how to view the Legal Pack (and any applicable home report for residential Scottish properties).

Guide Price & Reserve Price

Each property sold is subject to a Reserve Price. The Reserve Price will be within + or - 10% of the Guide Price. The Guide Price is issued solely as a guide so that a buyer can consider whether or not to pursue their interest. A full definition can be found within the Buyers Terms. 

Our Nearest Office

Nottingham 600x300

Nottingham

Joint Agent

You may also like

001
Sold at auction

Spencers Farm, Feltwell Road, Southery, Downham Market PE38 0PF

002
Postponed

Gospel Hall, Caledonian Road, New Bradwell, Milton Keynes MK13 0AP

003
Sold at auction

286 Cherry Lane, Liverpool L4 8SG

004
Sold at auction

29 Slackswood Close, Ellesmere Port CH65 3AH

005
Sold at auction

5 John Street, Thringstone, Coalville, Leicestershire LE67 8LN

006
Sold at auction

45 South Street, Ellistown, Coalville, Leicestershire LE67 1EJ

007
Sold at auction

52 Attenborough Lane, Beeston, Nottingham NG9 5JW

008
Sold at auction

12 Richmond Avenue, Sandiacre, Nottingham NG10 5GY

Search Available
Online Auctions
Search online auction icon
Guide to
Buying at Auction
Buying guide icon
Guide to Selling
Your Property
Selling guide icon
Sign Up For
Auction Alerts
Alert icon